Новости компании
Разработан проект отопления для дома в НСТ «Хуторок-Южный»
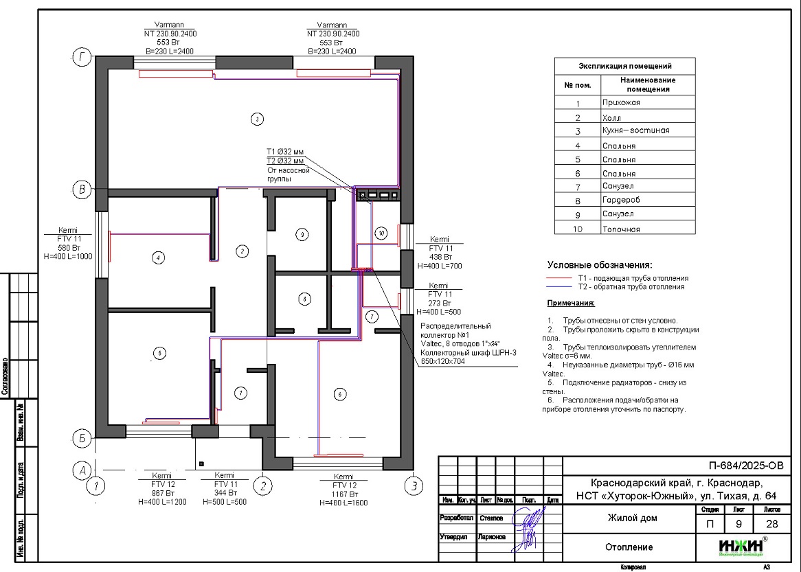
Для загородного дома со стенами из газобетона (утеплитель кровли - минвата 150 мм), площадью 107 м.кв., расположенного в г. Краснодар, НСТ «Хуторок-Южный», выполнены проекты отопления и водоснабжения.
В проекте отопления и водоснабжения, по заданию Заказчика, предусмотрены следующие основные технические решения:
- Вариант отопления «Комфортный», с системой управления котельной BAXI CONNECT+ со встроенным GSM-модулем для удаленного управления при помощи мобильного приложения;
- Индивидуальная котельная с настенным газовым котлом BAXI ECO-4S, мощностью 24 кВт;
- Контуры теплоснабжения дома – 3 шт. (радиаторное отопление дома, теплый пол и горячее водоснабжение);
- Выполнен расчет отопления, расход тепла на отопление составил - 9,45 кВт, удельные теплопотери 93,1 Вт/м.кв.;
- Отопление и водоснабжение дома в Краснодарепредусмотрены по коллекторно-лучевой схеме, с трубопроводами из сшитого полиэтиленаValtec;
- Приборы для системы отопления дома - стальные панельные радиаторы Kermi с нижним подключением, а также встроенные в пол конвекторы Varmann c естественной конвекцией;
- Водяной теплый пол проектом предусмотрен на площади 100 м.кв., 10 петель.
Стоимость проекта отопления дома в Краснодаре- 16 734 руб. со скидкой 10%, проект котельной бесплатно, объем проекта 28 листов.

05 декабря 2025 года
- Информация о материале
- Просмотров: 3297














