Новости компании
Выполнен проект отопления дома 373 м.кв. (с гаражом)
Для загородного дома с гаражом, со стенами из кирпича (утеплитель стен и кровли - базвата 100 и 200мм, соответственно), площадью 373 м.кв., расположенного в г. Подольск Московской области, разработан проект отопления.
В проекте отопления и водоснабжения, по заданию Заказчика, предусмотрены следующие основные технические решения:
- Вариант отопления «Комфортный+», с системой водяного теплого пола, в которой предусмотрено зональное регулирование;
- Индивидуальная котельная с двумя котлами - настенными газовыми BAXI LUNA-3, мощностью 31 кВт каждый;
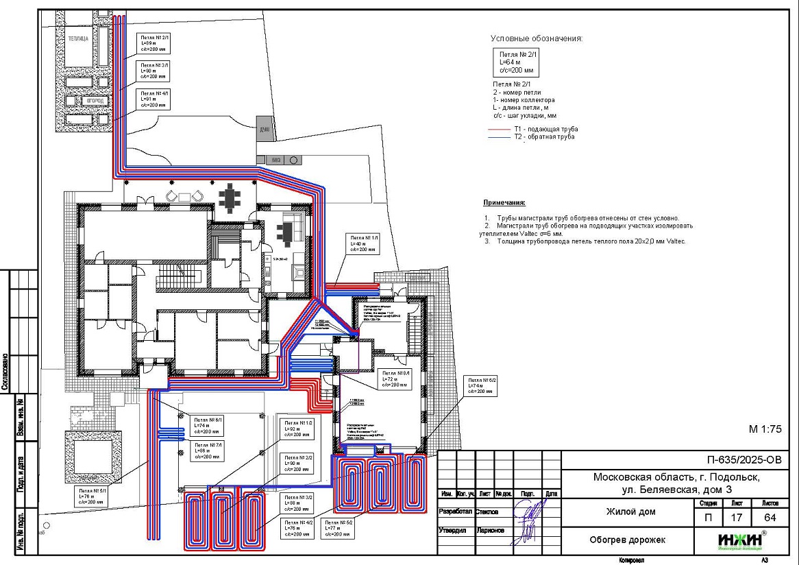
- Контуры теплоснабжения дома – 6 шт. (радиаторное отопление дома, отопление гаража, теплый пол, вентиляция, обогрев дорожек и горячее водоснабжение);
- Выполнен расчет отопления, расход тепла на отопление дома и гаража составил 30,86 кВт, удельные теплопотери 82,7 Вт/м.кв.;
- Отопление и водоснабжение дома и гаража в Подольске предусмотрены по коллекторно-лучевой схеме, с трубопроводами из сшитого полиэтилена Valtec;
- Приборы для системы отопления дома - стальные панельные радиаторы Kermi с нижним подключением (гараж), дизайн-радиаторы GUARDO RETTO 6P с боковым подключением (для дома);
- Водяной теплый пол и обогрев наружных поверхностей предусмотрены на площади 184 м.кв., коллекторы теплого пола и обогрева дорожек Valtec на 11 (2шт.) и 8 отводов, всего 30 петель (с учётом подогрева дорожек);
- Выполнен расчет 54-х точек водоснабжения и полотенцесушителей и 20-и точек бытовой канализации.
Стоимость проекта отопления дома в Подольске - 86 800 руб. со скидкой 10%, проект котельной бесплатно, объем проекта 64 листа.

09 апреля2026 года
- Информация о материале
- Просмотров: 488














