Выполненные проекты
Проект электрики дома 115 м.кв. в Новосибирске
Объект: дом из газобетона площадью 115 м.кв. в г. Новосибирск (мкр Близкий)
Цена (стоимость) проекта электрики: 9 833 руб. (проект слаботочки и резервного электроснабжения – бесплатно).
Проект электрики выполнен: 03.04.2019
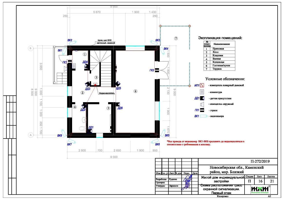
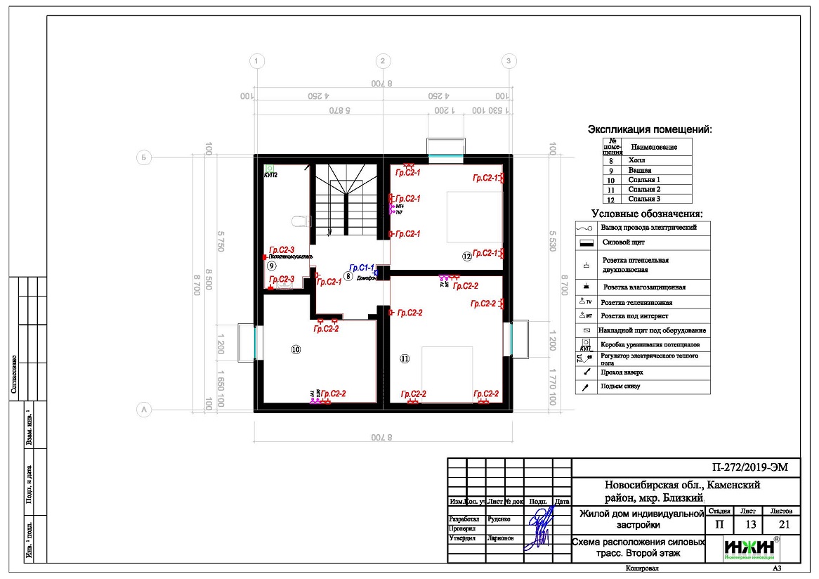
Состав проекта электрики дома в Новосибирске:
1. Пояснительная записка. Общие данные по электроснабжению и освещению дома.
2. Однолинейные схемы вводного распределительного устройства и распределительного щита.
3. Чертежи электропроводки 1 и 2 этажей дома в Новосибирске.
4. Чертежи групповых осветительных сетей дома в Новосибирске.
5. Спецификация материалов и оборудования по электрике и электропроводке дома в г. Новосибирск.
Объем проекта электрики дома 115 м.кв.: 22 листа.
Описание проекта электрики частного дома с гаражом площадью 115 м.кв.
Расчетные показатели по электроснабжению и освещению частного дома в Новосибирске.
o Расчетная электрическая мощность дома и гаража составила 22,19 кВт, с учетом коэффициента спроса 0,6, принятого согласно СП 256.1325800.2016;
o При расчете учтено силовое оборудование: газовый котел, электрический котел, насосы котельной, скважинный насос, духовой шкаф. Учтено электропитание дополнительных строений - гаража, бани и беседки;
o Мощность потребителей резервного электропитания 14,00 кВт.
Распределительные электрические щиты дома в Новосибирске.
o Проектом предусмотрен один распределительный щит, размещенный в прихожей дома;
o Автоматические выключатели, дифференциальные автоматы, рубильники и УЗО в щитах – ABB, размещены во встроенном корпусе ABB.
Силовая кабельная сеть (электропроводка) дома в Новосибирске.
o Электропроводка дома предусмотрена с использованием кабелей ВВГ нг -LS с медными жилами в ПВХ-оболочке (не поддерживает горение);
o Общая протяженность линий электроснабжения и освещения – 1248 метра;
o Электропроводка предусмотрена скрытым способом, в защитной гофрированной ПВХ-трубе (усиленной конструкции);
o Запроектировано 121 точка подключения розеток и выключателей освещения в доме;
o Для системы телевидения предусмотрены кабельные трассы с использованием кабеля Cavel SAT 703, в количестве 120 метров
o Для компьютерной сети предусмотрен кабель UTP 4х24AWG - 610 метров;.
Резервное и стабилизированное электропитание.
Предусмотрено резервное электроснабжение дома, источник - инвертор напряжения однофазный CyberPower CPS 3500PRO с комплектом аккумуляторных батарей.
Для этого дома в Новосибирске выполнен проект отопления, водоснабжения и канализации.






















