Выполненные проекты
Проект отопления дома из бревна в дер. Сафоново
Объект: двухэтажный загородный дом из дерева (оцилиндрованное бревно), общей площадью 205 м.кв. в дер. Сафоново Московской области
Вариант отопления: «Комфортный»
Цена проекта отопления, канализации и водоснабжения: 35 235 руб. со скидкой 10%, проект котельной - бесплатно.
Проект котельной, отопления, водоснабжения и канализации дома в дер. Сафоново выполнен: 05.04.2020
Состав проекта котельной, отопления, канализации и водоснабжения дома в дер. Сафоново:
1. Пояснительная записка проекта, общие данные по системам отопления, канализации и водоснабжения дома 205 м.кв. в Московской области.
2. Тепломеханическая схема котельной с размещением оборудования в помещении 1-го этажа дома в дер. Сафоново.
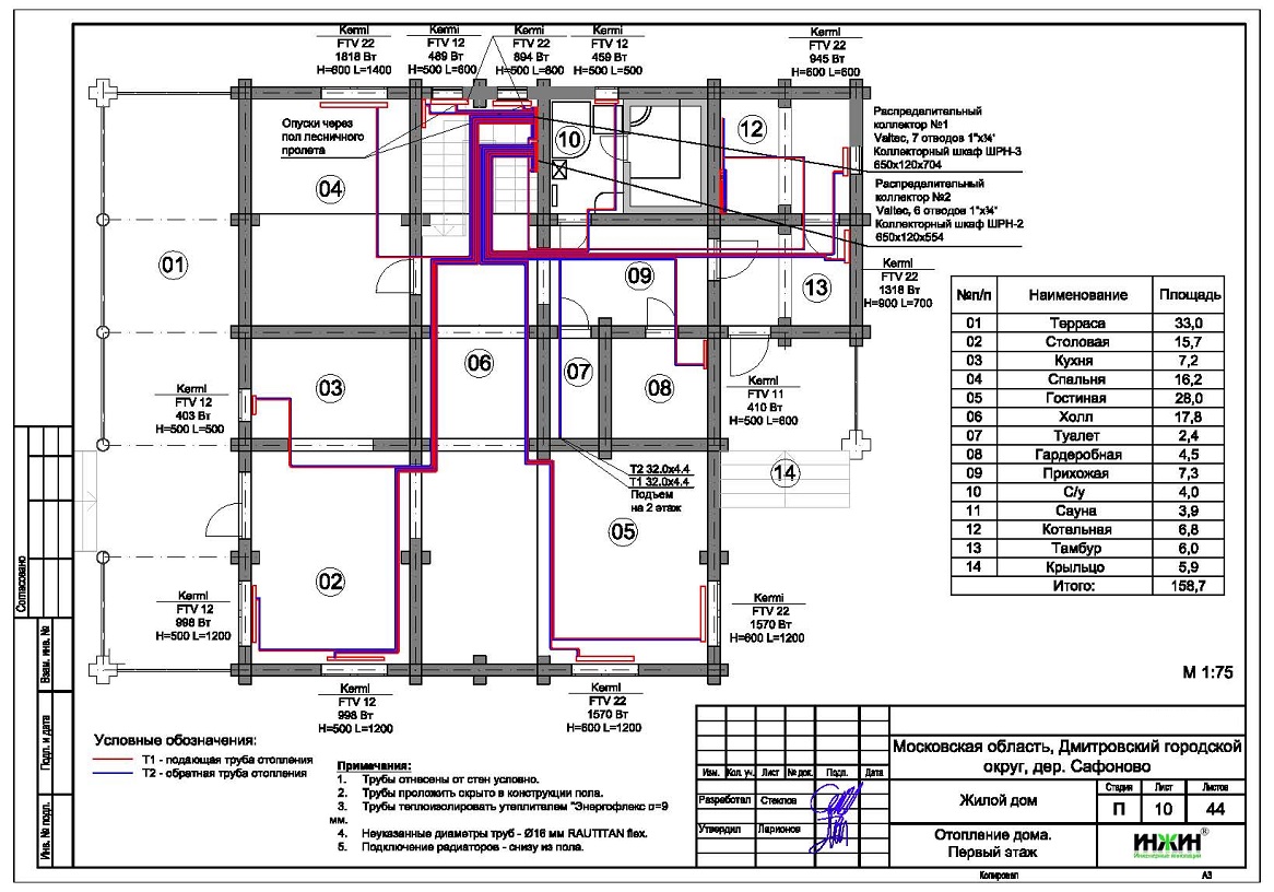
3. Комплект поэтажных чертежей радиаторного отопления дома в дер. Сафоново.
4. Комплект чертежей теплого пола дома на площади 105 м.кв.
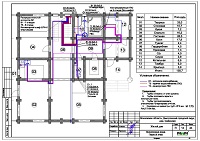
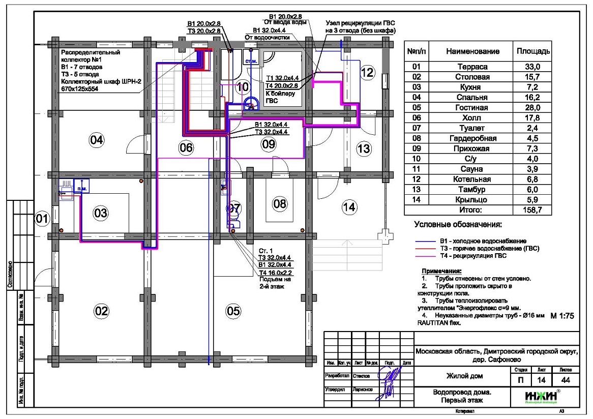
5. Комплект чертежей водоснабжения и канализации частного дома 205 м.кв.
6. Типовые схемы системы отопления канализации и водоснабжения дома из бревна 205 м.кв.
7. Теплотехнический расчет отопления деревянного дома 205 м.кв.
8. Спецификация материалов и оборудования по котельной, отоплению, канализации и водоснабжению дома в дер. Сафоново.
Объем проекта отопления, канализации и водоснабжения деревянного дома: 44 листа.
Описание проекта отопления, котельной, канализации и водоснабжения частного дома из бревна в дер. Сафоново.
Котельная частного дома в дер. Сафоново(проект котельной бесплатно).
o Размещена в помещении 1-го этажа дома в дер. Сафоново;
o Теплогенераторы котельной - основной настенный газовый котел Vaillant, мощностью 28 кВт (с комплектом перенастройки для работы на сжиженном газе), резервный - настенный электрический котел Protherm Скат KЕ 14, мощностью 14 кВт;
o Контуры теплоснабжения котельной – радиаторное отопление дома, теплый пол и горячее водоснабжение, для которого предусмотрен накопительный бойлер Vaillant, объемом 150 литров (подключение к коллектору);
o Расширительные баки отопления и бойлера Flamco, объемом 25 и 18 литров;
o Циркуляционные насосы отопления, теплого пола и бойлера Grundfos, использованы энергоэффективные насосы UPM3 Hybrid (в составе насосных групп), аналог насосов серии Alpha;
o Дымоудаление газового котла принудительное, дымоход коаксиальный, комплект Vaillant для прохода через стену, диаметр 60/100 мм;
o Распределительный коллектор - компактный модуль Meibes Kombimix с группой загрузки бойлера;
o Автоматика котельной – контроллер отопления ZONT H-2000 со встроенным GSM-модулем.
Автоматизация котельной, отопления и теплого пола (вариант «Комфортный»).
o Автоматическое регулирование отопления по наружной температуре (погодное регулирование, при помощи контроллера ZONT);
o Дистанционный контроль и управление работой газового котла отопления при помощи встроенного GSM-модуля и мобильного приложения ZONT.
Отопление дома в дер. Сафоново (проект отопления деревянного дома).
o Выполнен теплотехнический расчет отопления дома из клеенного бруса(утеплитель кровли - минеральная вата 250мм, пола - пенополистирол 100мм) с учетом теплопотерь через ограждающие конструкции при наружной температуре -28°С для Московской области (по СП 131.13330.2012), а также теплоотдачи теплого пола (в помещениях, где он предусмотрен), расчетный расход тепла на отопление составил 21 кВт, удельные теплопотери 102,1 Вт/м.кв.;
o Подобраны приборы для отопления дома: стальные панельные радиаторы KERMI с нижним подключением (из пола);
o Схема радиаторного отопления дома двухтрубная, коллекторно-лучевая, с принудительной циркуляцией теплоносителя и температурным графиком 80/60°С, коллекторы отопления Rehau, на 7 отводов (3 шт.);
o Трубы отопления из сшитого полиэтилена Rehau;
o Теплоизоляция трубопроводов отопления Энергофлекс, толщиной 9мм;
o Теплоноситель в системе радиаторного отопления дома – подготовленная вода, предусмотрены средства защиты от образования накипи.
Водяной теплый пол дома в дер. Сафоново (проект теплого пола).
o Водяной теплый пол в доме предусмотрен на площади 105 м.кв., коллекторы теплого пола Valtec - на 2 и 7 отводов;
o Предусмотрен отдельный контур котельной для теплоснабжения водяного теплого пола (насосная группа);
o Трубопроводы теплого пола – сшитый полиэтилен Rehau, основание для укладки - плиты ENERGOFLOOR PIPELOCK (Энергофлекс);
o Регулирование температуры теплого пола - общее, контуром котельной.
Внутренний водопровод дома в дер. Сафоново (проект водоснабжения).
o Схема внутреннего водоснабжения дома – коллекторно-лучевая с рециркуляцией горячей воды через полотенцесушители, выполнен расчет 24-х точек водоснабжения;
o Трубопроводы системы водоснабжения – из сшитого полиэтилена Rehau;
o Теплоизоляция трубопроводов Энергофлекс Супер, толщиной 9мм;
o Для летнего водопровода предусмотрен наружный кран Meibes SEPP-Eis с защитой от замерзания.
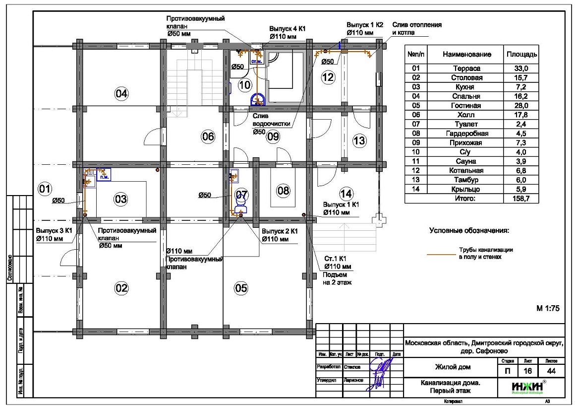
Внутренняя канализация (проект канализации) дома в дер. Сафоново.
o Безнапорная, отвод стоков от санитарно-технических приборов предусмотрен в септик;
o Произведен расчет 12-ти точек бытовой канализации для дома, предусмотрено три противовакуумных клапана;
o Канализационные трубы Синикон, раструбные, из полипропилена, диаметром 50 и 110мм.






















