Выполненные проекты
Проект электрики дома 356 м.кв. в КП «Лес и Река»
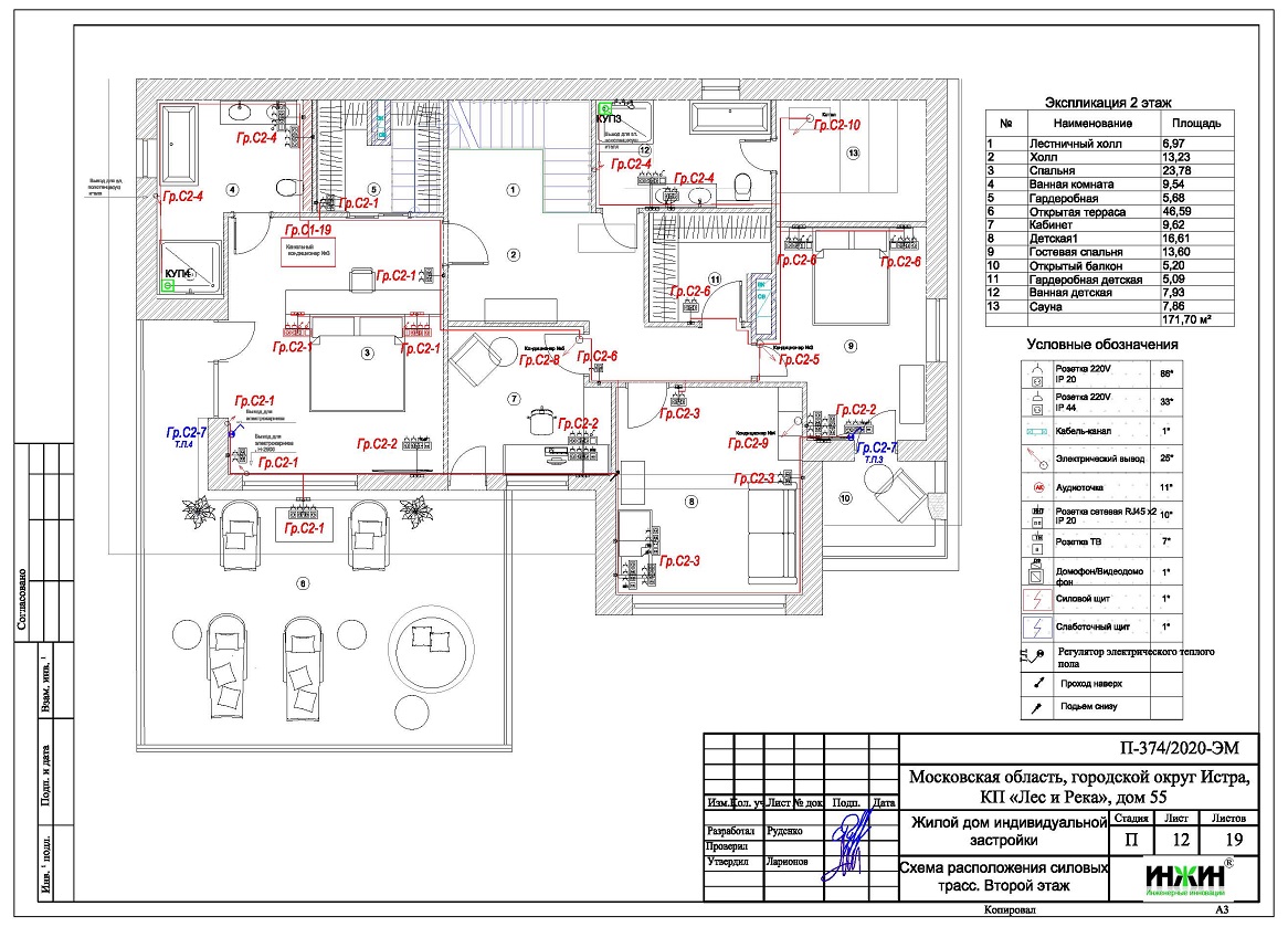
Объект: дом из кирпича общей площадью 356 м.кв. в КП «Лес и Река», Московской области
Цена (стоимость) проекта электрики (электропроводки): 30 438 руб. со скидкой 10%, проект слаботочных кабельных линий - бесплатно.
Проект электрики выполнен: 20.01.2021
Состав проекта электрики дома в КП «Лес и Река»:
1. Пояснительная записка. Общие данные по электроснабжению и освещению частного дома в КП «Лес и Река».
2. Однолинейные схемы вводного распределительного устройства и электрического распределительного щита дома 356 м.кв.
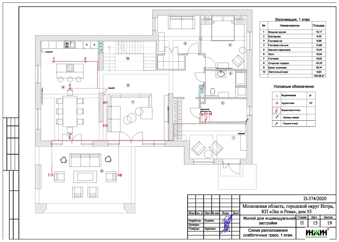
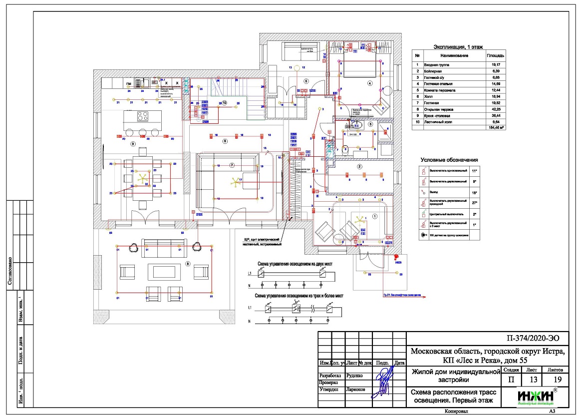
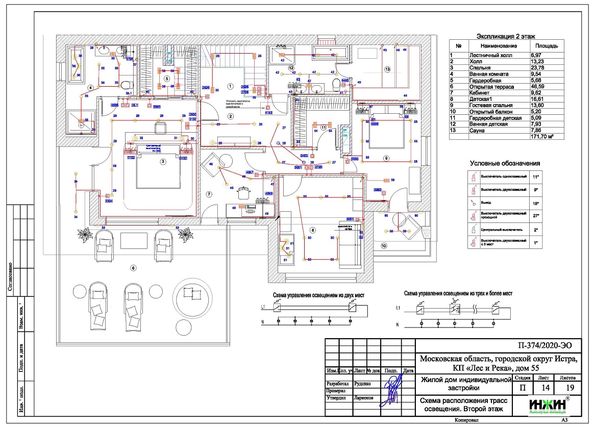
3. Чертежи электропроводки дома в КП «Лес и Река».
4. Чертежи групповых осветительных сетей дома в КП «Лес и Река».
5. Спецификация материалов и оборудования по электрике и электропроводке дома в КП «Лес и Река».
Объем проекта электрики дома 356 м.кв.: 19 листов.
Проект электрики дома площадью 356 м.кв. в КП «Лес и Река»- подробное описание.
Расчетные показатели по электроснабжению и освещению дома в КП «Лес и Река».
o Расчетная электрическая мощность дома составила 22,04 кВт, с учетом коэффициента спроса 0,5, принятого согласно СП 256.1325800.2016;
o При расчете учтено силовое оборудование: обогрев водостоков, электроплита, электрический теплый пол, газовый котел, скважинный насос, электрические полотенцесушители.
Распределительные электрические щиты дома площадью 356 м.кв.
o Проектом предусмотрен распределительный электрический щит, размещенный в техническом помещении;
o Автоматические выключатели, дифференциальные автоматы, рубильники и УЗО в щите – Legrand, в количестве 41 шт. размещены во встраиваемом корпусе.
Силовая кабельная сеть (электропроводка) дома в КП «Лес и Река».
o Электропроводка дома предусмотрена с использованием кабелей ВВГ нг -LS с медными жилами в ПВХ-оболочке (не поддерживает горение);
o Общая протяженность линий электроснабжения и освещения – 1480 метров, вводные кабельные линии - бронированные кабели (ВБбШв) 195 метров;
o Электропроводка предусмотрена скрытым способом, в гофрированной ПВХ-трубе и металлорукаве в виниловой оболочке;
o Запроектировано 197 точек подключения розеток и выключателей освещения в доме;
o Предусмотрены слаботочные линии локальной вычислительной сети и телевидения, общая протяженность - 755 метров.
Предусмотрено резервное электропитание - однофазный инвертор CyberPower CPS 7500 PRO мощностью 7,5 кВт и бензиновый генератор однофазный - по выбору Заказчика.



















