Выполненные проекты
Отопление дома 561 м.кв. с баней и бассейном, проект
Объект: частный дом из керамических блоков и клееного бруса, с гаражом и баней с бассейном, общей площадью 561 м.кв., расположенный в КП "Озерный Край Лыщево", Истринского района Московской области
Цена проекта отопления: 46 328 руб. со скидкой 10% (проект котельной и теплотрассы бесплатно).
Проект котельной, теплотрассы и отопления выполнен: 01.03.2021
Состав проекта котельной отопления и теплого пола трех строений – дома, гаража и бани:
1. Пояснительная записка проекта. Общие данные по системе отопления частного дома с баней и гаражом.
2. Тепломеханическая схема котельной с размещением оборудования в помещении гаража.
3. Комплекты поэтажных чертежей радиаторного отопления дома, гаража и бани.
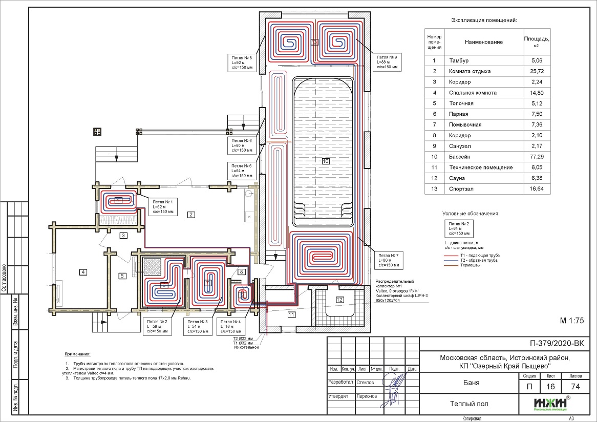
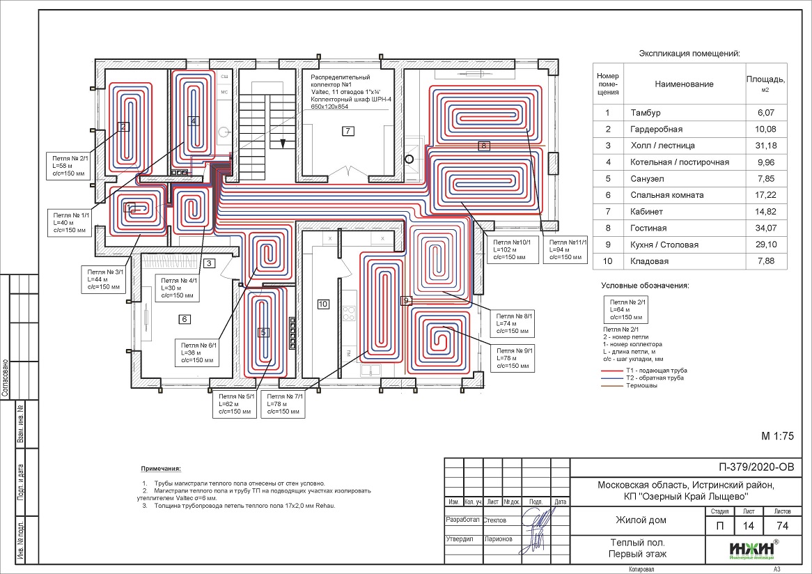
4. Комплекты чертежей водяного теплого пола дома и бани с бассейном.
6. Теплотехнический расчет отопления каждого из трех строений.
7. Спецификация материалов и оборудования по котельной, теплотрассе, отоплению и теплому полу дома, бани и гаража.
Объем проекта: 74 листа.
Описание проекта отопления и котельной частного дома, гаража и бани с бассейном в КП "Озерный Край Лыщево".
Котельная для трех строений (проект котельной бесплатно).
o Размещена в помещении котельной гаража;
o Предусмотрен напольный газовый котел Buderus Logano мощностью 95 кВт;
o Контуры теплоснабжения котельной – отопление дома и бани с гаражом (2 контура), теплый пол дома и бани с бассейном (2 контура), вентиляция бассейна, теплообменник бассейна, теплоснабжение хаммама и бойлер ГВС, всего 8 контуров;
o Для приготовления горячей воды всех строений предусмотрен накопительный бойлер Buderus, объемом 300 литров;
o Расширительные баки отопления и водоснабжения Flamco, объемом 80 и 25 литров соответственно;
o Циркуляционные насосы отопления и теплого пола Grundfos, использованы энергоэффективные насосы UPM3 Hybrid (в составе насосных групп), аналог насосов серии Alpha и MAGNA1;
o Дымоудаление естественное, предусмотрен дымоход из нержавеющей стали;
o Распределительный коллектор настенный, Meibes с насосными группами;
o Предусмотрена автоматическая подпитка отопления при помощи клапана Watts ALOMD;
o Автоматика котельной – контроллер Buderus Logamatic 4321 с 4-мя дополнительными функциональными модулями.
Автоматизация котельной (вариант «Комфортный»).
o Автоматическое регулирование отопления по наружной температуре (погодное регулирование);
o Автоматическое поддержание заданной температуры в контурах отопления, теплого пола и горячего водоснабжения.
Система отопления бани, гаража и дома (проект отопления) в КП "Озерный Край Лыщево".
o Выполнен теплотехнический расчет отопления дома, гаража и бани, с учетом теплопотерь через ограждающие конструкции при наружной температуре -28°С для Московской области (по СП 131.13330.2012), расчетный расход тепла на отопление дома составил 28,76 кВт, на отопление бани - 22,99 кВт, на отопление гаража - 8,61 кВт;
o Подобраны приборы для систем отопления дома, гаража и бани: панельные стальные радиаторы Kermi с нижним подключением и встраиваемые в пол конвекторы Varmann с естественной конвекцией;
o Схема радиаторного отопления всех трех строений двухтрубная, коллекторно-лучевая, с принудительной циркуляцией теплоносителя и температурным графиком 80/60°С;
o Трубы отопления из сшитого полиэтилена Rehau RAUTITAN flex;
o Коллекторы отопления – Valtec, 6 шт.;
o Шкафы коллекторные Valtec встраиваемые и пристраиваемые;
o Теплоизоляция трубопроводов отопления Энергофлекс, толщиной 9мм;
o Теплоноситель в системе отопления и теплых полов всех строений– подготовленная вода;
o Регулирование отопления ручное, при помощи "термоголовок".
Водяной теплый пол дома в КП "Озерный Край Лыщево" (проект теплого пола).
o Водяной теплый пол в доме и бане с бассейном предусмотрен на площади 170 м.кв., 22 петли;
o Трубопроводы теплого пола - сшитый полиэтилен Rehau RAUTHERM S;
o Коллекторы теплого пола Valtec, на 2, 9 и 11 отводов;
o Основание теплого пола – маты из ламинированного пенополистирола Elsen ElM01.50;
o Регулирование температуры теплого пола – общее, автоматикой котельной.
По этому проекту выполнен монтаж индивидуальной котельной.























