Выполненные проекты
Проект отопления дома 291 м.кв. во Владимирской области
Объект: загородный дом площадью 291 кв.м. во Владимирской области
Вариант отопления: «Комфортный»
Стоимость проекта отопления: 38 625 руб. (проект котельной – бесплатно)
Проект котельной и отопления выполнен: 06.05.2013
Состав проекта отопления и индивидуальной котельной:
1. Пояснительная записка. Общие данные по отоплению деревянного дома.
2. Теплотехнический расчет отопления.
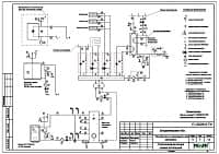
3. Тепломеханическая схема котельной с размещением оборудования.
4. Комплект чертежей радиаторного отопления загородного дома.
5. Комплект чертежей водяного теплого пола загородного дома.
6. Спецификация материалов и оборудования по теплому полу, отоплению и котельной.
Объем проекта отопления: 39 листов.
Подробное описание проекта отопления загородного дома во Владимирской области.
Котельная (проект котельной бесплатно).
o Котельная спроектирована в многотопливном варианте, на 3-х видах топлива: электричество, дизельное и твердое топливо;
o Предусмотрено использование 3-х котлов: напольного жидкотопливного котла Buderus Logano G215WS с дизельной горелкой Buderus Logatop DE 1.2H-0052, мощностью 52 кВт; напольного твердотопливного пиролизного Dakon KP PYRO38 мощностью 40 кВт и настенного электрического котла Vaillant eloBLOCK VE24 мощностью 24 кВт;
o В котельной предусмотрено использование буферной емкости Huch PSX-F, с изоляцией, специального я, объемом 850 литров;
o Магистральный коллектор Meibes с четырьмя контурами теплоснабжения: отопления дома, теплого пола, теплообменника летнего бассейна и горячего водоснабжения;
o Приготовление горячей воды запроектировано при помощи бойлера Reflex SU, объемом 200 литров;
o Расширительные баки отопления и водоснабжения Reflex (Германия);
o Циркуляционные насосы для отопления и теплого пола Grundfos;
o Трубы дымоходные из керамики Shiedel (Германия);
o Распределительный коллектор с насосно-смесительными узлами Meibes;
o Автоматика котельной – основной блок Buderus, Logamatic 4211, дополнительные модули для управления контурами со смесителем: Buderus, FM442 – 2 шт.
Автоматизация котельной и отопления (вариант «Комфортный»).
o Автоматическое регулирование отопления по наружной температуре (погодное регулирование);
o Автоматическое поддержание заданной температуры в контурах отопления, теплого пола и горячего водоснабжения.
Система отопления (проект отопления дома).
o Отопление дома радиаторное, использованы следующие типы отопительных приборов: стальные панельные радиаторы Kermi FTV с нижним подключением; напольные конвекторы Kermi ККV; стальные трубчатые радиаторы Zehnder Charleston и Kermi Decor-V; дизайн-радиатор Kermi Credo Duo; встроенные в пол конвекторы с естественной конвекцией TechnoHeat;
o Схема радиаторного отопления коллекторная с принудительной циркуляцией теплоносителя;
o Температурный график отопления 80/60° С;
o Трубопроводы отопления – сшитый полиэтилен Rehau RAUTITAN flex.
Водяной теплый пол.
o Теплые полы проектом предусмотрены на площади 210 м.кв.
o Трубопроводы теплого пола - сшитый полиэтилен Rehau RAUTHERM S.
o Управление теплым полом – общее, контуром котельной.



















