Выполненные проекты
Проект электрики дома в Ленинградской области
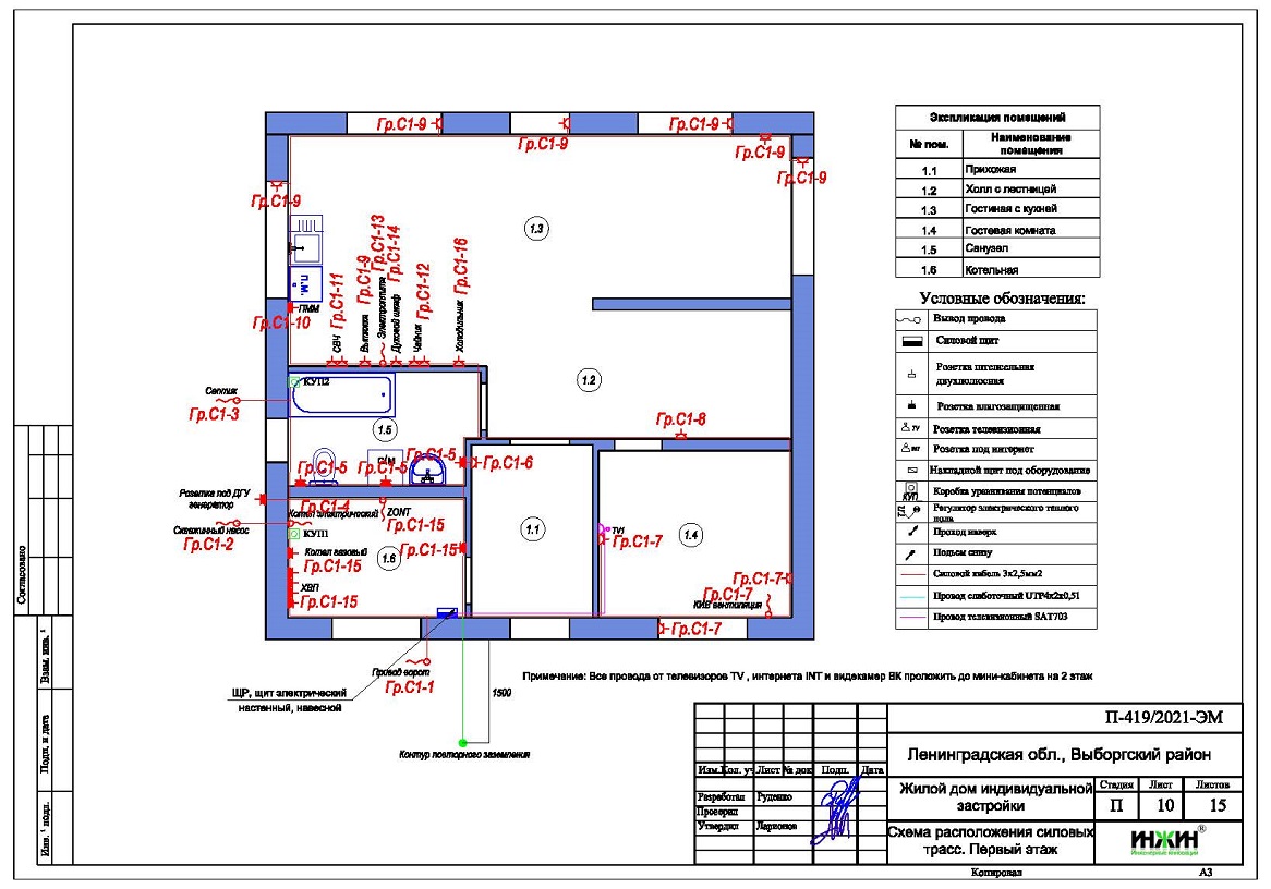
Объект: загородный частный дом из газобетонных блоков, площадью 160 м.кв., расположенный в г.Выборг Ленинградской области
Цена (стоимость) проекта электрики (электропроводки): 19 152 руб. со скидкой 10%, проект слаботочных кабельных линий - бесплатно.
Проект электрики выполнен: 26.07.2021
Состав проекта электрики дома в г.Выборг:
1. Пояснительная записка. Общие данные по электроснабжению и освещению частного дома в г.Выборг.
2. Однолинейные схемы вводного распределительного устройства и электрического распределительного щита дома 160 м.кв.
3. Чертежи электропроводки дома в г.Выборг.
4. Чертежи групповых осветительных сетей дома в г.Выборг.
5. Спецификация материалов и оборудования по электрике и электропроводке дома в г.Выборг.
Объем проекта электрики дома 160 м.кв.: 15 листов.
Проект электрики дома площадью 160 м.кв. в г.Выборг- подробное описание.
Расчетные показатели по электроснабжению и освещению дома в г.Выборг.
o Расчетная электрическая мощность дома составила 18,52 кВт, с учетом коэффициента спроса 0,6, принятого согласно СП 256.1325800.2016;
o При расчете учтено силовое оборудование: газовый и электрический котлы, скважинный насос, септик.
Распределительные электрические щиты дома площадью 160 м.кв.
o Проектом предусмотрен распределительный электрический щит, размещенный в помещении котельной;
o Автоматические выключатели, дифференциальные автоматы, рубильники и УЗО в щите – ABB, в количестве 29 шт. размещены в пристраиваемом корпусе.
Силовая кабельная сеть (электропроводка) дома в г.Выборг.
o Электропроводка дома предусмотрена с использованием кабелей ВВГ нг -LS с медными жилами в ПВХ-оболочке (не поддерживает горение);
o Общая протяженность линий электроснабжения и освещения – 600 метров, вводные кабельные линии - бронированные кабели (ВБбШв) 60 метров;
o Электропроводка предусмотрена скрытым способом, в гофрированной ПВХ-трубе усиленной конструкции;
o Запроектировано 70 точек подключения розеток и выключателей освещения в доме;
o Предусмотрены слаботочные линии локальной вычислительной сети и телевидения, общая протяженность - 80 метров.
Предусмотрено резервное электропитание - трехфазный генератор - по выбору Заказчика.
Заказать проект электрики дома дистанционно.
Для этого загородного дома в Выборге выполнен проект отопления, водоснабжения и канализации.



















