Выполненные проекты
Проект отопления таунхауса площадью 158 м.кв. в Москве
Объект: таунхаус площадью 158 м.кв., расположенный в Новой Москве
Вариант отопления: «Комфортный+»
Проект отопления, водоснабжения и канализации выполнен: 15.05.2013
Цена проекта отопления: 28 660 руб. (проект котельной бесплатно).
Состав проекта отопления, водоснабжения и канализации таунхауса в Москве:
1. Пояснительная записка. Общие данные по системам отопления, водоснабжения и канализации.
2. Тепломеханическая схема котельной с размещением оборудования в таунхаусе.
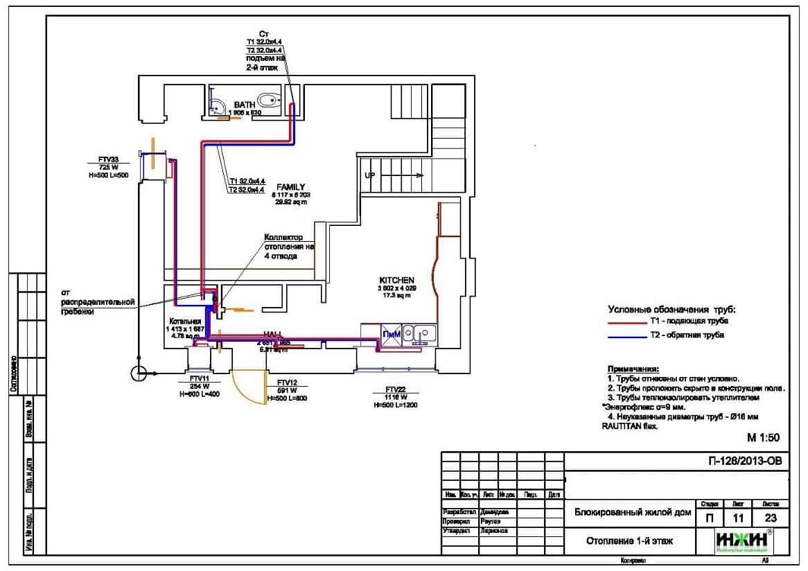
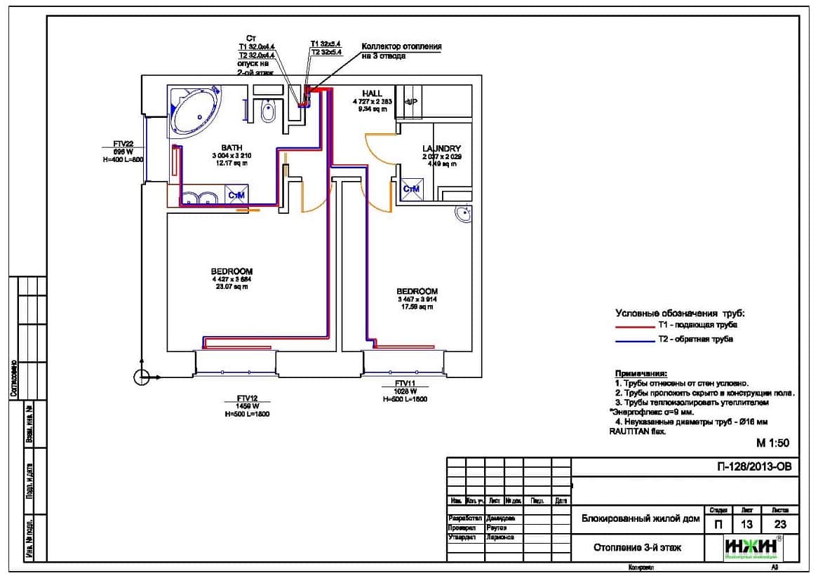
3. Комплект чертежей радиаторного отопления таунхауса.
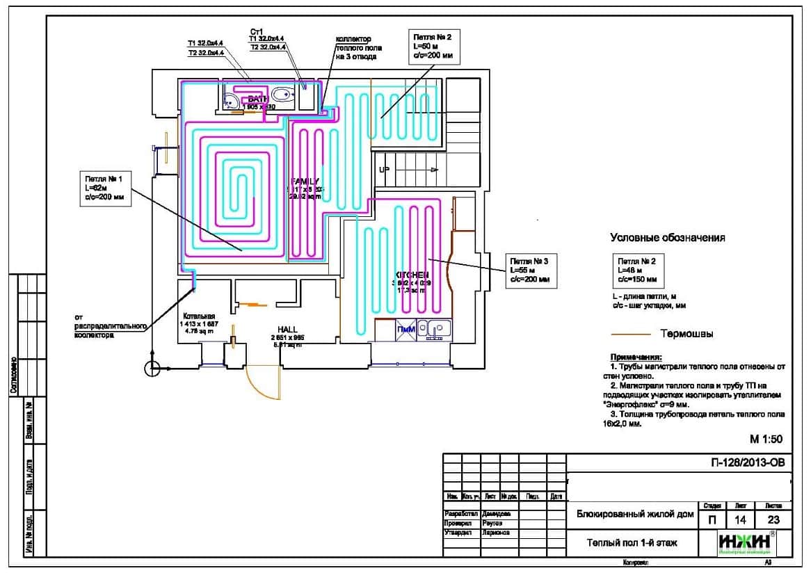
4. Комплект чертежей теплого пола таунхауса.
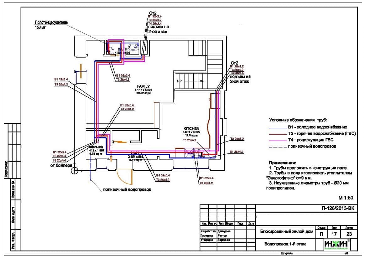
5. Комплект чертежей внутреннего водопровода и канализации таунхауса.
6. Тепловой расчет отопления.
7. Спецификация оборудования по системам отопления, водоснабжения и канализации.
Объем проекта отопления: 40 листов.
Описание проекта котельной, систем отопления, водоснабжения и канализации таунхауса в Москве.
Котельная таунхауса (проект котельной бесплатно).
o Котел – настенный газовый Thermona Therm 28 CLN мощностью 28 кВт, имеющийся на объекте;
o Контуры котельной – отопление дома, теплый пол, теплоснабжение вентиляции и горячее водоснабжение (контур бойлера);
o Приготовление горячей воды для гаража при помощи бойлера объемом 100 литров (в наличии);
o Расширительные баки отопления и водоснабжения Reflex (Германия);
o Насосы отопления, рециркуляции горячей воды и теплого пола - Grundfos;
o Трубы дымоходные – пластиковые, коаксиальный комплект для прохода «через стену»;
o Распределительная гребенка с насосно-смесительными узлами Meibes (Германия;
o Автоматика котельной – встроена в котел. Регулирование температуры контуров теплого пола и горячего водоснабжения ручное.
Автоматизация отопления и котельной(вариант «Комфортный+»)
o Автоматическое регулирование отопления по наружной температуре (погодное регулирование) – встроено в котел;
o Автоматическое регулирование температуры в контурах теплоснабжения, блок автоматики Vaillant calorMATIC 630/3 с дополнительным смесительным модулем;
o Автоматическое регулирование контура отопления по температуре в помещении, задатчик-регулятор Vaillant VR 60;
o Климат-контроль по помещениям (при помощи сервоприводов в коллекторных шкафах);
o Покомнатное управление температурой поверхности теплого пола.
Система отопления таунхауса (проект отопления).
o Отопление запроектировано на базе стальных панельных радиаторов Kermi FKV с нижним подключением. В одном из помещений применен конвектор MINIB COIL-KT, встроенный в подоконник, с принудительной конвекцией;
o Схема радиаторного отопления коллекторно-лучевая, с принудительной циркуляцией теплоносителя;
o Запроектирована скрытая прокладка трубопроводов отопления в стяжке пола;
o Температурный график отопления 80/60° С;
o Трубопроводы отопления – сшитый полиэтилен Rehau, RAUTITAN flex.
Водяной теплый пол (проект теплых полов).
Теплые полы проектом предусмотрены на площади 80 м.кв.
Трубопроводы теплого пола - поперечно сшитый полиэтилен Rehau.
Управление теплым полом – покомнатное, при помощи датчиков температуры и сервоприводов в коллекторных шкафах.
Внутренний водопровод.
o Схема внутреннего водоснабжения – тройниковая тупиковая;
o Трубопроводы системы водоснабжения – полипропилен армированный PP-ALUX Valtec;
o В системе горячего водоснабжения предусмотрена рециркуляция горячей воды.
Внутренняя канализация.
o Предусмотрен безнапорный отвод стоков от санитарно-технических приборов;
o Трубопроводы канализации – полипропилен Синикон (Россия).


















