Выполненные проекты
Проект отопления коттеджа 400 м.кв. с гостевым домом
Объект: жилой дом с гостевым домом общей площадью 400 м.кв., расположенный в пос. Западный Московской области
Вариант отопления: «Комфортный»
Стоимость проекта отопления: 74 400 руб., проект котельной - бесплатно
Проект отопления, водоснабжения и канализации: выполнен 11.06.2013
Состав проекта котельной, отопления, водоснабжения и канализации дома в пос. Западный Московской области:
Пояснительная записка. Общие данные по системам отопления, водоснабжения и канализации.
Теплотехнический расчет отопления основного дома.
Теплотехнический расчет отопления гостевого дома.
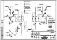
Тепломеханическая схема котельной с размещением оборудования.
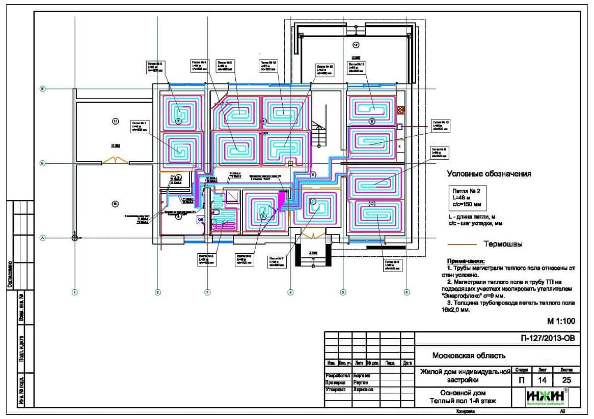
Комплект чертежей радиаторного отопления и теплого пола основного дома.
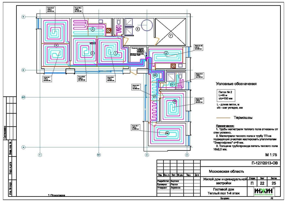
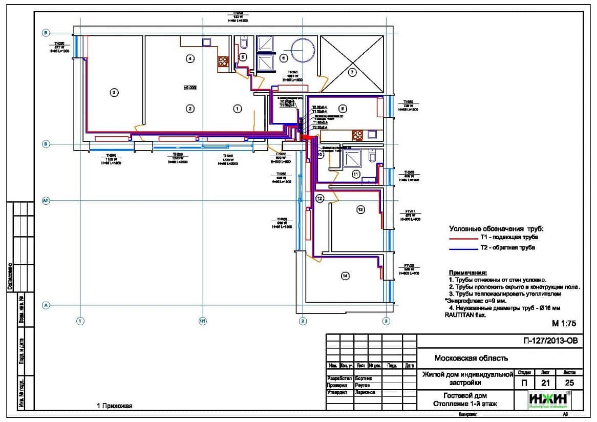
Комплект чертежей радиаторного отопления и теплого пола гостевого дома.
Комплект чертежей внутреннего водопровода и канализации основного и гостевого домов.
Схема теплотрассы между основным и гостевым домами.
Спецификация оборудования по отоплению, водоснабжению и канализации котельной, основного и гостевого дома.
Объем проекта отопления, водоснабжения и канализации основного и гостевого дома: 58 листов.
Описание проекта отопления, водоснабжения и канализации дома в пос. Западный Московской области.
Котельная (проект котельной бесплатно).
o Размещение котельной – в гостевом доме;
o На базе напольного газового котла Buderus Logano G234WS мощностью 60 кВт;
o Контуры теплоснабжения – 4 шт.: теплоснабжения основного дома, радиаторного отопления гостевого дома, теплого пола гостевого дома, бойлера горячего водоснабжения гостевого дома;
o Приготовление горячей воды при помощи бойлера Reflex SF100 объемом 100 литров;
o Расширительные баки отопления и водоснабжения Reflex (Германия);
o Насосы отопления и теплого пола Grundfos, в составе насосных групп котельной;
o Трубы дымоходные – Rosinox, из нержавеющей стали;
o Распределительная гребенка с насосно-смесительными узлами Meibes;
o Автоматика котельной – Buderus, Logamatic 4211.
Тепловой пункт дома.
o Размещение – в основном доме;
o Контуры теплоснабжения – 3 шт.: радиаторного отопления дома, теплого пола основного дома и бойлера горячего водоснабжения;
o Приготовление горячей воды при помощи бойлера Reflex SF200 объемом 200 литров;
o Расширительные баки отопления и водоснабжения Reflex;
o Насосы отопления и теплого пола дома Grundfos;
o Распределительный коллектор с насосно-смесительными узлами Meibes;
o Автоматика котельной – Buderus, Logamatic 4323 (ведомый блок).
Автоматизация отопления, котельной и теплового пункта (вариант «Комфортный»).
o Автоматическое регулирование отопления по наружной температуре (погодное регулирование);
o Автоматическое регулирование отопления по датчикам температуры в основном и гостевом домах;
o Автоматическое поддержание заданной температуры контуров отопления, теплых полов и горячего водоснабжения.
Система отопления дома и бани (проект отопления).
o Расчетная мощность, требуемая для отопления дома и бани составила 42,28 кВт, включая расход тепла на инфильтрацию воздуха;
o Проектом предусмотрено использование встроенных в пол конвекторов TechnoHeat, а также стальных панельных радиаторов отопления Kermi FTV с подключением снизу из пола;
o Схема радиаторного отопления двухтрубная, коллекторно-лучевая с принудительной циркуляцией теплоносителя;
o Температурный график отопления 80/60° С;
o Магистральные и подводящие трубопроводы отопления – сшитый полиэтилен Rehau RAUTITAN flex.
Водяной теплый пол (проект теплого пола).
o Теплый пол предусмотрен на площади 290 м.кв.;
o Трубопроводы теплого пола - сшитый полиэтилен Rehau RAUTHERM S;
o Напольный утеплитель – ячеистый пенополистирол «Формат» (Россия) FT40/20L.
Внутренний водопровод (проект водопровода).
o Схема внутреннего водоснабжения – тройниковая с рециркуляцией горячей воды;
o Проектом предусмотрено 44 точки горячего/холодного водоснабжения, включая полотенцесушители;
o Трубопроводы системы водоснабжения – Армированный полипропилен Valtec PP-ALUX.
Внутренняя канализация.
o Предусмотрен безнапорный отвод стоков от санитарно-технических приборов дома;
o Всего предусмотрен отвод стоков от 26-и сантехнических приборов;
o Трубопроводы канализации – полипропилен Синикон.



















