Выполненные проекты
Проект отопления дома 370 м.кв. с бассейном
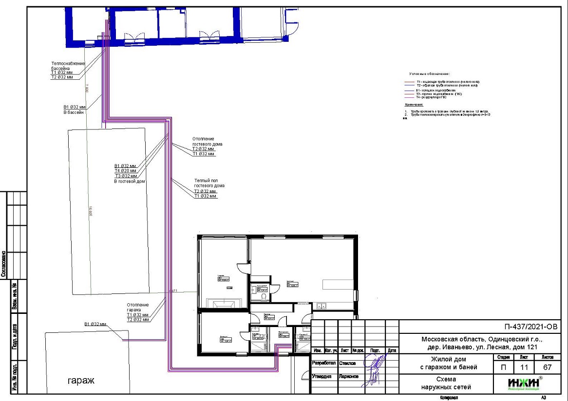
Объект: частный дом из газобетона, с гостевым домом и летним бассейном, общей площадью 370 м.кв., расположенный в дер. Иваньево Одинцовского района Московской области
Вариант отопления: «Комфортный»
Цена проекта отопления, канализации и водоснабжения: 89 190 руб. со скидкой 10%, проект котельной - бесплатно.
Проект котельной, отопления, водоснабжения и канализации выполнен: 11.01.2022
Состав проекта котельной, отопления, канализации и водоснабжения дома в дер. Иваньево:
1. Пояснительная записка проекта, общие данные по системам отопления, канализации и водоснабжения дома 370 м.кв. в дер. Иваньево.
2. Тепломеханическая схема котельной с размещением оборудования в отдельном помещении дома из газобетона.
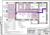
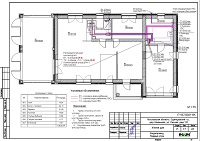
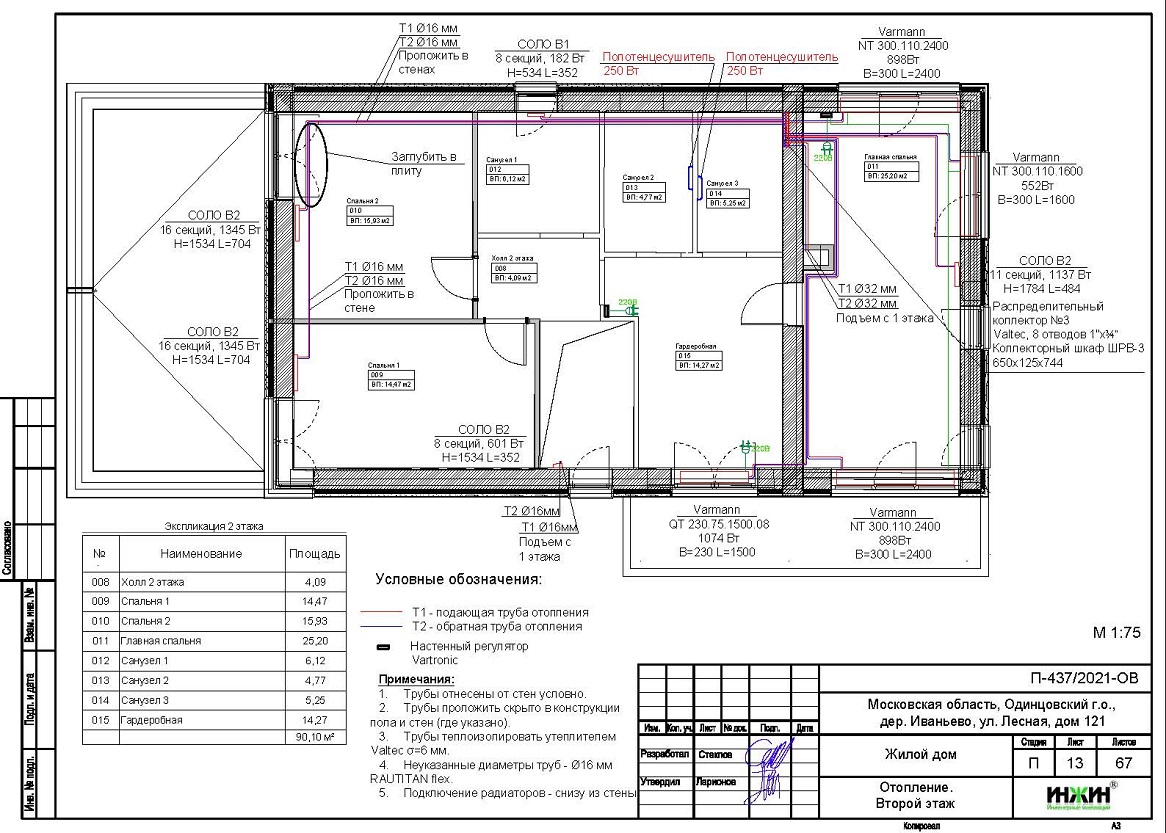
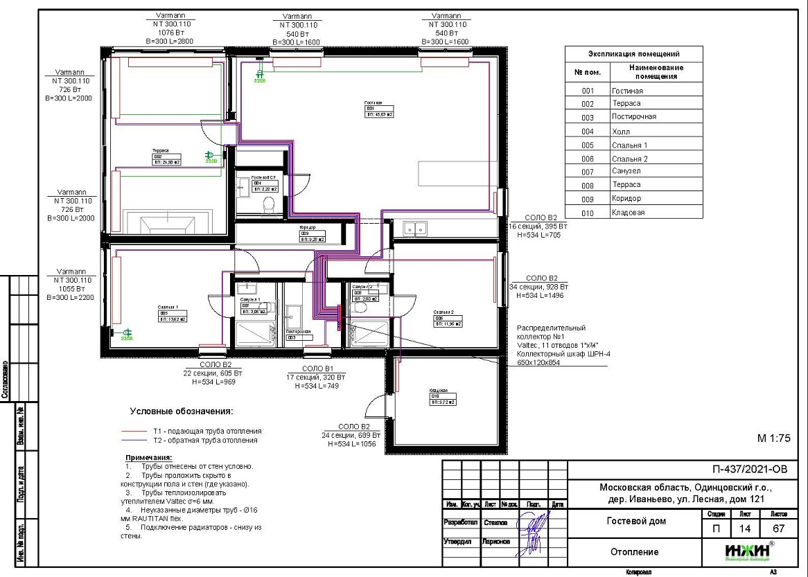
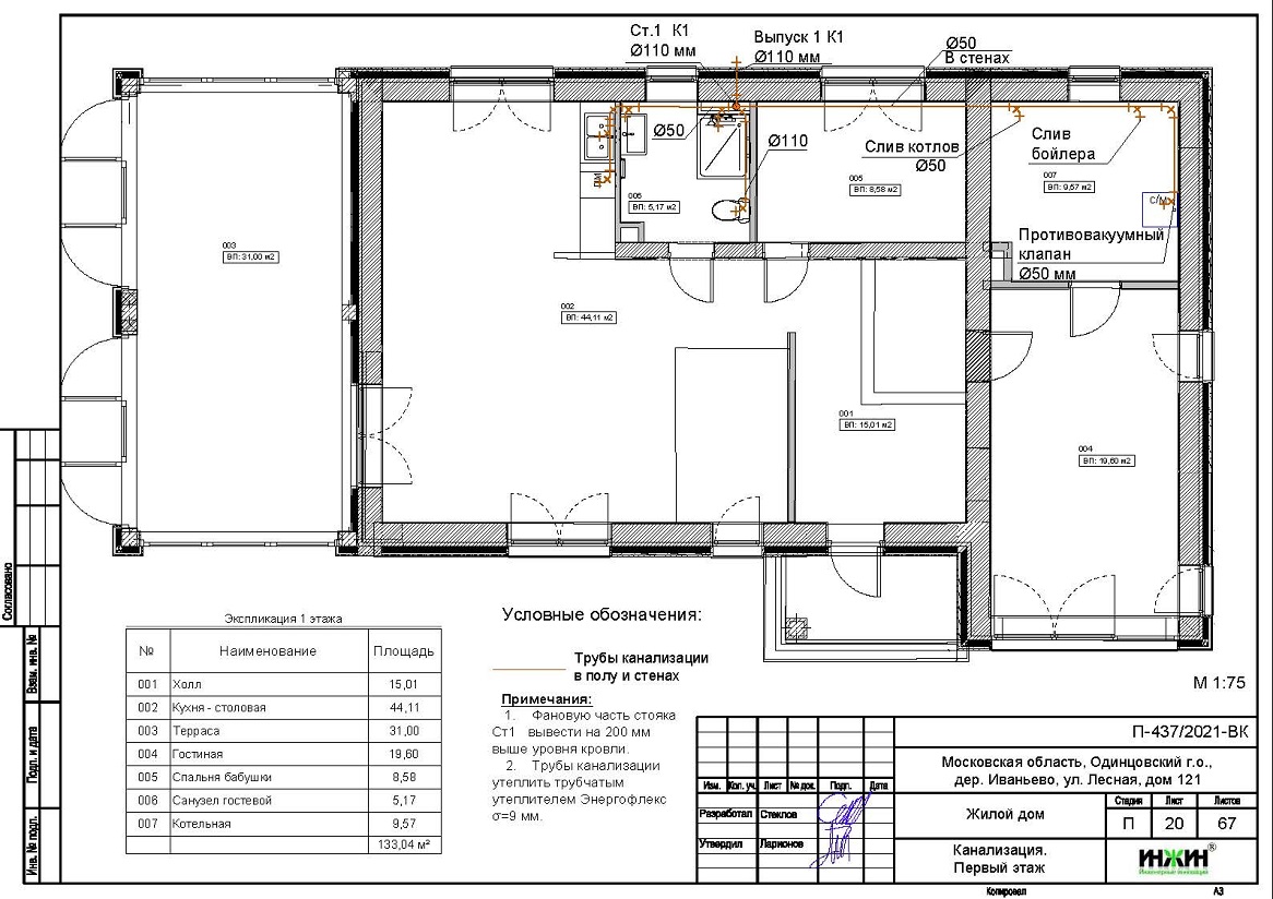
3. Комплект поэтажных чертежей радиаторного отопления дома в дер. Иваньево.
4. Комплект чертежей теплого пола на площади 175 м.кв.
5. Комплект чертежей водоснабжения и канализации частного дома из газобетона в дер. Иваньево.
6. Типовые схемы системы отопления канализации и водоснабжения дома 370 м.кв.
7. Теплотехнический расчет отопления дома из газобетона.
8. Спецификация материалов и оборудования по котельной, отоплению, канализации и водоснабжению дома в дер. Иваньево.
Объем проекта отопления, канализации и водоснабжения дома в дер. Иваньево: 67 листов.
Описание проекта отопления, котельной, канализации и водоснабжения частного дома 370 м.кв. в дер. Иваньево.
Котельная частного дома в дер. Иваньево(проект котельной бесплатно).
o Размещена в отдельном помещении первого этажа дома 370 м.кв.;
o Теплогенераторы - два настенных газовых котла Vaillant turboTEC plus, мощностью 36 кВт каждый;
o Контуры теплоснабжения котельной – радиаторное отопление основного и гостевого дома, теплый пол (по одному на строение), теплоснабжение вентиляции дома, теплоснабжение теплообменника летнего бассейна, отопление гаража (резерв) и горячее водоснабжение, для которого предусмотрен накопительный бойлер Vaillant uniSTOR, объемом 400 литров (подключение к коллектору);
o Расширительные баки отопления и бойлера Flamco, объемом 80 и 35 литров, соответственно;
o Дымоудаление принудительное, дымоход коаксиальный, два комплекта Vaillant для горизонтального прохода через стену, диаметр 60/100 мм;
o Распределительный коллектор - Meibes с насосными группами и гидравлическими разделителями;
o Автоматика котельной – контроллер ZONT Climatic 1.3 со встроенным GSM-модулем и дополнительными блоками расширения EX-77.
Отопление дома в дер. Иваньево (проект отопления дома).
o Выполнен теплотехнический расчет отопления комплекса строений (утеплитель кровли и стен дома - базальтовая вата 200 и 100мм, соответственно) с учетом теплопотерь через ограждающие конструкции при наружной температуре -28°С для Московской области (по СП 131.13330.2012), расчетный расход тепла на отопление основного дома составил 22,73 кВт, удельные теплопотери 98,6 Вт/м.кв., гостевого дома - 11,62 кВт, удельные теплопотери 91 Вт/м.кв.;
o Подобраны приборы для отопления обоих домов: стальные дизайнерские радиаторы СОЛО (КЗТО)с нижним подключением, в вентильном исполнении, а также встроенные в пол конвекторы Varmann c естественной и принудительной конвекцией;
o Схема радиаторного отопления основного и гостевого дома двухтрубная, коллекторно-лучевая, с принудительной циркуляцией теплоносителя и температурным графиком 80/60°С;
o Трубы отопления из сшитого полиэтилена Rehau;
o Теплоизоляция трубопроводов отопления Valtec, толщиной 6мм;
o Теплоноситель в системе радиаторного отопления дома – подготовленная вода, предусмотрены средства защиты от образования накипи.
Водяной теплый пол дома в дер. Иваньево (проект теплого пола).
o Водяной теплый пол в основном и гостевом доме предусмотрен на площади 175 м.кв., коллекторы теплого пола Valtec на 8 (для основного) и 12 (для гостевого) отводов;
o Предусмотрено два насосно-смесительных узла для теплоснабжения водяного теплого пола дома (по одному на строение) - в составе насосных групп;
o Трубопроводы теплого пола – сшитый полиэтилен Rehau;
o Регулирование температуры теплого пола - общее, регулятором на смесительной группе.
Внутренний водопровод дома в дер. Иваньево (проект водоснабжения).
o Схема внутреннего водоснабжения дома – коллекторно-лучевая с рециркуляцией горячей воды через водяные полотенцесушители, выполнен расчет 61-й точки водоснабжения и полотенцесушителей (для обоих строений);
o Трубопроводы системы водоснабжения – из сшитого полиэтилена Rehau;
o Теплоизоляция трубопроводов Valtec, толщиной 6мм;
o Для летнего водопровода предусмотрен незамерзающий кран Meibes SEPP-Eis.
Внутренняя канализация (проект канализации) дома в дер. Иваньево.
o Безнапорная, отвод стоков от санитарно-технических приборов предусмотрен в поселковую канализацию;
o Произведен расчет 29-и точек бытовой канализации;
o Канализационные трубы Синикон, раструбные.

























