Выполненные проекты
Отопление дома 247 м.кв. в Щелковском районе
Объект: двухэтажный загородный дом из полистиролбетона, площадью площадью 247 м.кв., расположенный в КП "Дачный-2" Щелковского района Московской области
Вариант отопления: «Комфортный»
Цена проекта отопления, канализации и водоснабжения: 56 169 руб. со скидкой 10%, проект котельной - бесплатно.
Проект котельной, отопления, водоснабжения и канализации выполнен: 24.01.2022
Состав проекта котельной, отопления, канализации и водоснабжения дома в КП "Дачный-2":
1. Пояснительная записка проекта, общие данные по системам отопления, канализации и водоснабжения дома 247 м.кв. в КП "Дачный-2".
2. Тепломеханическая схема котельной с размещением оборудования в отдельном помещении дома из полистиролбетона.
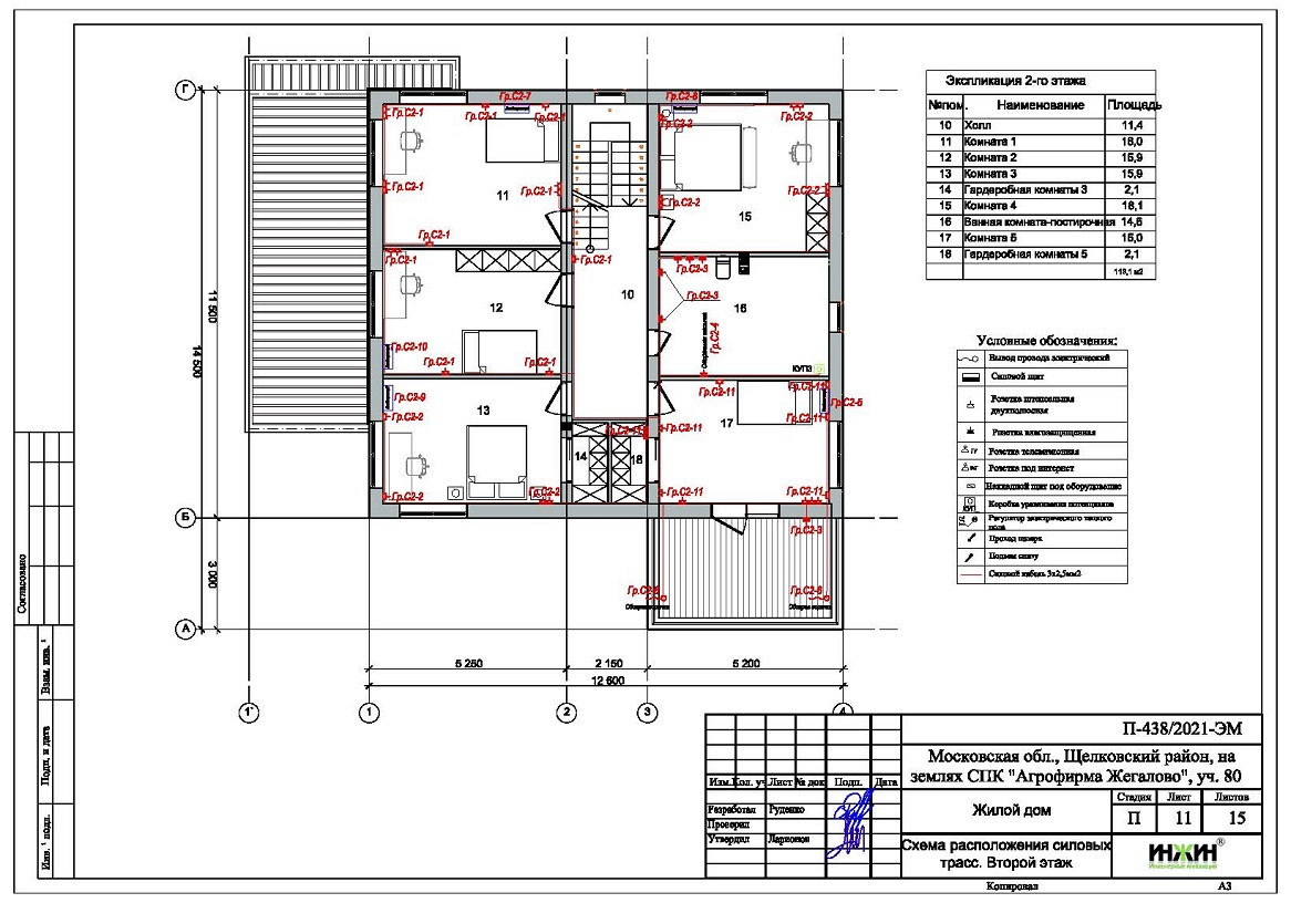
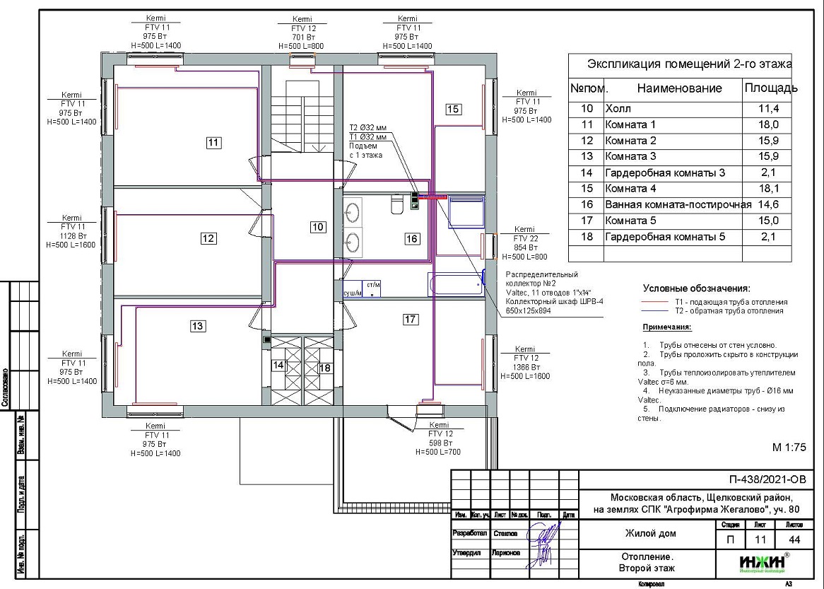
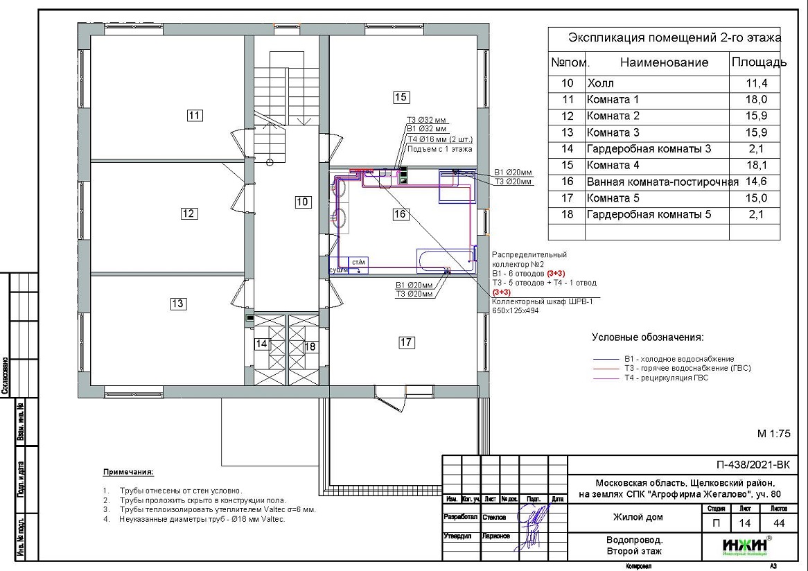
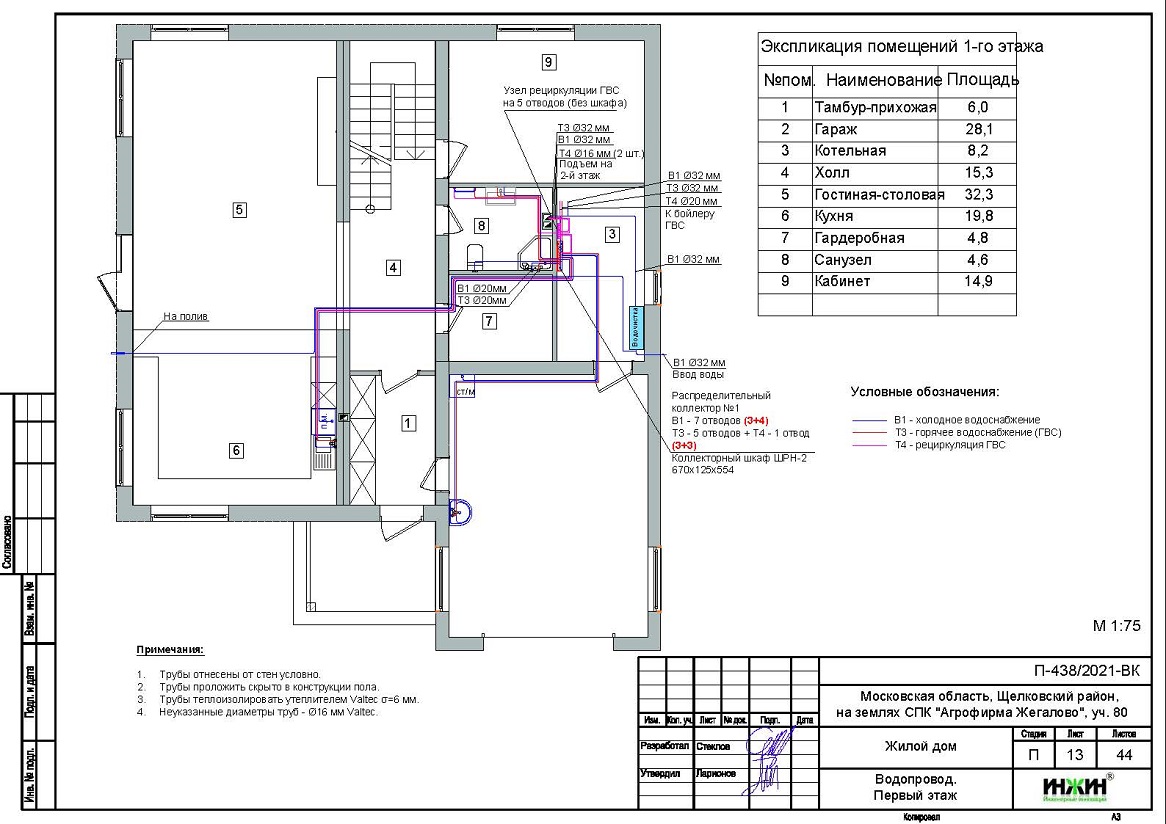
3. Комплект поэтажных чертежей радиаторного отопления дома в КП "Дачный-2".
4. Комплект чертежей теплого пола на площади 70 м.кв.
5. Комплект чертежей водоснабжения и канализации частного дома из полистиролбетона в КП "Дачный-2".
6. Типовые схемы системы отопления канализации и водоснабжения дома 247 м.кв.
7. Теплотехнический расчет отопления дома из полистиролбетона.
8. Спецификация материалов и оборудования по котельной, отоплению, канализации и водоснабжению дома в КП "Дачный-2".
Объем проекта отопления, канализации и водоснабжения дома в КП "Дачный-2": 44 листа.
Описание проекта отопления, котельной, канализации и водоснабжения частного дома 247 м.кв. в КП "Дачный-2".
Котельная частного дома в КП "Дачный-2"(проект котельной бесплатно).
o Размещена в отдельном помещении дома 247 м.кв.;
o Теплогенератор - настенный газовый котел Buderus U072, мощностью 35 кВт (в наличии на объекте);
o Контуры теплоснабжения котельной – радиаторное отопление дома, теплый пол и горячее водоснабжение, для которого предусмотрен накопительный бойлер Drazice, объемом 300 литров (подключение к котлу);
o Расширительные баки отопления и бойлера Flamco, объемом 25 литров каждый;
o Дымоудаление принудительное, дымоход коаксиальный, комплект Buderus для горизонтального прохода через стену, диаметр 60/100 мм;
o Распределительный коллектор - компактный модуль Meibes Kombimix;
o Автоматика котельной – встроена в котел.
Отопление дома в КП "Дачный-2" (проект отопления дома).
o Выполнен теплотехнический расчет отопления дома из полистиролбетона (утеплитель кровли - минеральная вата 200мм, плита основания - ЭППС 50мм) с учетом теплопотерь через ограждающие конструкции при наружной температуре -28°С для Московской области (по СП 131.13330.2012), расчетный расход тепла на отопление дома составил 21,5 кВт, удельные теплопотери 87,1 Вт/м.кв.;
o Подобраны приборы для отопления дома: стальные панельные радиаторы Kermi с нижним подключением, в вентильном исполнении;
o Схема радиаторного отопления дома двухтрубная, коллекторно-лучевая, с принудительной циркуляцией теплоносителя и температурным графиком 80/60°С;
o Трубы отопления из металлопластика Valtec;
o Теплоизоляция трубопроводов отопления Valtec, толщиной 6мм;
o Теплоноситель в системе радиаторного отопления дома – подготовленная вода, предусмотрены средства защиты от образования накипи.
Водяной теплый пол дома в КП "Дачный-2" (проект теплого пола).
o Водяной теплый пол в доме предусмотрен на площади 70 м.кв., коллекторы теплого пола Valtec на 8 отводов;
o Предусмотрен насосно-смесительный узел для теплоснабжения водяного теплого пола дома - в составе насосной группы;
o Трубопроводы теплого пола – сшитый полиэтилен Valtec;
o Регулирование температуры теплого пола - общее, регулятором на смесительной группе.
Внутренний водопровод дома в КП "Дачный-2" (проект водоснабжения).
o Схема внутреннего водоснабжения дома – коллекторно-лучевая с рециркуляцией горячей воды через водяные полотенцесушители, выполнен расчет 25-ти точек водоснабжения и полотенцесушителей;
o Трубопроводы системы водоснабжения – из металлопластика Valtec;
o Теплоизоляция трубопроводов Энергофлекс Супер, толщиной 9мм;
o Для летнего водопровода предусмотрен незамерзающий кран Meibes SEPP-Eis.
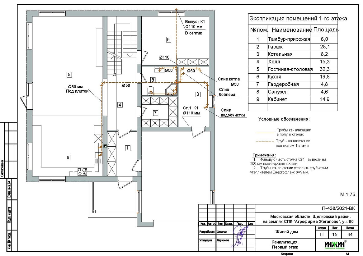
Внутренняя канализация (проект канализации) дома в КП "Дачный-2".
o Безнапорная, отвод стоков от санитарно-технических приборов предусмотрен в септик;
o Произведен расчет 14-ти точек бытовой канализации;
o Канализационные трубы Синикон, раструбные, из полипропилена.

Заказать в нашей компании проект отопления, водоснабжения и канализации загородного дома дистанционно со скидкой.
Для этого дома выполнен проект электрики.
По этому проекту выполнен монтаж отопления, водоснабжения и канализации.






















