Выполненные проекты
Проект отопления дома 155 м.кв. в г. Лосино-Петровский
Объект: двухэтажный дом из газобетона, площадью 155 м.кв., расположенный в г. Лосино-Петровский (рп Свердловский) Московской области
Вариант отопления: «Комфортный»
Цена проекта отопления, канализации и водоснабжения: 40 005 руб. со скидкой 10%, проект котельной - бесплатно.
Проект котельной, отопления, водоснабжения и канализации выполнен: 10.03.2022
Состав проекта котельной, отопления, канализации и водоснабжения дома в г. Лосино-Петровский:
1. Пояснительная записка проекта, общие данные по системам отопления, канализации и водоснабжения дома 155 м.кв. в г. Лосино-Петровский.
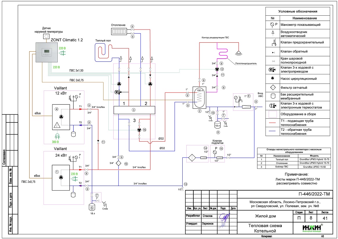
2. Тепломеханическая схема котельной с размещением оборудования в отдельном помещении дома из газобетона.
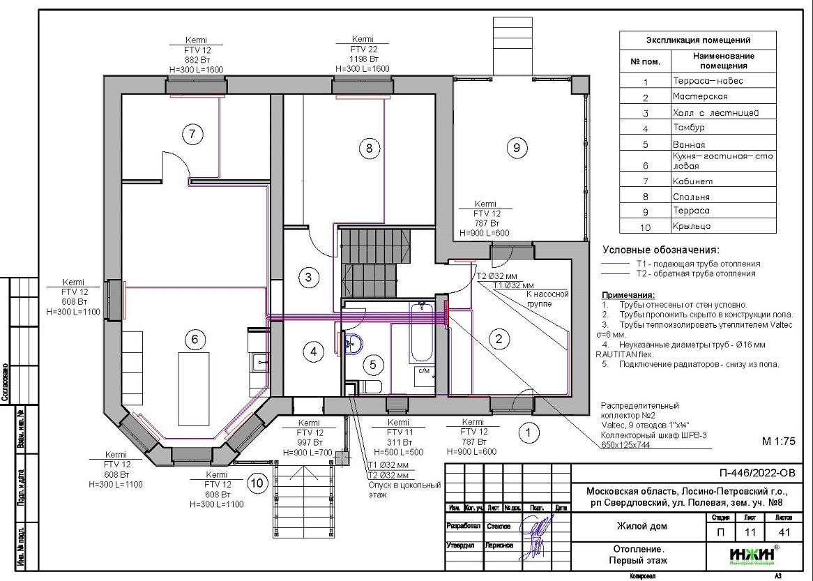
3. Комплект поэтажных чертежей радиаторного отопления дома в г. Лосино-Петровский.
4. Комплект чертежей теплого пола на площади 110 м.кв.
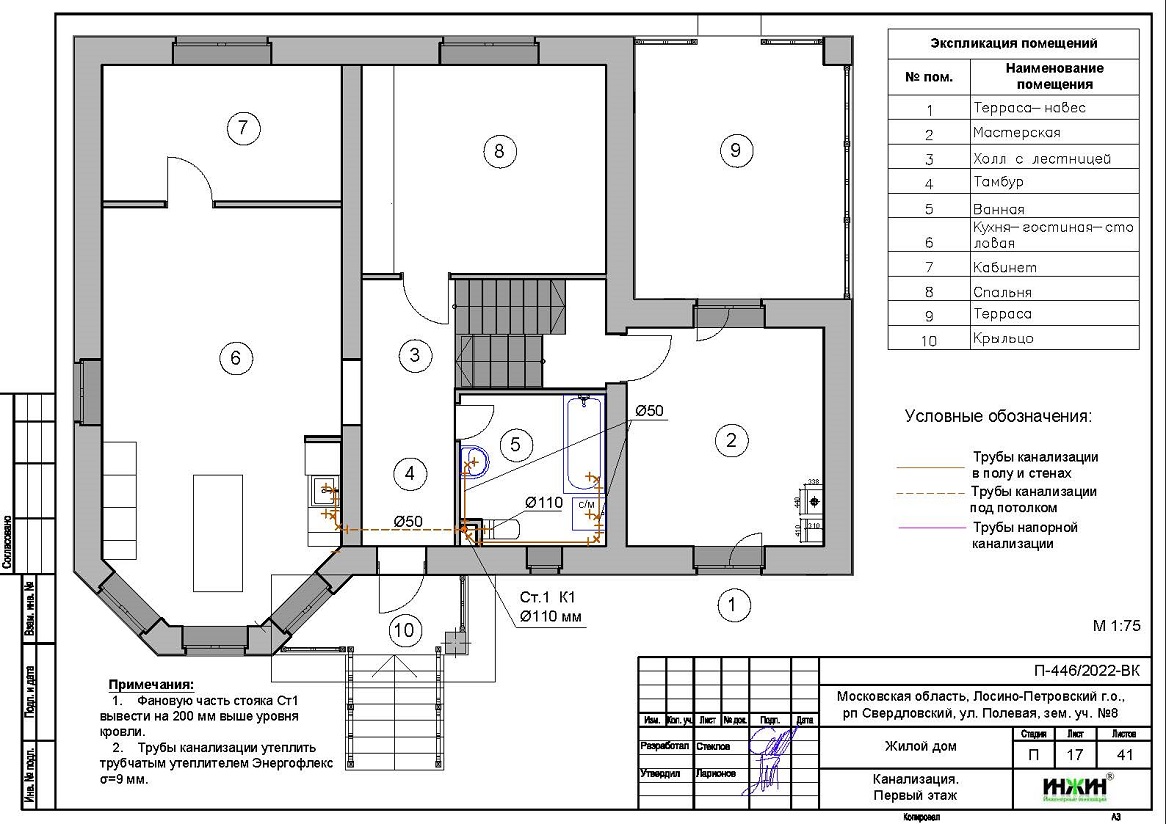
5. Комплект чертежей водоснабжения и канализации частного дома из полистиролбетона в г. Лосино-Петровский.
6. Типовые схемы системы отопления канализации и водоснабжения дома 155 м.кв.
7. Теплотехнический расчет отопления дома из газобетона.
8. Спецификация материалов и оборудования по котельной, отоплению, канализации и водоснабжению дома в г. Лосино-Петровский.
Объем проекта отопления, канализации и водоснабжения дома в г. Лосино-Петровский: 41 лист.
Описание проекта отопления, котельной, канализации и водоснабжения частного дома 155 м.кв. в г. Лосино-Петровский.
Котельная частного дома в г. Лосино-Петровский(проект котельной бесплатно).
o Размещена в отдельном помещении дома 155 м.кв.;
o Теплогенераторы - основной настенный газовый котел Vaillant turboTEC plus, мощностью 24 кВт, резервный - электрический котел Vaillant eloBLOCK, мощностью 12 кВт;
o Контуры теплоснабжения котельной – радиаторное отопление дома, теплый пол и горячее водоснабжение, для которого предусмотрен накопительный бойлер Vaillant uniSTOR, объемом 150 литров (подключение к коллектору);
o Расширительные баки отопления и бойлера Flamco, объемом 25 и 18 литров, соответственно;
o Дымоудаление принудительное, дымоход коаксиальный, комплект Vaillant для горизонтального прохода через стену, диаметр 60/100 мм;
o Распределительный коллектор - Meibes с насосными группами;
o Автоматика котельной – контроллер ZONT Climatic 1.2 со встроенным GSM-модулем.
Отопление дома в г. Лосино-Петровский (проект отопления дома).
o Выполнен теплотехнический расчет отопления дома из газобетона (утеплитель стен - каменная вата 50мм, кровля - ЭППС 100мм, плита основания - ЭППС 20мм) с учетом теплопотерь через ограждающие конструкции при наружной температуре -28°С для Московской области (по СП 131.13330.2012), расчетный расход тепла на отопление дома составил 13,26 кВт, удельные теплопотери 76,6 Вт/м.кв.;
o Подобраны приборы для отопления дома: стальные панельные радиаторы Kermi с нижним подключением, в вентильном исполнении;
o Схема радиаторного отопления дома двухтрубная, коллекторно-лучевая, с принудительной циркуляцией теплоносителя и температурным графиком 80/60°С;
o Трубы отопления из полиэтилена Rehau;
o Теплоизоляция трубопроводов отопления Valtec, толщиной 6мм;
o Теплоноситель в системе радиаторного отопления дома – подготовленная вода, предусмотрены средства защиты от образования накипи.
Водяной теплый пол дома в г. Лосино-Петровский (проект теплого пола).
o Водяной теплый пол в доме предусмотрен на площади 110 м.кв., коллекторы теплого пола Valtec на 6 и 9 отводов;
o Предусмотрен насосно-смесительный узел для теплоснабжения водяного теплого пола дома - в составе насосной группы;
o Трубопроводы теплого пола – сшитый полиэтилен Rehau;
o Регулирование температуры теплого пола - общее, регулятором на смесительной группе и локальное - при помощи комнатных термостатов полиэтилена Rehau NEA H.
Внутренний водопровод дома в г. Лосино-Петровский (проект водоснабжения).
o Схема внутреннего водоснабжения дома – коллекторно-лучевая с рециркуляцией горячей воды через водяные полотенцесушители, выполнен расчет 18-ти точек водоснабжения и полотенцесушителей;
o Трубопроводы системы водоснабжения – из полиэтилена Rehau;
o Теплоизоляция трубопроводов Энергофлекс Супер, толщиной 9мм;
o Для летнего водопровода предусмотрен незамерзающий кран Meibes SEPP-Eis.
Внутренняя канализация (проект канализации) дома в г. Лосино-Петровский.
o Безнапорная, с напорным участком в цокольном этаже, отвод стоков от санитарно-технических приборов предусмотрен в септик;
o Произведен расчет 10-ти точек бытовой канализации;
o Канализационные трубы Синикон, раструбные, из полипропилена.






















