Выполненные проекты
Отопление дома 185 м.кв. в ТСН "Сосновый бор", проект
Объект: двухэтажный загородный дом из бетона, площадью 185 м.кв., расположенный в ТСН "Сосновый бор" Раменского района Московской области
Вариант отопления: «Комфортный»
Цена проекта отопления, канализации и водоснабжения: 48 735 руб. со скидкой 10%, проект котельной - бесплатно.
Проект котельной, отопления, водоснабжения и канализации выполнен: 25.02.2022
Состав проекта котельной, отопления, канализации и водоснабжения дома в ТСН "Сосновый бор":
1. Пояснительная записка проекта, общие данные по системам отопления, канализации и водоснабжения дома 185 м.кв. в ТСН "Сосновый бор".
2. Тепломеханическая схема котельной с размещением оборудования в отдельном помещении дома из бетона.
3. Комплект поэтажных чертежей радиаторного отопления дома в ТСН "Сосновый бор".
4. Комплект чертежей теплого пола на площади 145 м.кв.
5. Комплект чертежей водоснабжения и канализации частного дома из бетона в ТСН "Сосновый бор".
6. Типовые схемы системы отопления канализации и водоснабжения дома 185 м.кв.
7. Теплотехнический расчет отопления дома из бетона.
8. Спецификация материалов и оборудования по котельной, отоплению, канализации и водоснабжению дома в ТСН "Сосновый бор".
Объем проекта отопления, канализации и водоснабжения дома в ТСН "Сосновый бор": 44 листа.
Описание проекта отопления, котельной, канализации и водоснабжения частного дома 185 м.кв. в ТСН "Сосновый бор".
Котельная частного дома в ТСН "Сосновый бор"(проект котельной бесплатно).
o Размещена в отдельном помещении дома 185 м.кв.;
o Теплогенераторы - основной настенный газовый котел Vaillant turboTEC plus, мощностью 28 кВт, резервный - электрический котел Vaillant eloBLOCK, мощностью 12 кВт;
o Контуры теплоснабжения котельной – радиаторное отопление дома, теплый пол и горячее водоснабжение, для которого предусмотрен накопительный бойлер Vaillant uniSTOR, объемом 200 литров (подключение к коллектору);
o Расширительные баки отопления и бойлера Flamco, объемом 25 и 18 литров, соответственно;
o Дымоудаление принудительное, дымоход коаксиальный, комплект Vaillant для горизонтального прохода через кровлю, диаметр 80/125 мм;
o Распределительный коллектор - Meibes с насосными группами;
o Автоматика котельной – контроллер ZONT Climatic 1.2 со встроенным GSM-модулем.
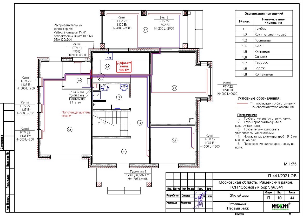
Отопление дома в ТСН "Сосновый бор" (проект отопления дома).
o Выполнен теплотехнический расчет отопления дома из бетона (утеплитель кровли - минеральная вата 200мм, стены - ЭППС 100мм) с учетом теплопотерь через ограждающие конструкции при наружной температуре -28°С для Московской области (по СП 131.13330.2012), расчетный расход тепла на отопление дома составил 21,43 кВт, удельные теплопотери 107,0 Вт/м.кв.;
o Подобраны приборы для отопления дома: стальные панельные радиаторы Kermi и стальные трубчатые радиаторы Гармония (КЗТО) с нижним подключением, в вентильном исполнении;
o Схема радиаторного отопления дома двухтрубная, коллекторно-лучевая, с принудительной циркуляцией теплоносителя и температурным графиком 80/60°С;
o Трубы отопления из металлопластика Valtec;
o Теплоизоляция трубопроводов отопления Valtec, толщиной 6мм;
o Теплоноситель в системе радиаторного отопления дома – подготовленная вода, предусмотрены средства защиты от образования накипи.
Водяной теплый пол дома в ТСН "Сосновый бор" (проект теплого пола).
o Водяной теплый пол в доме предусмотрен на площади 145 м.кв., коллекторы теплого пола Valtec на 6 и 10 отводов;
o Предусмотрен насосно-смесительный узел для теплоснабжения водяного теплого пола дома - в составе насосной группы;
o Трубопроводы теплого пола – сшитый полиэтилен Valtec;
o Регулирование температуры теплого пола - общее, регулятором на смесительной группе и локальное - по помещениям, при помощи комнатных термостатов.
Внутренний водопровод дома в ТСН "Сосновый бор" (проект водоснабжения).
o Схема внутреннего водоснабжения дома – коллекторно-лучевая с рециркуляцией горячей воды через водяные полотенцесушители, выполнен расчет 25-ти точек водоснабжения и полотенцесушителей;
o Трубопроводы системы водоснабжения – из металлопластика Valtec;
o Теплоизоляция трубопроводов Энергофлекс Супер, толщиной 9мм;
o Для летнего водопровода предусмотрен водоразборный кран со штуцером и сливом.
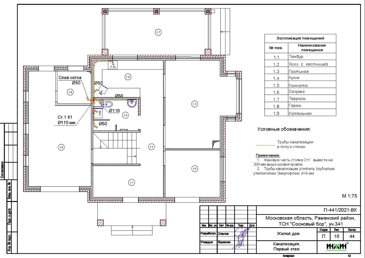
Внутренняя канализация (проект канализации) дома в ТСН "Сосновый бор".
o Безнапорная, отвод стоков от санитарно-технических приборов предусмотрен в септик;
o Произведен расчет 12-ти точек бытовой канализации;
o Канализационные трубы Синикон, раструбные, из полипропилена.






















