Выполненные проекты
Проект электрики дома площадью 247 м.кв.
Объект: двухэтажный дом из полистиролбетона, площадью 247 м.кв., расположенный в КП "Дачный-2" Щелковского района Московской области
Цена (стоимость) проекта электрики (электропроводки): 29 565 руб. со скидкой 10%, проект слаботочных кабельных линий - бесплатно.
Проект электрики выполнен: 08.04.2022
Состав проекта электрики дома в КП "Дачный-2":
1. Пояснительная записка. Общие данные по электроснабжению и освещению частного дома в КП "Дачный-2".
2. Однолинейные схемы вводного распределительного устройства и электрического распределительного щита дома 247 м.кв.
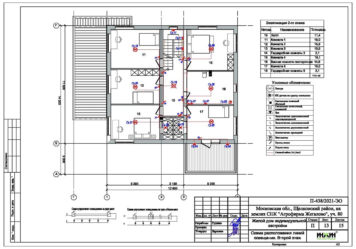
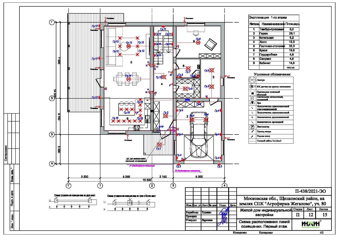
3. Чертежи электропроводки дома в КП "Дачный-2".
4. Чертежи групповых осветительных сетей дома в КП "Дачный-2".
5. Спецификация материалов и оборудования по электрике и электропроводке дома в КП "Дачный-2".
Объем проекта электрики дома 247 м.кв.: 16 листов.
Проект электрики дома площадью 247 м.кв. в КП "Дачный-2"- подробное описание.
Расчетные показатели по электроснабжению и освещению дома в КП "Дачный-2".
o Расчетная электрическая мощность дома составила 15,86 кВт, с учетом коэффициента спроса 0,5, принятого согласно СП 256.1325800.2016;
o При расчете учтено силовое оборудование: кондиционеры, газовый котел, водоочистка, скважинный насос.
Распределительные электрические щиты дома площадью 247 м.кв.
o Проектом предусмотрен распределительный электрический щит, размещенный в гараже 1 этажа;
o Автоматические выключатели, дифференциальные автоматы, рубильники и УЗО в щите – ABB, в количестве 29 шт. размещены в пристраиваемом корпусе.
Силовая кабельная сеть (электропроводка) дома в КП "Дачный-2".
o Электропроводка дома предусмотрена с использованием кабелей ВВГ нг -LS с медными жилами в ПВХ-оболочке (не поддерживает горение);
o Общая протяженность линий электроснабжения и освещения – 1350 метров, вводные кабельные линии - бронированные кабели (ВБбШв) 80 метров;
o Электропроводка предусмотрена скрытым способом, в гофрированной ПВХ-трубе;
o Запроектировано 179 точек подключения розеток и выключателей освещения в доме;
o Предусмотрены слаботочные линии локальной вычислительной сети протяженностью 150 метров.

Заказать проект электрики дома дистанционно.
Для этого дома выполнен проект отопления, водоснабжения и канализации.
По этому проекту выполнен монтаж электрики (электропроводки).



















