Выполненные проекты
Проект отопления дома 650 м.кв. с бассейном в Королёве
Объект: частный дом из пеноблоков, площадью 650 м.кв., расположенный в г. Королёв Московской области
Вариант отопления: «Комфортный»
Цена проекта отопления, канализации и водоснабжения: 143 190 руб. со скидкой 10%, проект котельной - бесплатно.
Проект котельной, отопления, водоснабжения и канализации выполнен: 27.04.2022
Состав проекта котельной, отопления, канализации и водоснабжения дома в Королёве:
1. Пояснительная записка проекта, общие данные по системам отопления, канализации и водоснабжения дома 650 м.кв. в г. Королёв.
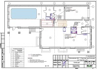
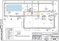
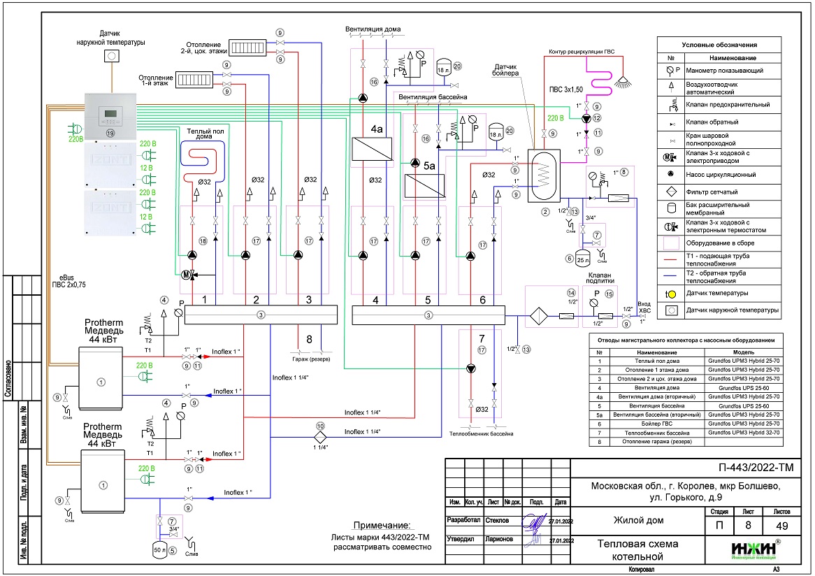
2. Тепломеханическая схема котельной с размещением оборудования в отдельном помещении дома из пеноблоков.
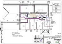
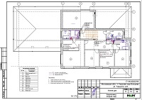
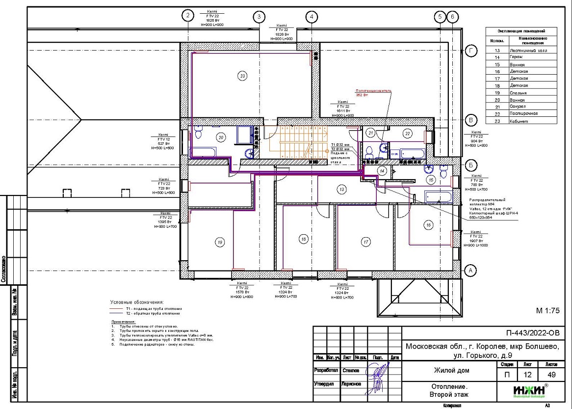
3. Комплект поэтажных чертежей радиаторного отопления дома в г. Королёв.
4. Комплект чертежей теплого пола на площади 120 м.кв.
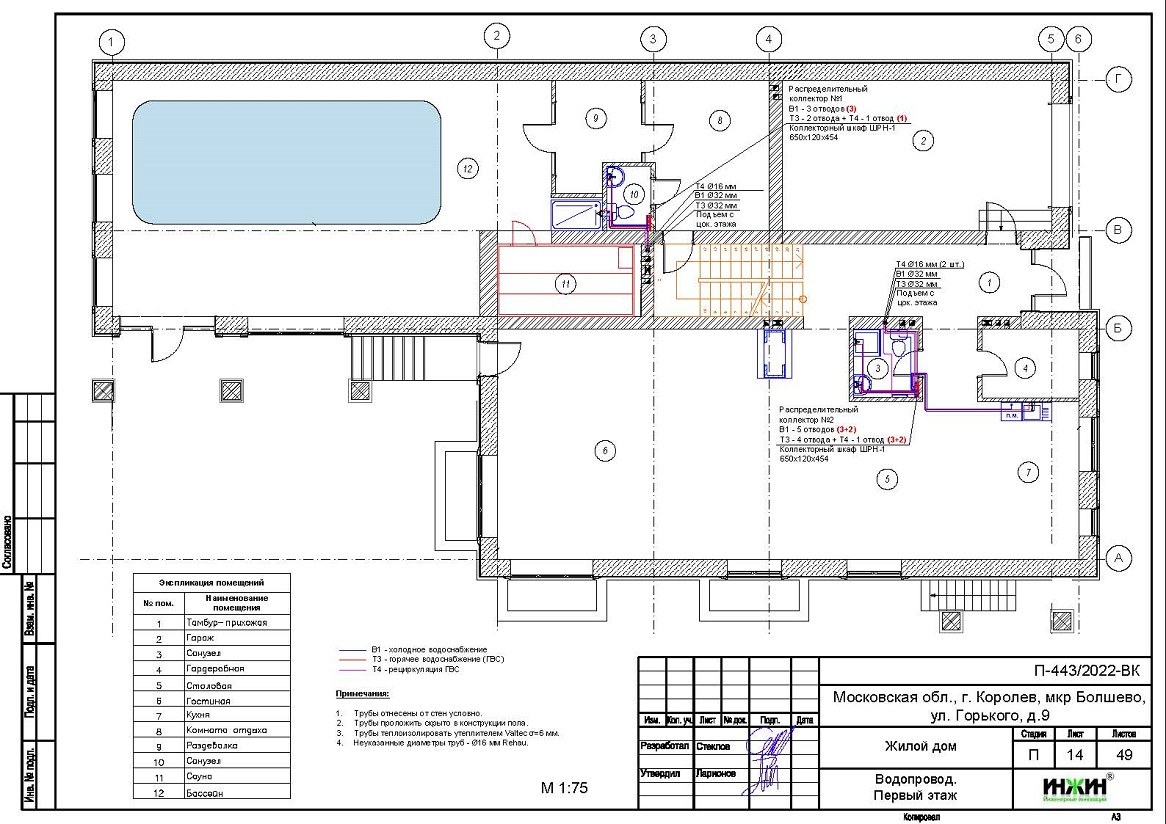
5. Комплект чертежей водоснабжения и канализации частного дома из пеноблоков в г. Королёв.
6. Типовые схемы системы отопления канализации и водоснабжения дома 650 м.кв.
7. Теплотехнический расчет отопления дома из пеноблоков.
8. Спецификация материалов и оборудования по котельной, отоплению, канализации и водоснабжению дома в г. Королёв.
Объем проекта отопления, канализации и водоснабжения дома в г. Королёв: 49 листов.
Описание проекта отопления, котельной, канализации и водоснабжения частного дома 650 м.кв. в Королёве.
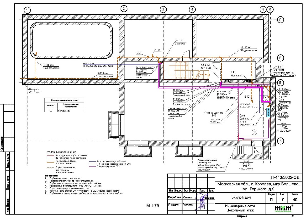
Котельная частного дома в г. Королёв(проект котельной бесплатно).
o Размещена в отдельном помещении дома 650 м.кв.;
o Теплогенератор - два напольных газовых котла Protherm Медведь 40 KLOM, мощностью 44,5 кВт каждый;
o Контуры теплоснабжения котельной – радиаторное отопление дома (2 контура), теплый пол, теплоснабжение вентиляции дома, теплоснабжение вентиляции бассейна, теплоснабжение теплообменника бассейна, отопление гаража (резерв) и горячее водоснабжение, для которого предусмотрен накопительный бойлер Protherm FE 300/6 BM, объемом 300 литров (подключение к коллектору);
o Расширительные баки отопления и бойлера Flamco, объемом 80 и 25 литров, соответственно;
o Дымоудаление естественное, дымоход выполнен на объекте;
o Распределительный коллектор Meibes, с насосно-смесительными группами;
o Автоматика котельной – контроллер ZONT Climatic 1.3 со встроенным GSM-модулем и дополнительными блоками расширения EX-77.
Отопление дома в г. Королёв (проект отопления дома).
o Выполнен теплотехнический расчет отопления дома из пеноблоков (утеплитель кровли - PIR-плиты, 200мм, плиты основания - ЭППС 150мм) с учетом теплопотерь через ограждающие конструкции при наружной температуре -28°С для Московской области (по СП 131.13330.2012), расчетный расход тепла на отопление дома составил 47,63 кВт, удельные теплопотери 73,28 Вт/м.кв.;
o Подобраны приборы для отопления дома: стальные дизайнерские радиаторы Гармония (КЗТО) и стальные панельные радиаторы Kermi с нижним подключением, в вентильном исполнении;
o Схема радиаторного отопления дома двухтрубная, коллекторно-лучевая, с принудительной циркуляцией теплоносителя и температурным графиком 80/60°С;
o Трубы отопления из сшитого полиэтилена Rehau;
o Теплоизоляция трубопроводов отопления Valtec, толщиной 6мм;
o Теплоноситель в системе радиаторного отопления дома – подготовленная вода, предусмотрены средства защиты от образования накипи.
Водяной теплый пол дома в г. Королёв (проект теплого пола).
o Водяной теплый пол в доме предусмотрен на площади 120 м.кв., 24 петли, коллекторы теплого пола Valtec на 12 отводов (2 шт.);
o Предусмотрен насосно-смесительный узел для теплоснабжения водяного теплого пола в котельной;
o Трубопроводы теплого пола – сшитый полиэтилен Rehau RAUTHERM S, основание - плиты пенополистирольные с покрытием и фиксирующими бобышками EasyFix L (Формат);
o Регулирование температуры теплого пола - общее, контуром котельной.
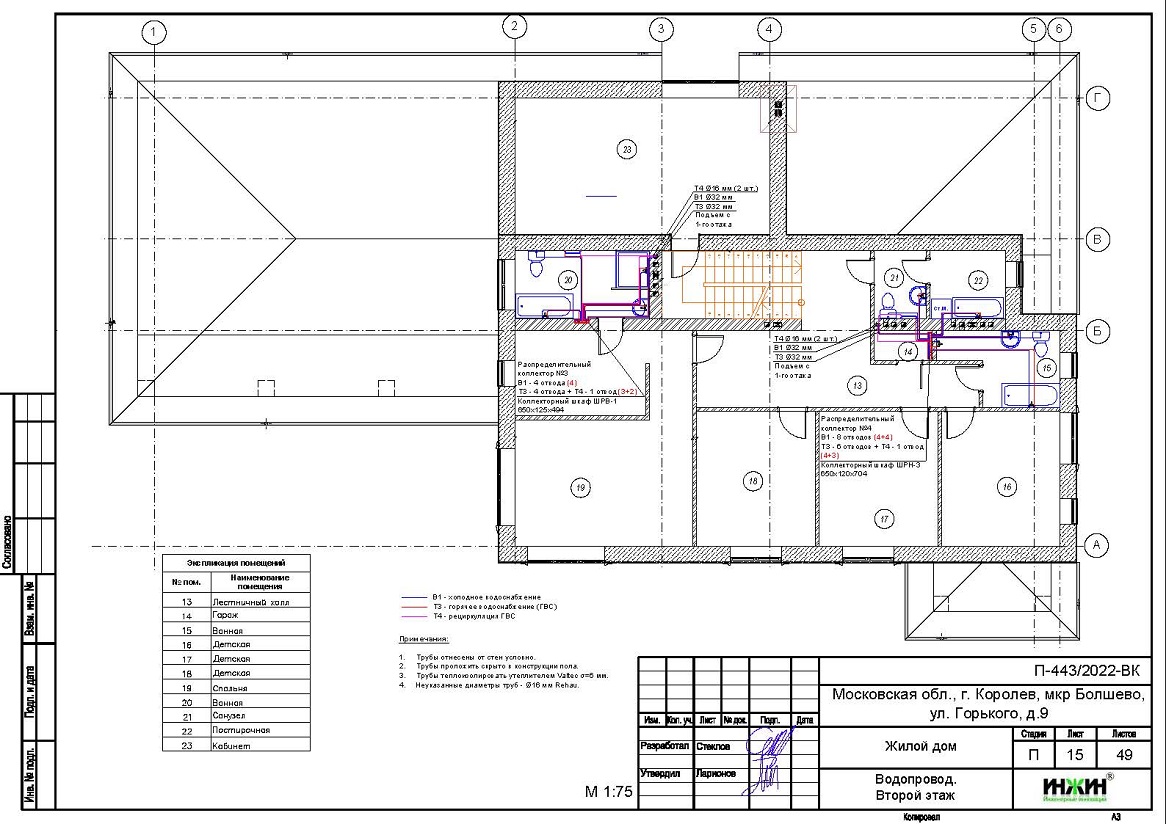
Внутренний водопровод дома в г. Королёв (проект водоснабжения).
o Схема внутреннего водоснабжения дома – коллекторно-лучевая с рециркуляцией горячей воды через проходные водорозетки, выполнен расчет 43-х точек водоснабжения и полотенцесушителей;
o Трубопроводы системы водоснабжения – из сшитого полиэтилена Rehau;
o Теплоизоляция трубопроводов Valtec, толщиной 6мм.
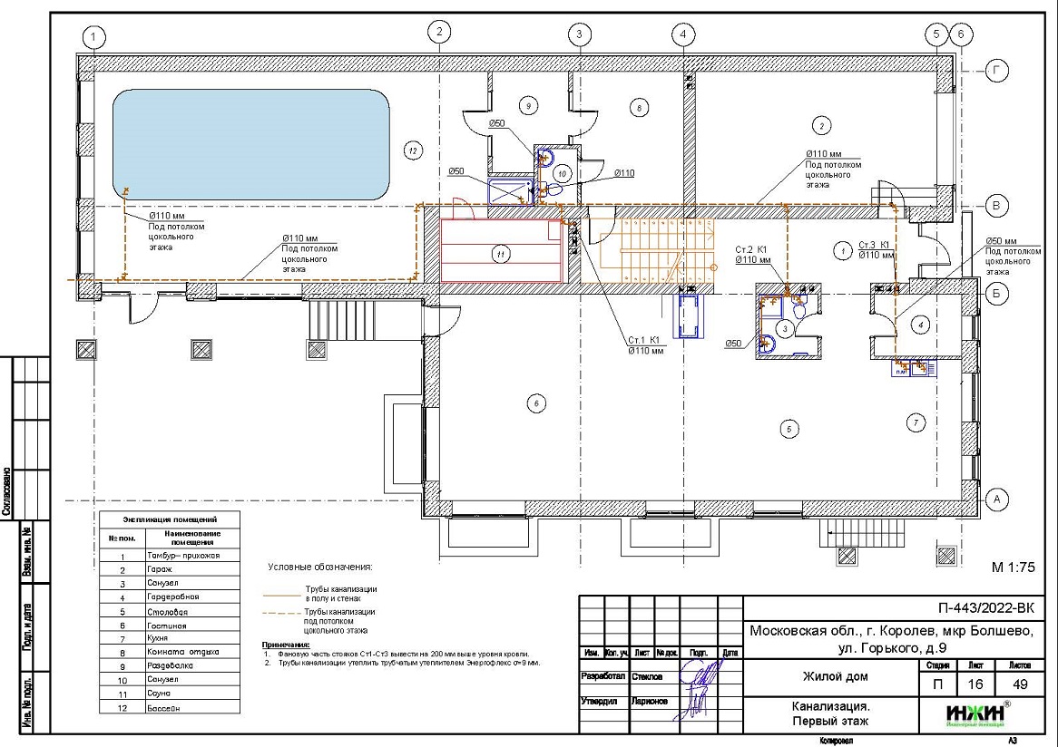
Внутренняя канализация (проект канализации) дома в г. Королёв.
o Комбинированная, безнапорная, с напорным участком в цокольном этаже, отвод стоков от санитарно-технических приборов предусмотрен в септик;
o Произведен расчет 25-и точек бытовой канализации, для напорного участка предусмотрена КНС Grundfos Sololift2 С-3;
o Канализационные трубы Синикон, раструбные, из полипропилена, утепленные трубчатым утеплителем Энергофлекс Супер, 9мм.

По этому проекту выполнен монтаж котельной дома с бассейном в Королёве.
Для этого дома в Королёве выполнен проект электрики электрики.






















