Выполненные проекты
Проект отопления таунхауса 233 м.кв. в Москве
Объект: таунхаус площадью 233 кв.м. в Новой Москве
Вариант отопления: «Комфортный»
Стоимость проекта отопления: 39 830 руб. (проект котельной – бесплатно)
Проект отопления, водоснабжения и канализации выполнен: 01.08.2013
Состав проекта отопления, водоснабжения и канализации:
1. Пояснительная записка. Общие данные по системам отопления, водоснабжения и канализации.
2. Теплотехнический расчет отопления.
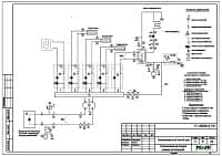
3. Тепломеханическая схема котельной с размещением оборудования.
4. Комплект чертежей радиаторного отопления таунхауса.
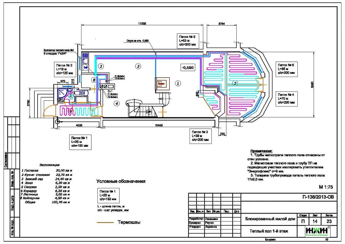
5. Комплект чертежей водяного теплого пола.
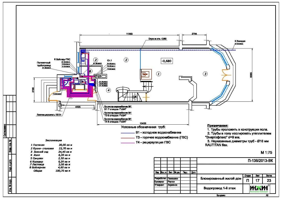
6. Комплект чертежей внутреннего водопровода и канализации таунхауса.
7. Схема системы канализации (аксонометрия).
8. Спецификация материалов и оборудования.
Объем проекта отопления, водоснабжения и канализации: 44 листа.
Основные проектные решения, в соответствие с заданием Заказчика.
Котельная (проект котельной бесплатно).
o На базе настенного газового конденсационного котла Vaillant ecoTEC plus VU OE 466/4 мощностью 44,1 кВт;
o Контуры котельной – 5 шт.: отопление дома (три контура, по одному на этаж), водяной теплый пол и горячее водоснабжение (бойлер);
o Приготовление горячей воды при помощи бойлера Reflex SF100, объемом 100 литров;
o Расширительные баки отопления и водоснабжения Reflex;
o Насосное для отопления и теплого пола Grundfos;
o Трубы дымоходные Vaillant, пластиковые, коаксиальные, в строительном канале с выводом на кровлю;
o Распределительная гребенка с насосно-смесительными узлами Meibes;
o Автоматика котельной – основной блок Vaillant calorMATIC 630/3, задатчик-регулятор температуры в помещении Vaillant VR 90/3.
Автоматизация (вариант «Комфортный»):
o Автоматическое регулирование отопления по наружной температуре (погодное регулирование) и температуре в помещении;
o Автоматическое поддержание заданной температуры в поэтажных контурах отопления, теплого пола и горячего водоснабжения.
Отопление радиаторное (проект отопления).
o Отопление дома радиаторное, использованы панельные радиаторы Kermi с нижней подводкой, а также трубчатых радиаторов Zehnder с нижним подключением (тип 443);
o Схема радиаторного отопления двухтрубная, коллекторная, с принудительной циркуляцией теплоносителя;
o Температурный график отопления 80/60°С;
o Трубопроводы отопления – сшитый полиэтилен Rehau RAUTITAN flex.
Система теплого пола.
Водяной теплый пол спроектирован на площади 63 м.кв.
Теплоснабжение теплого пола запроектировано отдельным контуром котельной. Трубопроводы теплого пола - сшитый полиэтилен Rehau RAUTHERM S.
Основание теплого пола – маты из ламинированного пенополистирола «Формат FT40/20L».
Регулирование температуры теплого пола – общее, контуром котельной.
Водяные полотенцесушители.
Источником теплоснабжения полотенцесушителей принят контур рециркуляции бытовой горячей воды. Модели полотенцесушителей в проекте не указывались, в тепловом расчете учитывалась теплоотдача 150 Вт от каждого полотенцесушителя.
Внутренний водопровод (проект водоснабжения).
o Схема внутреннего водоснабжения – коллекторная, с рециркуляцией горячей воды у потребителей;
o Трубопроводы системы водоснабжения – сшитый полиэтилен Rehau RAUTITAN flex.
Внутренняя канализация.
o Предусмотрен безнапорный отвод стоков от санитарно-технических приборов;
o Трубопроводы канализации – полипропилен Синикон.



















