Выполненные проекты
Проект отопления дома в КП "Лесная Подкова"
Объект: двухэтажный частный дом из пенобетона, площадью 170 м.кв., расположенный в КП "Лесная Подкова" Пушкинского района Московской области
Вариант отопления: «Комфортный»
Цена проекта отопления: 18 630 руб. со скидкой 10%, проект котельной - бесплатно.
Проект котельной и отопления выполнен: 22.09.2022
Состав проекта котельной, отопления и теплого пола дома в КП "Лесная Подкова":
1. Пояснительная записка проекта, общие данные по системе отопления дома 170 м.кв. в КП "Лесная Подкова".
2. Тепломеханическая схема котельной с размещением оборудования в отдельном помещении дома из пенобетона.
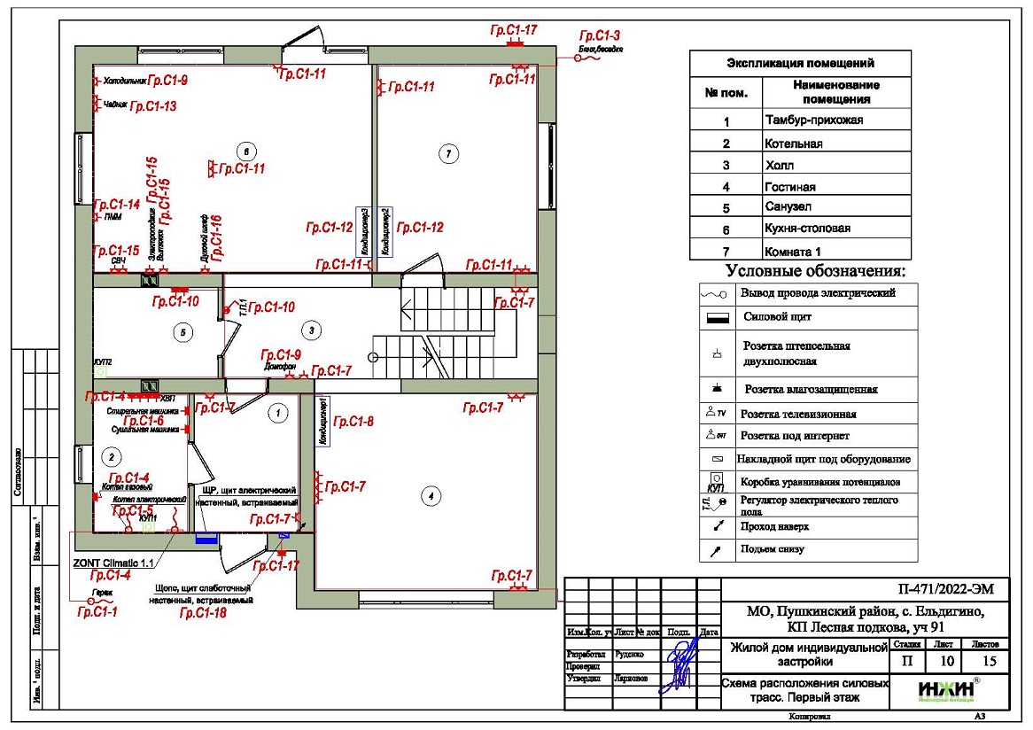
3. Комплект поэтажных чертежей радиаторного отопления дома в КП "Лесная Подкова".
4. Комплект чертежей теплого пола на площади 25 м.кв.
5. Типовые схемы системы отопления дома 170 м.кв.
6. Теплотехнический расчет отопления дома из пенобетона.
7. Спецификация материалов и оборудования по котельной, отоплению и водоснабжению дома в КП "Лесная Подкова".
Объем проекта отопления дома в КП "Лесная Подкова": 32 листа.
Описание проекта отопления, котельной и теплого пола частного дома 170 м.кв. в КП "Лесная Подкова".
Котельная частного дома в КП "Лесная Подкова"(проект котельной бесплатно).
o Размещена в отдельном помещении дома 170 м.кв.;
o Теплогенераторы - основной настенный газовый котел Лемакс Prime-V24 HO, мощностью 24 кВт, резервный - электрический котел Protherm Скат, мощностью 12 кВт;
o Контуры теплоснабжения котельной – радиаторное отопление дома, теплый пол (смесительный узел на контуре отопления) и горячее водоснабжение, для которого предусмотрен накопительный бойлер STOUT, объемом 150 литров (подключение к коллектору);
o Расширительные баки отопления и бойлера Flamco, объемом 18 литров каждый;
o Дымоудаление принудительное, дымоход коаксиальный Лемакс, диаметр 60/100 мм, размещение - через стену;
o Распределительный коллектор - STOUT с насосными группами;
o Автоматика котельной – контроллер ZONT Climatic 1.1 со встроенным GSM-модулем.
Отопление дома в КП "Лесная Подкова" (проект отопления дома).
o Выполнен теплотехнический расчет отопления дома из пенобетона (утеплитель кровли - базальтовая вата 150мм) с учетом теплопотерь через ограждающие конструкции при наружной температуре -28°С для Московской области (по СП 131.13330.2012), расчетный расход тепла на отопление дома составил 14,99 кВт, удельные теплопотери 86,9 Вт/м.кв.;
o Подобраны приборы для отопления дома: стальные панельные радиаторы Kermi с нижним подключением, в вентильном исполнении;
o Схема радиаторного отопления дома двухтрубная, коллекторно-лучевая, с принудительной циркуляцией теплоносителя и температурным графиком 80/60°С;
o Трубы отопления из металлопластика Valtec;
o Теплоизоляция трубопроводов отопления Valtec, толщиной 6мм;
o Теплоноситель в системе радиаторного отопления дома – подготовленная вода, предусмотрены средства защиты от образования накипи.
Водяной теплый пол дома в КП "Лесная Подкова" (проект теплого пола).
o Водяной теплый пол в доме предусмотрен на площади 25 м.кв., коллектор теплого пола Valtec на 3 отвода;
o Предусмотрен насосно-смесительный узел для теплоснабжения водяного теплого пола дома - на контуре отопления;
o Трубопроводы теплого пола – сшитый полиэтилен Valtec;
o Регулирование температуры теплого пола - общее, регулятором на смесительной группе.
Заказать в нашей компании проект отопления, водоснабжения и канализации загородного дома дистанционно со скидкой.

Для этого дома в КП "Лесная Подкова" выполнен проект электрики.
По этому проекту выполнен монтаж котельной, теплого пола и отопления.



















