Выполненные проекты
Проект отопления дома в Ростове-на-Дону
Объект: одноэтажный частный дом из кирпича, площадью 120 м.кв., расположенный в Ростове-на-Дону
Цена проекта отопления: 15 390 руб. со скидкой 10%, проект котельной - бесплатно.
Проект котельной и отопления выполнен: 08.08.2023
Состав проекта котельной, отопления и теплого пола дома в Ростове-на-Дону:
1. Пояснительная записка проекта, общие данные по системе отопления дома 120 м.кв. в Ростове-на-Дону.
2. Тепломеханическая схема котельной с размещением оборудования в отдельном помещении дома из кирпича.
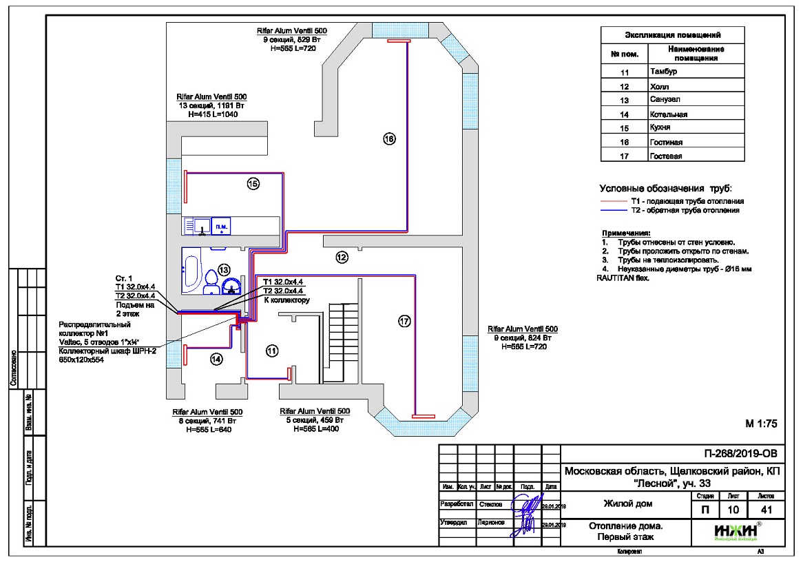
3. Комплект поэтажных чертежей радиаторного отопления и теплого пола дома в Ростове-на-Дону.
4. Теплотехнический расчет отопления дома из кирпича.
5. Спецификация материалов и оборудования по котельной и отоплению дома в Ростове-на-Дону.
Объем проекта отопления дома в Ростове-на-Дону: 27 листов.
Описание проекта отопления и котельной частного дома 120 м.кв. в Ростове-на-Дону.
Котельная частного дома в Ростове-на-Дону(проект котельной бесплатно).
o Размещена в отдельном помещении дома 120 м.кв.;
o Теплогенератор - настенный газовый котел Berettaмощностью 24 кВт (в наличии);
o Контуры теплоснабжения котельной – радиаторное отопление дома и теплый пол (на контуре отопления), горячее водоснабжение предусмотрено вторым контуром котла;
o Расширительный бак отопления Flamco, объемом 18 литров;
o Дымоудаление принудительное, дымоход коаксиальный, в исполнении "через стену";
o Распределительный коллектор в котельной не предусмотрен;
o Автоматика котельной встроена в котел.
Отопление дома в Ростове-на-Дону (проект отопления дома).
o Выполнен теплотехнический расчет отопления дома из кирпича (утеплитель кровли - каменная вата 150) с учетом теплопотерь через ограждающие конструкции при наружной температуре -22°С для Ростовской области (по СП 131.13330.2020), расчетный расход тепла на отопление дома составил 17,01 кВт, удельные теплопотери 151,6 Вт/м.кв.;
o Подобраны приборы для отопления дома: стальные панельные радиаторы Kermiс нижним подключением и алюминиевые секционные радиаторы Radena (в наличии);
o Схема радиаторного отопления дома двухтрубная, с принудительной циркуляцией теплоносителя и температурным графиком 80/60°С;
o Трубы отопления из полипропилена Valtec;
o Теплоизоляция трубопроводов отопления Valtec, толщиной 6мм;
o Теплоноситель в системе радиаторного отопления дома – подготовленная вода.
Водяной теплый пол дома в Ростове-на-Дону (проект теплого пола).
o Водяной теплый пол в доме предусмотрен на площади 100 м.кв., 9 петель, коллектор теплого пола Valtec на 9 отводов;
o Предусмотрен насосно-смесительный узел для теплоснабжения водяного теплого пола в котельной (на контуре отопления);
o Трубопроводы теплого пола – сшитый полиэтилен Valtec, основание - плиты пенополистирольные с покрытием и фиксирующими бобышками EasyFix L (Формат);
o Регулирование температуры теплого пола - общее, на смесительном узле.



















