Выполненные проекты
Электрика дома с бассейном (650 м.кв.), проект
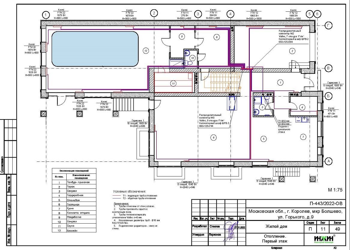
Объект: частный дом с бассейном, площадью 650 м.кв., расположенный в г. Королёв Московской области
Цена (стоимость) проекта электрики (электропроводки): 77 805 руб. со скидкой 10%, проект слаботочных кабельных линий - бесплатно.
Проект электрики выполнен: 14.12.2023
Состав проекта электрики дома в Королёве:
1. Пояснительная записка. Общие данные по электроснабжению и освещению частного дома в Королёве.
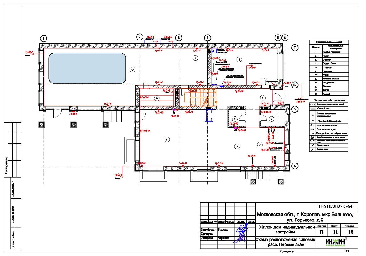
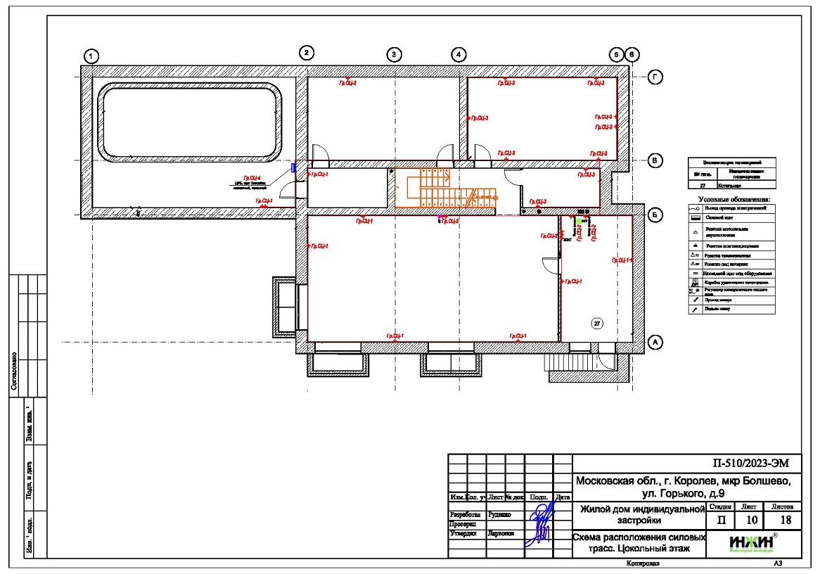
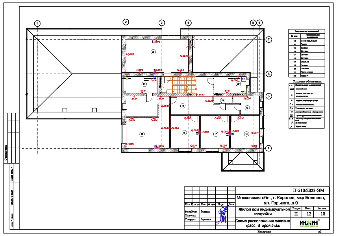
2. Однолинейные схемы вводного распределительного устройства и электрического распределительного щита дома 650 м.кв.
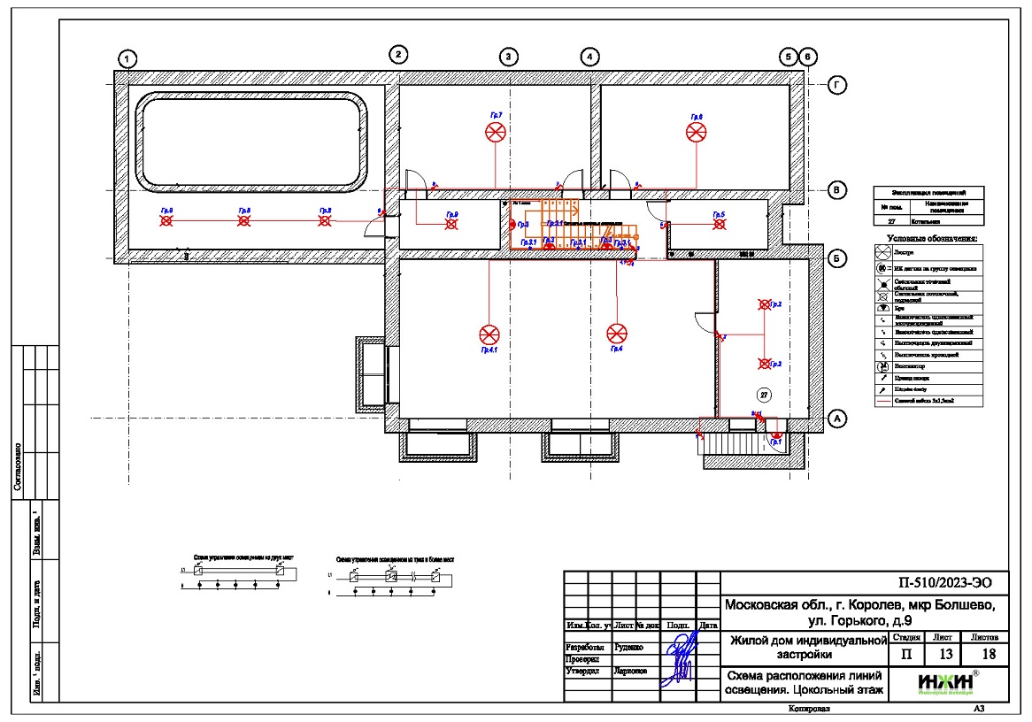
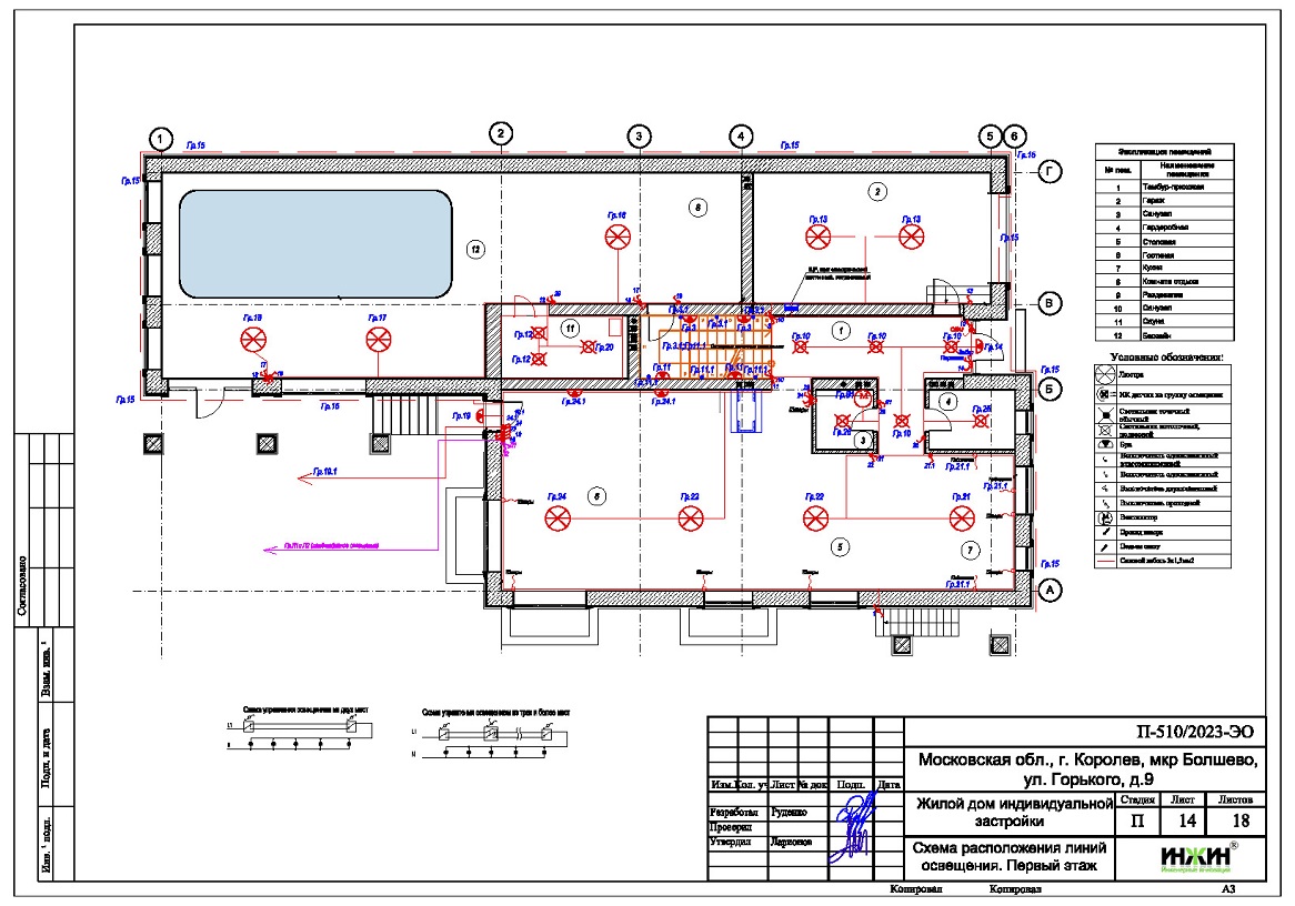
3. Чертежи электропроводки дома в Королёве.
4. Чертежи групповых осветительных сетей дома в Королёве.
5. Спецификация материалов и оборудования по электрике и электропроводке дома в Королёве.
Объем проекта электрики дома 650 м.кв.: 18 листов.
Проект электрики дома площадью 650 м.кв. в Королёве- подробное описание.
Расчетные показатели по электроснабжению и освещению дома в Королёве.
o Расчетная электрическая мощность дома составила 19,82 кВт, с учетом коэффициента спроса 0,55, принятого согласно СП 256.1325800.2016;
o При расчете учтено силовое оборудование: вентустановка, газовые котлы, оборудование бассейна, кондиционеры, электроплита.
Распределительные электрические щиты дома площадью 650 м.кв.
o Проектом предусмотрен один распределительный электрический щит, расположенный в помещении гаража;
o Автоматические выключатели, дифференциальные автоматы, рубильники и УЗО в щитах – ABB, в количестве 27 шт. размещены в пристраиваемом корпусе.
Силовая кабельная сеть (электропроводка) дома в Королёве.
o Электропроводка дома предусмотрена с использованием кабелей ВВГ нг -LS с медными жилами в ПВХ-оболочке (не поддерживает горение);
o Общая протяженность линий электроснабжения и освещения – 1 860 метров, вводная кабельная линия - бронированный кабель 120 метров;
o Электропроводка предусмотрена скрытым способом, в конструкции пола и стен помещений;
o Запроектировано 175 точек подключения розеток и выключателей освещения в доме;
o Предусмотрены слаботочные линии телевидения и ЛВС, общая протяженность - 650 метров.
Система резервного электропитания - с использованием инвертора CyberPower CPS 7500 PRO с АКБ.
Запроектировано применения технологии удобства - дистанционного открывания въездных ворот, калитки и включения освещения входной группы при помощи одного радиобрелка.
Заказать проект электрики частного дома дистанционно.
Для этого дома в Королёве выполнен проект отопления, водоснабжения и канализации.



















