Выполненные проекты
Проект отопления дома 230 м.кв в пос. Лапино
Объект: частный дом из газобетона, общей площадью 230 м.кв., расположенный в пос. Лапино Московской области
Вариант отопления: «Комфортный+»
Цена проекта отопления и водоснабжения: 39 483 руб. со скидкой 10%, проект котельной - бесплатно.
Проект котельной, отопления и водоснабжения выполнен: 10.06.2024
Состав проекта котельной, отопления и водоснабжения дома в пос. Лапино:
1. Пояснительная записка проекта, общие данные по системам отопления и водоснабжения дома 230 м.кв. в пос. Лапино.
2. Тепломеханическая схема котельной с размещением оборудования в отдельном помещении дома из газобетона.
3. Комплект поэтажных чертежей радиаторного отопления дома в пос. Лапино.
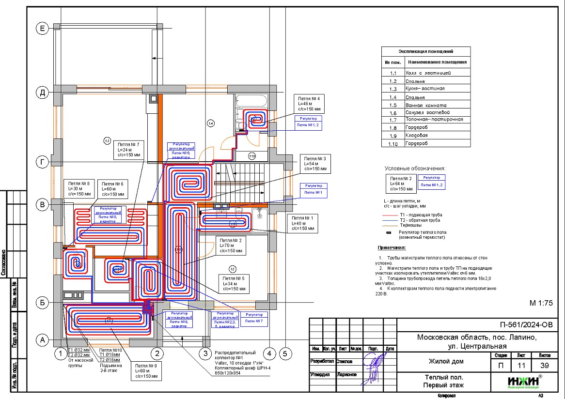
4. Комплект чертежей теплого пола на площади 74 м.кв.
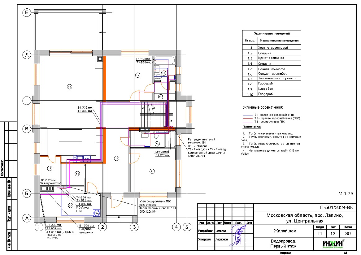
5. Комплект чертежей водоснабжения и канализации частного дома из газобетона в пос. Лапино.
6. Типовые схемы системы отопления канализации и водоснабжения дома 230 м.кв.
7. Теплотехнический расчет отопления дома из газобетона.
8. Спецификация материалов и оборудования по котельной, отоплению и водоснабжению дома в пос. Лапино.
Объем проекта отопления и водоснабжения дома в пос. Лапино: 39 листов.
Описание проекта отопления, котельной и водоснабжения частного дома 230 м.кв. в пос. Лапино.
Котельная частного дома в пос. Лапино(проект котельной бесплатно).
o Размещена в отдельном помещении первого этажа дома 230 м.кв.;
o Теплогенераторы - каскад из двух настенных газовых котлов ITALTHERM CITY CLASS 35 FR, мощностью 35 кВт каждый (в наличии);
o Контуры теплоснабжения котельной – радиаторное отопление дома (отдельно для 1 и 2 этажа), теплый пол дома, теплоснабжение вентиляции, обогрев наружных поверхностей и горячее водоснабжение, для которого предусмотрен накопительный бойлер STOUT, объемом 200 литров;
o Расширительные баки отопления и бойлера Flamco, объемом 35 и 18 литров, соответственно;
o Дымоудаление принудительное, дымоход коаксиальный, комплект для горизонтального прохода через стену (отдельно для каждого котла), диаметр 60/100 мм;
o Распределительный коллектор - STOUT с насосными группами и встроенным гидравлическим разделителем;
o Автоматика котельной – контроллер ZONT Climatic 1.3 со встроенным GSM-модулем и блоком расширения ЕХ-77.
Отопление дома в пос. Лапино (проект отопления дома).
o Выполнен теплотехнический расчет отопления дома (утеплитель кровли и стен дома - полистиролбетон 200мм и 100мм, соответственно) с учетом теплопотерь через ограждающие конструкции при наружной температуре -26°С для Москвы (по СП 131.13330.2020), расчетный расход тепла на отопление дома составил 27,4 кВт, удельные теплопотери 122,2 Вт/м.кв.;
o Подобраны приборы для отопления дома: стальные панельные радиаторы Kermiс нижним подключением и трубчатые дизайн-радиаторы GUARDO RETTA;
o Схема радиаторного отопления основного и гостевого дома двухтрубная, коллекторно-лучевая, с принудительной циркуляцией теплоносителя и температурным графиком 80/60°С;
o Трубы отопления из сшитого полиэтилена Valtec;
o Теплоизоляция трубопроводов отопления Valtec, толщиной 6мм;
o Теплоноситель в системе радиаторного отопления дома – вода, предусмотрены средства защиты от накипи.
Водяной теплый пол дома в пос. Лапино (проект теплого пола).
o Водяной теплый пол в доме предусмотрен на площади 74 м.кв., коллектор теплого пола Valtec на 10 отводов, всего 10 петель на 1-м этаже;
o Предусмотрен насосно-смесительный узел для теплоснабжения водяного теплого пола дома (на коллекторе котельной);
o Трубопроводы теплого пола из сшитого полиэтилена Valtec;
o Регулирование температуры теплого пола - общее, регулятором на смесительной группе.
Внутренний водопровод дома в пос. Лапино(проект водоснабжения).
o Схема внутреннего водоснабжения дома – коллекторно-лучевая с рециркуляцией горячей воды через водяные полотенцесушители, выполнен расчет 25-и точек водоснабжения и полотенцесушителей;
o Трубопроводы системы водоснабжения – из сшитого полиэтилена Valtec;
o Теплоизоляция трубопроводов Valtec, толщиной 6мм.



















