Выполненные проекты
Проект отопления дома 573 м.кв. с отдельным гаражом
Объект: частный дом из блоков Porotherm 44, с гаражом (отдельное строение), общей площадью 573 м.кв., расположенный в дер. Захарково Московской области
Вариант отопления: «Комфортный+»
Цена проекта отопления, канализации и водоснабжения: 115 818 руб. со скидкой 10%, проект котельной - бесплатно.
Проект котельной, отопления, водоснабжения и канализации выполнен: 27.12.2024
Состав проекта котельной, отопления, канализации и водоснабжения дома в дер. Захарково:
1. Пояснительная записка проекта, общие данные по системам отопления, канализации и водоснабжения дома 573 м.кв. в дер. Захарково.
2. Тепломеханическая схема котельной с размещением оборудования в отдельном помещении дома (и гаража) из блоков Porotherm 44.
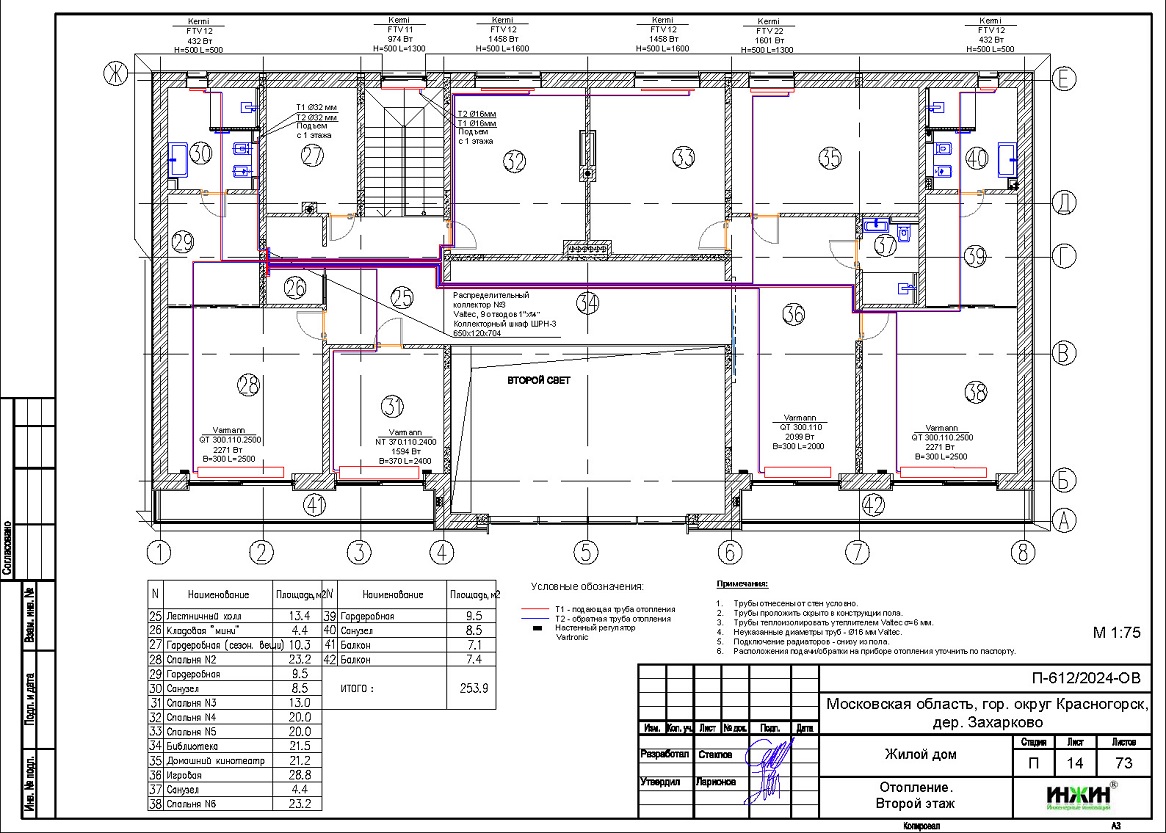
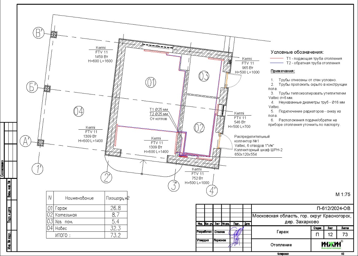
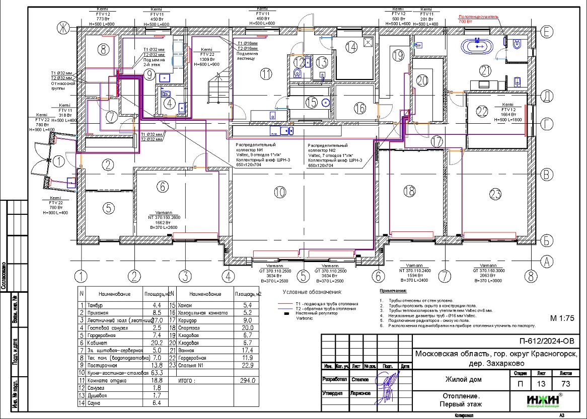
3. Комплект поэтажных чертежей радиаторного отопления дома и гаража в дер. Захарково.
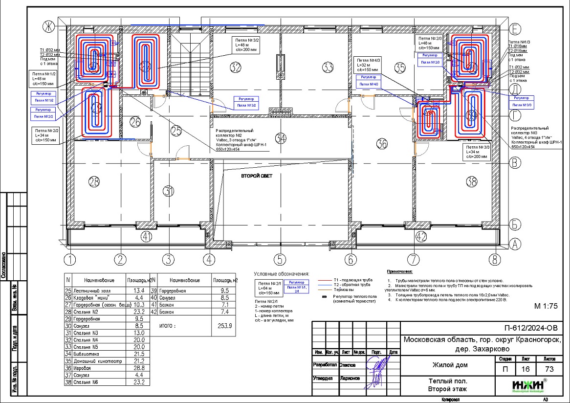
4. Комплект чертежей теплого пола на площади 90 м.кв.
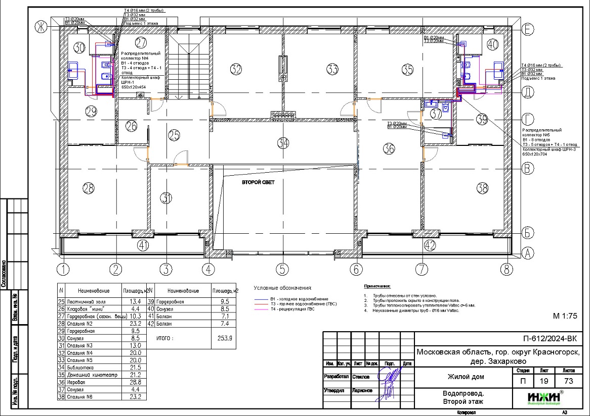
5. Комплект чертежей водоснабжения и канализации частного дома из блоков Porotherm 44 в дер. Захарково.
6. Типовые схемы системы отопления канализации и водоснабжения дома 573 м.кв.
7. Теплотехнический расчет отопления дома из блоков Porotherm 44.
8. Спецификация материалов и оборудования по котельной, отоплению, канализации и водоснабжению дома в дер. Захарково.
Объем проекта отопления, канализации и водоснабжения дома в дер. Захарково: 73 листа.
Описание проекта отопления, котельной, канализации и водоснабжения частного дома 573 м.кв. в дер. Захарково
Котельная частного дома в дер. Захарково (проект котельной бесплатно).
o Размещена в отдельном помещении первого этажа дома 573 м.кв.;
o Теплогенераторы - настенные газовые котлы Vaillant turboTEC plus, 2 шт., мощностью 36 кВт каждый;
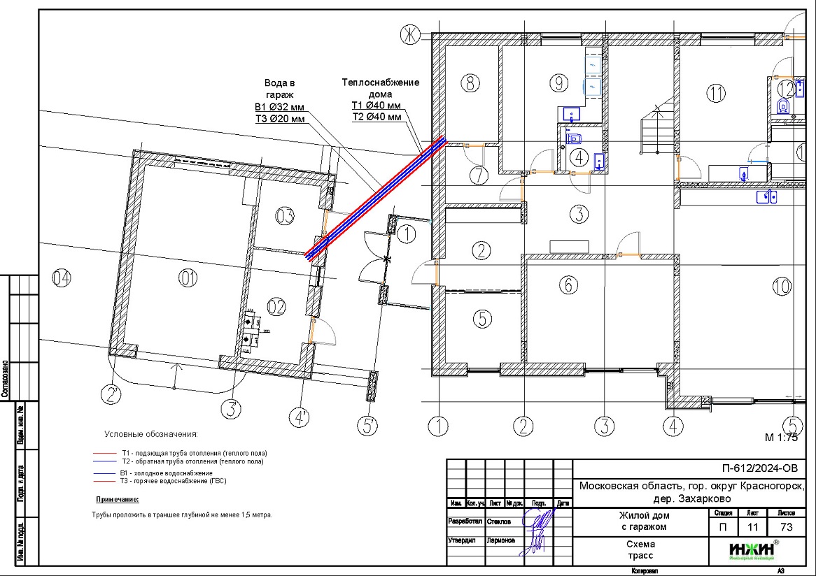
o Контуры теплоснабжения котельной – радиаторное отопление дома (2 контура, по одному на этаж), отопление гаража, теплый пол, теплоснабжение хаммама и горячее водоснабжение, для которого предусмотрен накопительный бойлер S-TANK, объемом 300 литров (подключение к коллектору);
o Расширительные баки отопления и бойлера Flamco, объемом 80 и 25 литров, соответственно;
o Дымоудаление принудительное, дымоход коаксиальный, диаметром 60/100 мм, через кровлю здания;
o Распределительный коллектор - STOUT с насосными группами;
o Автоматика котельной – контроллер ZONT Climatic 1.3 со встроенным GSM-модулем.
Отопление дома в дер. Захарково (проект отопления дома).
o Выполнен теплотехнический расчет отопления комплекса строений (утеплитель кровли - XPS CARBON PROF 120мм) с учетом теплопотерь через ограждающие конструкции при наружной температуре -26°С для Московской области (по СП 131.13330.2020), расчетный расход тепла на отопление дома составил 62,24 кВт, удельные теплопотери 152,2 Вт/м.кв.;
o Подобраны приборы для отопления дома: стальные панельные радиаторы Kermi с нижним подключением, а также встроенные в пол конвекторы Varmann c естественной и принудительной конвекцией;
o Схема радиаторного отопления дома двухтрубная, коллекторно-лучевая, с принудительной циркуляцией теплоносителя и температурным графиком 80/60°С;
o Трубы отопления из сшитого полиэтилена Valtec;
o Теплоизоляция трубопроводов отопления Valtec, толщиной 6мм;
o Теплоноситель в системе радиаторного отопления дома – подготовленная вода.
Водяной теплый пол дома в дер. Захарково (проект теплого пола).
o Водяной теплый пол в доме предусмотрен на площади 90 м.кв., коллекторы теплого пола Valtec на 3, 4 и 7 отводов (всего 14 петель);
o Предусмотрен насосно-смесительный узел для теплоснабжения водяного теплого пола дома;
o Трубопроводы теплого пола – сшитый полиэтилен Valtec;
o Регулирование температуры теплого пола - общее, регулятором на смесительной группе и локальное, по помещениям, при помощи электронных комнатных термостатов Valtec с Wi-Fi (обзор которых публиковали на нашем сайте в разделе новинок).
Внутренний водопровод дома в дер. Захарково (проект водоснабжения).
o Схема внутреннего водоснабжения дома – коллекторно-лучевая с рециркуляцией горячей воды через водяные полотенцесушители и коллекторы, выполнен расчет 56-и точек водоснабжения и полотенцесушителей;
o Трубопроводы системы водоснабжения – из сшитого полиэтилена Valtec;
o Теплоизоляция трубопроводов Valtec, толщиной 6мм;
o Для летнего водопровода предусмотрен незамерзающий кран Arrowhead.
Внутренняя канализация (проект канализации) дома в дер. Захарково.
o Безнапорная, отвод стоков от санитарно-технических приборов предусмотрен в септик;
o Произведен расчет 33-х точек бытовой канализации;
o Канализационные трубы Синикон, раструбные.

























