Выполненные проекты
Проект отопления дома в СНТ «Красная Горка»
Объект: частный одноэтажный дом, общей площадью 220 м.кв., расположенный в СНТ «Красная Горка» Московской области
Вариант отопления:«Комфортный»
Цена проекта отопления: 45 162 руб. со скидкой 10%, проект котельной - бесплатно.
Проект котельной и отопления выполнен: 12.08.2025
Состав проекта котельной, отопления, водоснабжения, канализации и теплого пола дома в СНТ «Красная Горка».
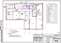
1. Пояснительная записка проекта, общие данные по системе отопления дома 220 м.кв. в СНТ «Красная Горка».
2. Тепломеханическая схема котельной с размещением оборудования в отдельном помещении газобетонногодома.
3. Комплект поэтажных чертежей радиаторного отопления дома в СНТ «Красная Горка».
4. Комплект чертежей теплого пола на площади 40 м.кв.
5. Комплект чертежей водоснабжения и канализации частного дома в СНТ «Красная Горка».
6. Типовые схемы системы отопления канализации и водоснабжения дома 220 м.кв.
7. Теплотехнический расчет отопления газобетонного дома.
8. Спецификация материалов и оборудования по котельной, отоплению, канализации и водоснабжению дома в СНТ «Красная Горка».
Объем проекта отопления дома в СНТ «Красная Горка»: 40 листов.
Описание проекта отопления, водоснабжения, канализации и котельной частного дома 220 м.кв. в СНТ «Красная Горка».
Котельная частного дома в СНТ «Красная Горка»(проект котельной бесплатно).
o Размещена в отдельном помещении дома 220 м.кв.;
o Теплогенератор - настенный газовый котел BAXI LUNA 3мощностью 31 кВт;
o Контуры теплоснабжения котельной – радиаторное отопление дома, теплый пол, отопление бани, полотенцесушители и горячее водоснабжение, для которого предусмотрен накопительный бойлер STOUT, объемом 200 литров;
o Расширительные баки отопления и бойлера Flamco, объемом 35 и 18 литров, соответственно;
o Дымоход коаксиальны, через кровлю здания;
o Распределительный коллектор в котельной - STOUT, с насосными группами и отдельной гидравлической стрелкой;
o Автоматика котельной - регулятор ZONT Climatic 1.3 со встроенным GSM-модулем для удаленного управления при помощи мобильного приложения.
Отопление дома в СНТ «Красная Горка» (проект отопления дома).
o Выполнен теплотехнический расчет отопления каркасного дома (утеплитель кровли - минвата 150 мм) с учетом теплопотерь через ограждающие конструкции при наружной температуре -26°С для Московскойобласти (по СП 131.13330.2012), расчетный расход тепла на отопление дома составил 24,12 кВт, удельные теплопотери 115,2 Вт/м.кв.;
o Подобраны приборы для отопления дома: стальные панельные радиаторы Kermi с нижним подключением, а также встроенные в пол конвекторы Varmann c принудительной конвекцией;
o Схема радиаторного отопления дома коллекторно-лучевая, с принудительной циркуляцией теплоносителя и температурным графиком 80/60°С;
o Трубы отопления из сшитого полиэтилена Valtec;
o Теплоизоляция трубопроводов отопления Valtec, толщиной 6мм;
o Теплоноситель в системе радиаторного отопления дома – подготовленная вода.
Водяной теплый пол дома в СНТ «Красная Горка»(проект теплого пола).
o Водяной теплый пол в доме предусмотрен на площади 40 м.кв., 9 петель, коллектор теплого пола Valtec на 9 отводов;
o Предусмотрен насосно-смесительный узел для теплоснабжения водяного теплого пола (отдельный контур котельной);
o Трубопроводы теплого пола – сшитый полиэтилен Valtec, основание - плиты пенополистирольные с покрытием и фиксирующими бобышками EasyFix L (Формат);
o Регулирование температуры теплого пола - общее, на смесительной группе и локальное, по помещениям, при помощи электронных комнатных термостатов Valtec с Wi-Fi (обзор которых публиковали на нашем сайте в разделе новинок),
Внутренний водопровод дома в СНТ «Красная Горка» (проект водоснабжения).
o Схема внутреннего водоснабжения дома – коллекторно-лучевая с рециркуляцией горячей воды через , выполнен расчет 20-ти точек водоснабжения;
o Трубопроводы системы водоснабжения – из сшитого полиэтилена Valtec;
o Теплоизоляция трубопроводов Valtec, толщиной 6мм.
Внутренняя канализация (проект канализации) дома в СНТ «Красная Горка».
o Безнапорная, отвод стоков от санитарно-технических приборов предусмотрен в септик;
o Произведен расчет 14-ти точек бытовой канализации;
o Канализационные трубы Синикон, раструбные, из полипропилена.



















