Выполненные проекты
Проект отопления банного комплекса в Первоуральске
Объект: частная баня из блоков Теплит, общей площадью 148 м.кв., расположенная в г. Первоуральск Свердловской области
Вариант отопления: «Комфортный»
Цена проекта отопления, канализации и водоснабжения: 34 541 руб. со скидкой 10%, проект котельной - бесплатно.
Проект котельной, отопления, водоснабжения и канализации выполнен: 30.06.2025
Состав проекта котельной, отопления, канализации и водоснабжения бани в г. Первоуральск Свердловской области:
1. Пояснительная записка проекта, общие данные по системам отопления, канализации и водоснабжения бани 148 м.кв. в г. Первоуральск Свердловской области.
2. Тепломеханическая схема котельной с размещением оборудования в отдельном помещении основного дома.
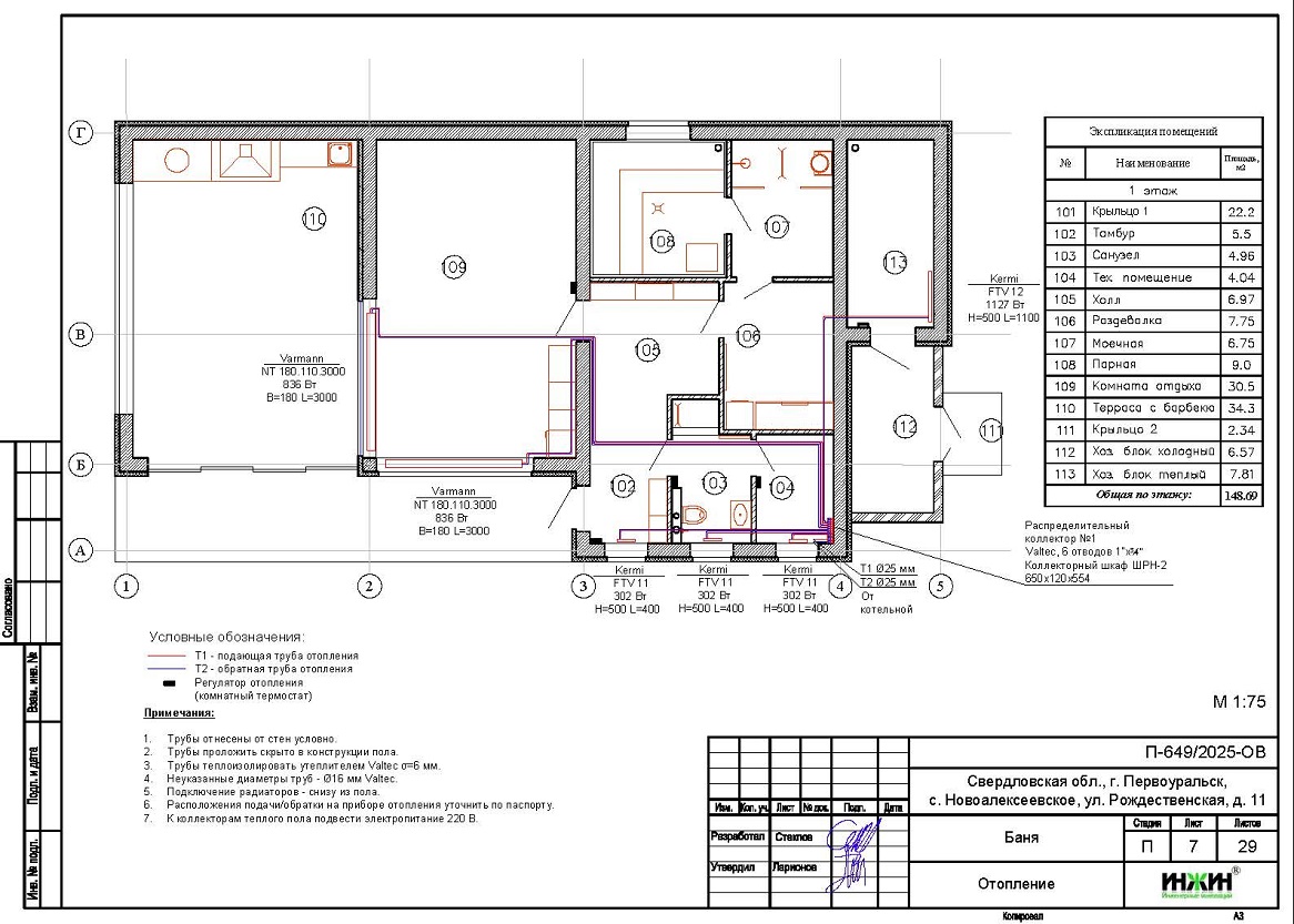
3. Комплект поэтажных чертежей радиаторного отопления бани в г. Первоуральск Свердловской области.
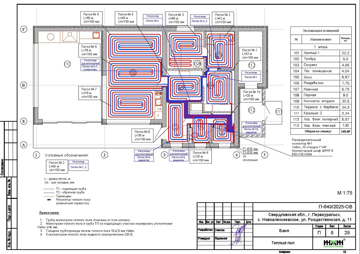
4. Комплект чертежей теплого пола на площади 75 м.кв.
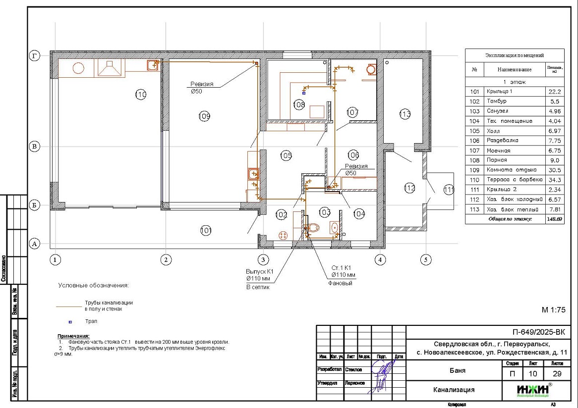
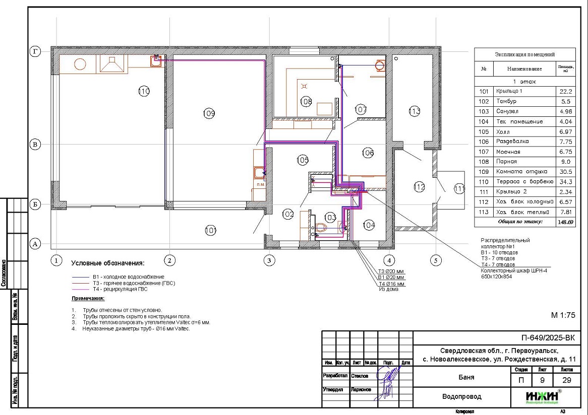
5. Комплект чертежей водоснабжения и канализации бани из блоков Теплит в г. Первоуральск Свердловской области.
6. Типовые схемы системы отопления канализации и водоснабжения бани 148 м.кв.
7. Теплотехнический расчет отопления дома из блоков Теплит.
8. Спецификация материалов и оборудования по котельной, отоплению, канализации и водоснабжению бани в г. Первоуральск.
Объем проекта отопления, канализации и водоснабжения бани в г. Первоуральск: 29 листов.
Описание проекта отопления, котельной, канализации и водоснабжения бани 148 м.кв. в г. Первоуральск.
Котельная частной бани в г. Первоуральск.
o Размещена в отдельном помещении основного дома.
Отопление банного комплекса в г. Первоуральск (проект отопления бани).
o Выполнен теплотехнический расчет отопления комплекса строений (утеплитель стен и кровли - базальтовая вата 100 и 200мм, соответственно) с учетом теплопотерь через ограждающие конструкции при наружной температуре -32°С для Свердловской области (по СП 131.13330.2020), расчетный расход тепла на отопление бани составил 8,0 кВт, удельные теплопотери 96,2 Вт/м.кв.;
o Подобраны приборы для отопления бани: стальные панельные радиаторы Kermi с нижним подключением и встроенные в пол конвекторы Varmann;
o Схема радиаторного отопления бани двухтрубная, коллекторно-лучевая, с принудительной циркуляцией теплоносителя и температурным графиком 80/60°С;
o Трубы отопления из сшитого полиэтилена Valtec;
o Теплоизоляция трубопроводов отопления Valtec, толщиной 6мм;
o Теплоноситель в системе радиаторного отопления бани – подготовленная вода.
Водяной теплый пол бани в г. Первоуральск(проект теплого пола).
o Водяной теплый пол в бане предусмотрен на площади 75 м.кв., коллектор теплого пола Valtec на 10 отводов (всего 10 петель);
o Предусмотрен насосно-смесительный узел для теплоснабжения водяного теплого пола бани (на контуре отопления);
o Трубопроводы теплого пола – сшитый полиэтилен Valtec;
o Регулирование температуры теплого пола - общее, регулятором на смесительной группе.
Внутренний водопровод бани в г. Первоуральск (проект водоснабжения).
o Схема внутреннего водоснабжения бани – коллекторно-лучевая с рециркуляцией горячей воды через водяные полотенцесушители и коллекторы, выполнен расчет 18-и точек водоснабжения и полотенцесушителей;
o Трубопроводы системы водоснабжения – из сшитого полиэтилена Valtec;
o Теплоизоляция трубопроводов Valtec, толщиной 6мм.
Внутренняя канализация (проект канализации) бани в г. Первоуральск.
o Безнапорная, отвод стоков от санитарно-технических приборов предусмотрен в септик;
o Произведен расчет 9-и точек бытовой канализации;
o Канализационные трубы Синикон, раструбные.



















