Выполненные проекты
Отопление дома площадью 289 м.кв. в Сочи, проект
Объект: трёхэтажный дом из газобетона, площадью 289 м.кв., расположенный в г. Сочи Краснодарского края
Вариант отопления: «Комфортный+»
Цена проекта отопления и водоснабжения: 42 925 руб. со скидкой 10%, проект котельной - бесплатно.
Проект котельной, отопления, водоснабжения выполнен: 17.12.2025
Состав проекта котельной, отопления и водоснабжения дома в Сочи:
1. Пояснительная записка проекта, общие данные по системам отопления, канализации и водоснабжения дома 289 м.кв. в Сочи.
2. Тепломеханическая схема котельной с размещением оборудования в отдельном помещении дома из газобетона.
3. Комплект чертежей теплого пола на площади 235 м.кв.
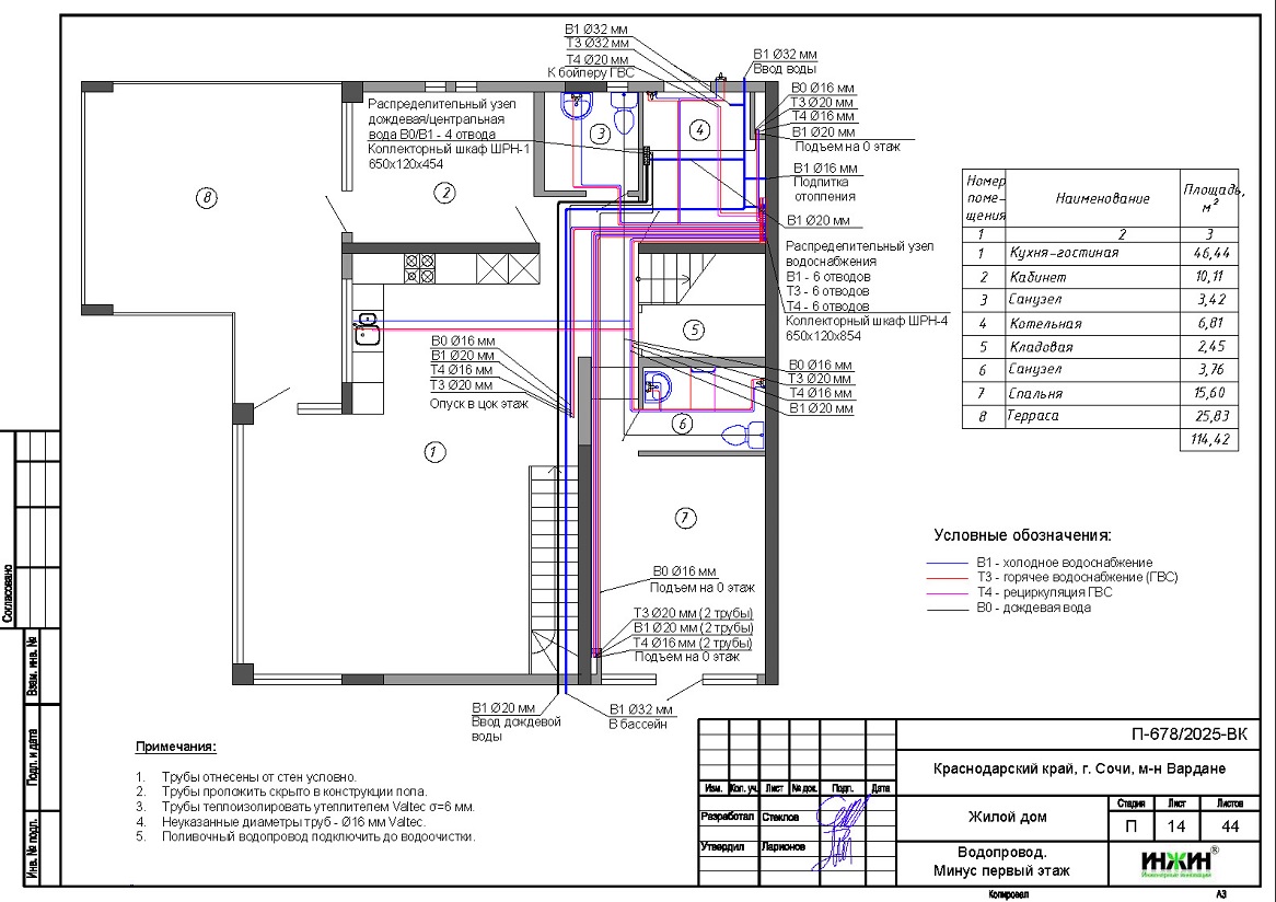
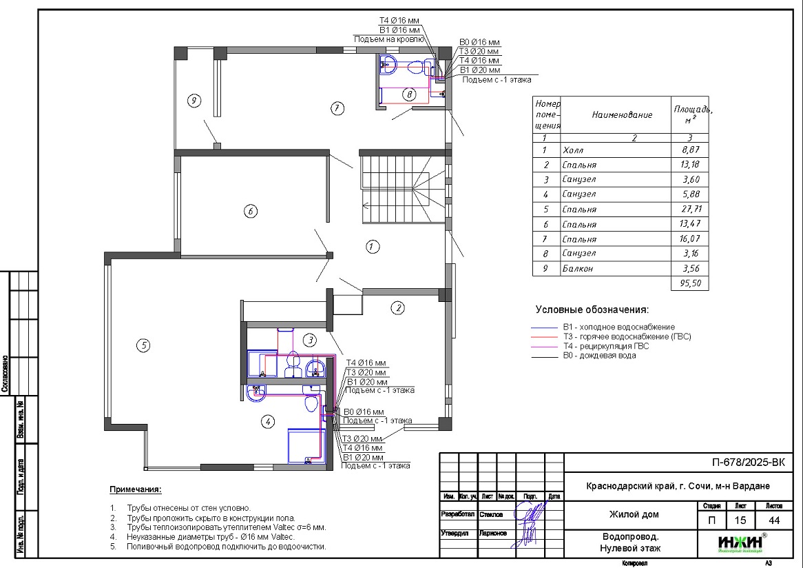
4. Комплект чертежей водоснабжения частного дома из газобетона в Сочи.
5. Типовые схемы системы водоснабжения дома 289м.кв.
6. Теплотехнический расчет отопления дома из газобетона.
7. Спецификация материалов и оборудования по котельной и водоснабжению дома в Сочи.
Объем проекта отопления и водоснабжения дома в Сочи: 44 листа.
Описание проекта отопления, котельной и водоснабжения частного дома 289 м.кв. в Сочи.
Котельная частного дома в Сочи(проект котельной бесплатно).
o Размещена в отдельном помещении дома 289м.кв.;
o Теплогенераторы - настенный газовый котел Baxi LUNA IN Plus, мощностью 24 кВт (уличного размещения), солнечная сплит-система модель SH-1000-120-Sigma-R2 с двумя теплообменниками, объём бака 1000 л;
o Контуры теплоснабжения котельной – теплый пол, хаммам, летний бассейн и горячее водоснабжение (бак встроен в солнечную станцию);
o Расширительные баки отопления и бойлера Flamco, объемом 18 литров каждый;
o Дымоудаление принудительное, дымоход коаксиальный;
o Распределительный коллектор - STOUT с насосными группами и гидрострелкой;
o Автоматика котельной – контроллер ZONT Climatic 1.2 со встроенным GSM-модулем.
Отопление дома в Сочи (проект отопления дома).
o Выполнен теплотехнический расчет отопления дома из газобетона (утеплитель стен и кровли - минвата 200мм) с учетом теплопотерь через ограждающие конструкции при наружной температуре -3°С для Сочинской зоны (по СП 131.13330.2020), расчетный расход тепла на отопление дома составил 13,13 кВт, удельные теплопотери 62,9 Вт/м.кв.;
o Приборы для отопления дома не предусмотрены, отопление только тёплым полом.
Водяной теплый пол дома в Сочи(проект теплого пола).
o Водяной теплый пол в доме предусмотрен на площади 235 м.кв., коллекторы теплого пола Valtec на 2, 7 и 9 отводов, всего 18 петель;
o Предусмотрен насосно-смесительный узел для теплоснабжения водяного теплого пола дома - в составе насосной группы котельной;
o Трубопроводы теплого пола – сшитый полиэтилен Valtec;
o Регулирование температуры теплого пола - общее, регулятором на смесительных группах и локальное, по помещениям, при помощи электронных комнатных термостатов Valtec с Wi-Fi (обзор которых публиковали на нашем сайте в разделе новинок).
Внутренний водопровод дома в Сочи(проект водоснабжения).
o Схема внутреннего водоснабжения дома – коллекторно-лучевая с рециркуляцией горячей воды через водяные полотенцесушители, выполнен расчет 48-и точек водоснабжения и полотенцесушителей;
o Трубопроводы системы водоснабжения – из сшитого полиэтилена Valtec;
o Теплоизоляция трубопроводов Valtec, толщиной 6мм.
Заказать в нашей компании проект отопления, водоснабжения и канализации загородного дома дистанционно со скидкой.
Для этого дома в г. Сочи выполнен проект электрики.






















