Выполненные проекты
Проект электрики дома площадью 301 м.кв.
Объект: газобетонный дом общей площадью 301 м.кв., расположенный в д. Митькино Одинцовского района Московской области
Цена (стоимость) проекта электрики (электропроводки): 39 281 руб. со скидкой 10%, проект слаботочных кабельных линий - бесплатно.
Проект электрики выполнен: 13.01.2026
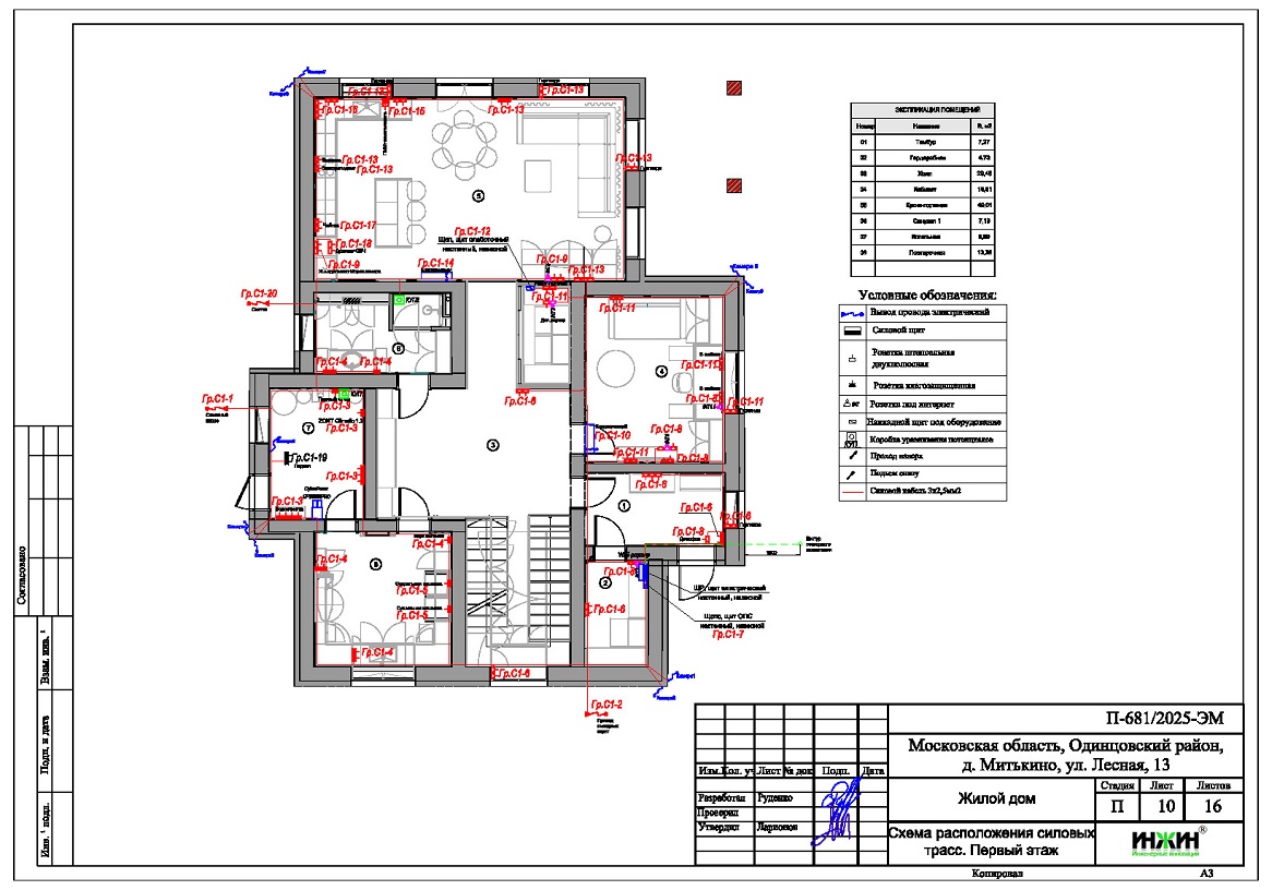
Состав проекта электрики дома в д. Митькино.
1. Пояснительная записка. Общие данные по электроснабжению и освещению частного дома в д. Митькино.
2. Однолинейные схемы вводного распределительного устройства и электрического распределительного щита дома 301 м.кв.
3. Чертежи электропроводки дома в д. Митькино.
4. Чертежи групповых осветительных сетей дома в д. Митькино.
5. Спецификация материалов и оборудования по электрике и электропроводке дома в д. Митькино.
Объем проекта электрики дома 301 м.кв.: 16 листов.
Проект электрики дома площадью 301м.кв. в д. Митькино- подробное описание.
Расчетные показатели по электроснабжению и освещению дома в д. Митькино.
o Расчетная электрическая мощность дома составила 15,44 кВт, с учетом коэффициента спроса 0,43, принятого согласно СП 256.1325800.2016;
o При расчете учтено силовое оборудование: септик, газовый котел, скважинный насос, кондиционеры.
Распределительные электрические щиты дома площадью 301 м.кв.
o Проектом предусмотрен один распределительный электрический щит, расположенный в прихожей;
o Автоматические выключатели, дифференциальные автоматы, рубильники и УЗО в щите – ABB, в количестве 40 шт. размещены во встраиваемом корпусе.
Силовая кабельная сеть (электропроводка) дома в д. Митькино.
o Электропроводка дома предусмотрена с использованием кабелей ВВГ нг -LS с медными жилами в ПВХ-оболочке (не поддерживает горение);
o Общая протяженность линий электроснабжения и освещения – 2050 метров, вводная кабельная линия - бронированный кабель 90 метров;
o Электропроводка предусмотрена скрытым способом, в конструкции пола и стен помещений;
o Запроектировано 205 точек подключения розеток и выключателей освещения в доме;
o Предусмотрены слаботочные линии телевидения ЛВС, общая протяженность - 610 метров.
Система резервного электропитания предусмотрена с использованием однофазного инвертора CyberPower CPS 5000 PRO с АКБ.
Для этого дома в дер. Митькино выполнен проект отопления.



















