Новости компании
Проекты инженерных систем выполнены для дома 220 м.кв.
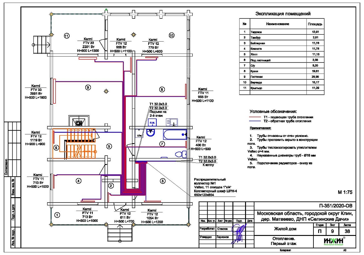
Для дома со стенами из бруса (утеплитель кровли - минеральная вата 250мм), площадью 220 м.кв., расположенного в ДНП "Селинские Дачи"Московской области, разработаны проекты внутренних инженерных систем: электрики, котельной, отопления, водоснабжения и канализации.
В проекте отопления, водоснабжения и канализации, по заданию Заказчика, предусмотрены следующие основные технические решения:
- Вариант котельной и отопления «Базовый», с дополнительным GSM-модулем ZONT для контроля работы газового котла отопления;
- Предусмотрен настенный газовый котел Vaillant, мощностью 28 кВт,который размещен в помещении котельной;
- Контуры теплоснабжения котельной – радиаторное отопление и горячее водоснабжение снакопительным бойлером Vaillant uniSTOR, которые подключены к котлу;
- Выполнен расчет отопления, расход тепла на отопление составил - 18,6 кВт, удельные теплопотери 104,9 Вт/м.кв.;
- Отопление и водоснабжение дома в ДНП "Селинские Дачи" предусмотрены по коллекторно-лучевой схеме, с трубопроводами из металлопластика Valtec;
- Приборы для системы отопления дома - стальные панельные радиаторы KERMI с нижним подключением (из пола);
- Водяной теплый пол проектом не предусмотрен;
- Водоснабжение предусмотрено с рециркуляцией горячей воды через полотенцесушители, выполнен расчет 14-и точек внутреннего водопровода;
- Внутренняя канализация безнапорная, отвод стоков от санитарно-технических приборов предусмотрен в септик, выполнен расчет 12-и точек канализации.
Стоимость проекта отопления водоснабжения и канализации дома в ДНП "Селинские Дачи"- 29 700 руб. со скидкой 10%, проект котельной бесплатно, объем проекта отопления 8 листов.

Проект электрики дома в ДНП "Селинские Дачи" содержит следующие технические решения:
- Выполнен расчет схемы электроснабжения, электрическая мощность дома составила 13,86 кВт, с учетом коэффициента спроса 0,8, принятого согласно СП 256.1325800.2016;
- Автоматические выключатели (УЗО) в количестве 28 шт., которые размещены в распределительном щите ABB (навесной корпус);
- Электропроводка предусмотрена скрытым способом, в конструкции стен и пола дома;
- Общая протяженность электропроводки 998 метров;
- Резервное электропитание дома при помощи однофазного инвертора CyberPower мощностью 2,5 кВт.
Цена проекта электрики – 18 810 руб. со скидкой 10%. Объем проекта электрики – 16 листов.
Подробное описание выполненного проекта электрики дома в ДНП "Селинские Дачи".

Заказать проект электрики дома дистанционно.
12 августа 2020 года
- Информация о материале
- Просмотров: 2256














