Новости компании
Разработаны проекты инженерных систем дома 306 м.кв.
Для загородного дома со стенами из пеноблоков (утеплитель кровли - стекловата 150мм), площадью 306 м.кв., расположенного в ДП Кратово, разработаны проекты внутренних инженерных систем: электрики, отопления и водоснабжения.
В проекте отопления, канализации и водоснабжения, по заданию Заказчика, предусмотрены следующие основные технические решения:
- Вариант отопления «Комфортный», с системой управления, встроенной в котел;
- Индивидуальная котельная с напольным газовым котлом Protherm Медведь 40KLOM, мощностью 45 кВт;
- Контуры теплоснабжения дома – 3 шт. (отопление, теплый пол и горячее водоснабжение);
- Выполнен расчет отопления, расход тепла на отопление составил - 24,89 кВт, удельные теплопотери 81,5 Вт/м.кв.;
- Отопление и водоснабжение дома в Московской области предусмотрены по коллекторно-лучевой схеме, с трубопроводами из металлопластика Valtec;
- Приборы для системы отопления дома - биметаллические секционные радиаторы RifarBase Ventilс нижним подключением;
- Водяной теплый пол проектом предусмотрен на площади 130 м.кв., 16 петель;
- Водоснабжение предусмотрено с рециркуляцией горячей воды через проходные водорозетки, выполнен расчет 25-и точек внутреннего водопровода и 14-ти точек канализации.
Стоимость проекта отопления и водоснабжения дома в ДП Кратово- 72 702 руб. со скидкой 10%, проект котельной бесплатно, объем проекта 49 листов.

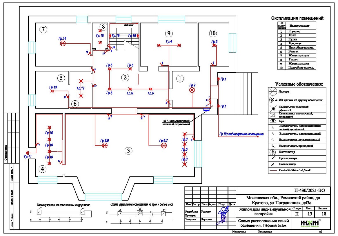
Проект электрики дома в ДП Кратово содержит следующие технические решения:
- Выполнен расчет схемы электроснабжения, электрическая мощность дома составила 17,54 кВт, с учетом коэффициента спроса 0,48, принятого согласно СП 256.1325800.2016;
- Автоматические выключатели (УЗО) в количестве 40 шт., которые размещены в распределительных щитах ABB (пристраиваемые корпусы);
- Электропроводка предусмотрена скрытым способом, в конструкции стен и пола дома;
- Общая протяженность электропроводки 1480 метров;
- Резервное электропитание дома с использованием однофазного бензинового генератора (по выбору Заказчика).
Цена проекта электрики – 36 628 руб. со скидкой 10%. Объем проекта электрики – 18 листов.
Подробное описание выполненного проекта электрики дома в ДП Кратово.

Заказать проект электрики частного дома дистанционно.
18 ноября 2021 года
- Информация о материале
- Просмотров: 2500














