Новости компании
Выполнен проект отопления для дома в Луховицах
Для загородного дома с беней (утеплитель кровли - минеральная вата 150мм), площадью 144 м.кв., расположенного в г. Луховицы Московской области, выполнены проекты отопления, канализации и водоснабжения.
В проекте отопления, канализации и водоснабжения, по заданию Заказчика, предусмотрены следующие основные технические решения:
- Вариант отопления «Комфортный», с системой управления котельной ZONT-Climatic 1.3 со встроенным GSM-модулем для удаленного управления при помощи мобильного приложения;
- Индивидуальная котельная с каскадом из двух настенных котлов - газового Buderus Logamax U072, мощностью 28 кВт, и электрического - Protherm Скат, мощностью 9 кВт;
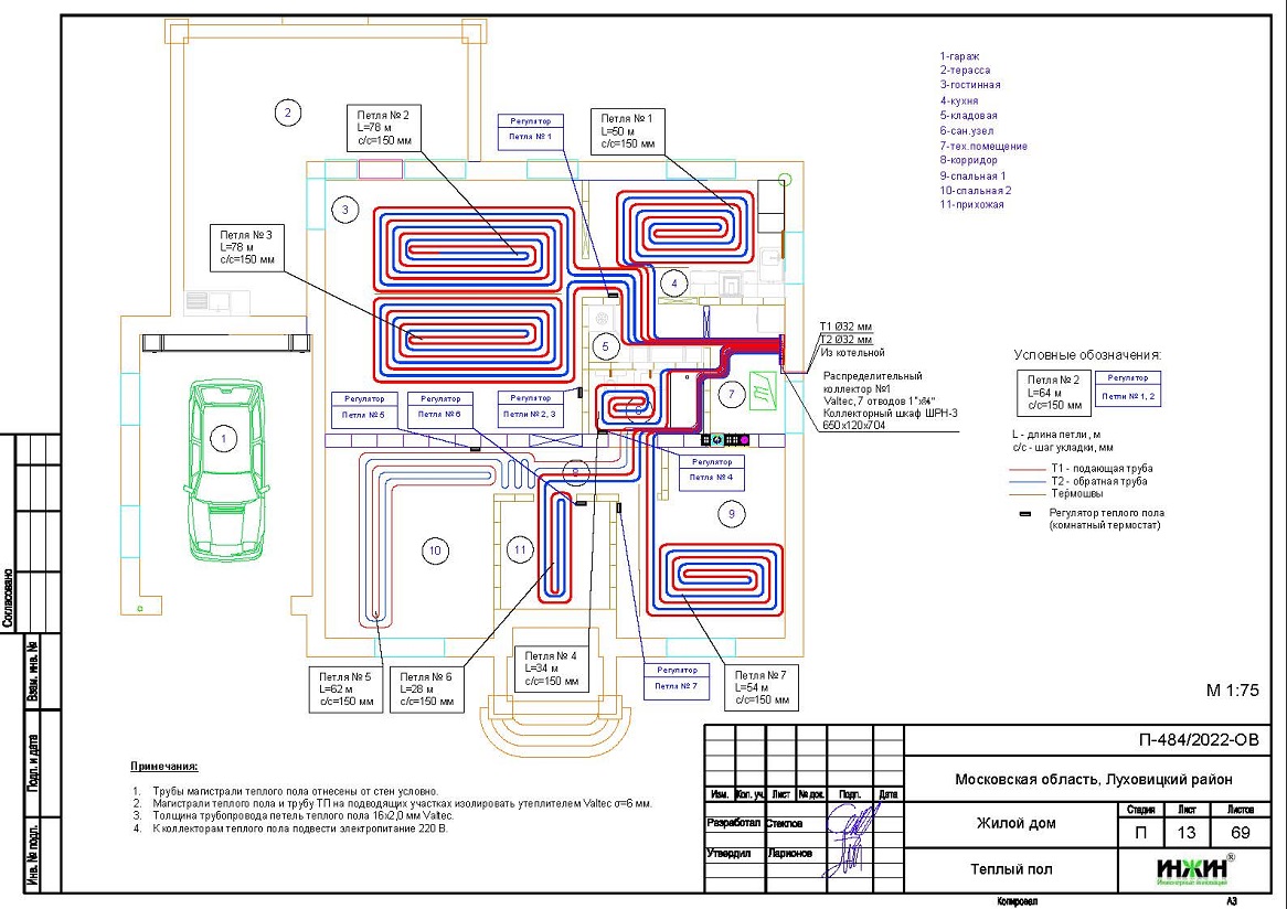
- Контуры теплоснабжения дома – 4 шт. (отопление дома, отопление бани, теплый пол дома и горячее водоснабжение);
- Выполнен расчет отопления, расход тепла на отопление дома составил 10,84 кВт, удельные теплопотери 104,4 Вт/м.кв., бани - 4,43 кВт, удельные теплопотери 100,3 Вт/м.кв.;
- Отопление и водоснабжение дома с баней в Московской области предусмотрены по коллекторно-лучевой схеме, с трубопроводами из металлопластика Valtec;
- Приборы для системы отопления дома - стальные панельные радиаторы Kermi с нижним подключением, в вентильном исполнении;
- Водяной теплый пол проектом предусмотрен на площади 65 м.кв., 10 петель (7 для дома и 3 для бани);
- Водоснабжение предусмотрено с рециркуляцией горячей воды через полотенцесушители, выполнен расчет 22-х точек внутреннего водопровода и 15-ти точек канализации.
Стоимость проекта отопления и водоснабжения дома с баней в Луховицах- 34 488 руб. со скидкой 10%, проект котельной бесплатно, объем проекта 53 листа.

07 февраля 2023 года
- Информация о материале
- Просмотров: 4952














