Новости компании
Выполнены проекты инженерных систем для дома 153 м.кв.
Для загородного дома со стенами из газоблоков (утеплитель кровли - базвата 150мм), площадью 153 м.кв., расположенного в ДНП "Талицкие берега", Пушкинского района Московской области, разработаны проекты внутренних инженерных систем: электрики, отопления, водоснабжения, канализации и котельной.
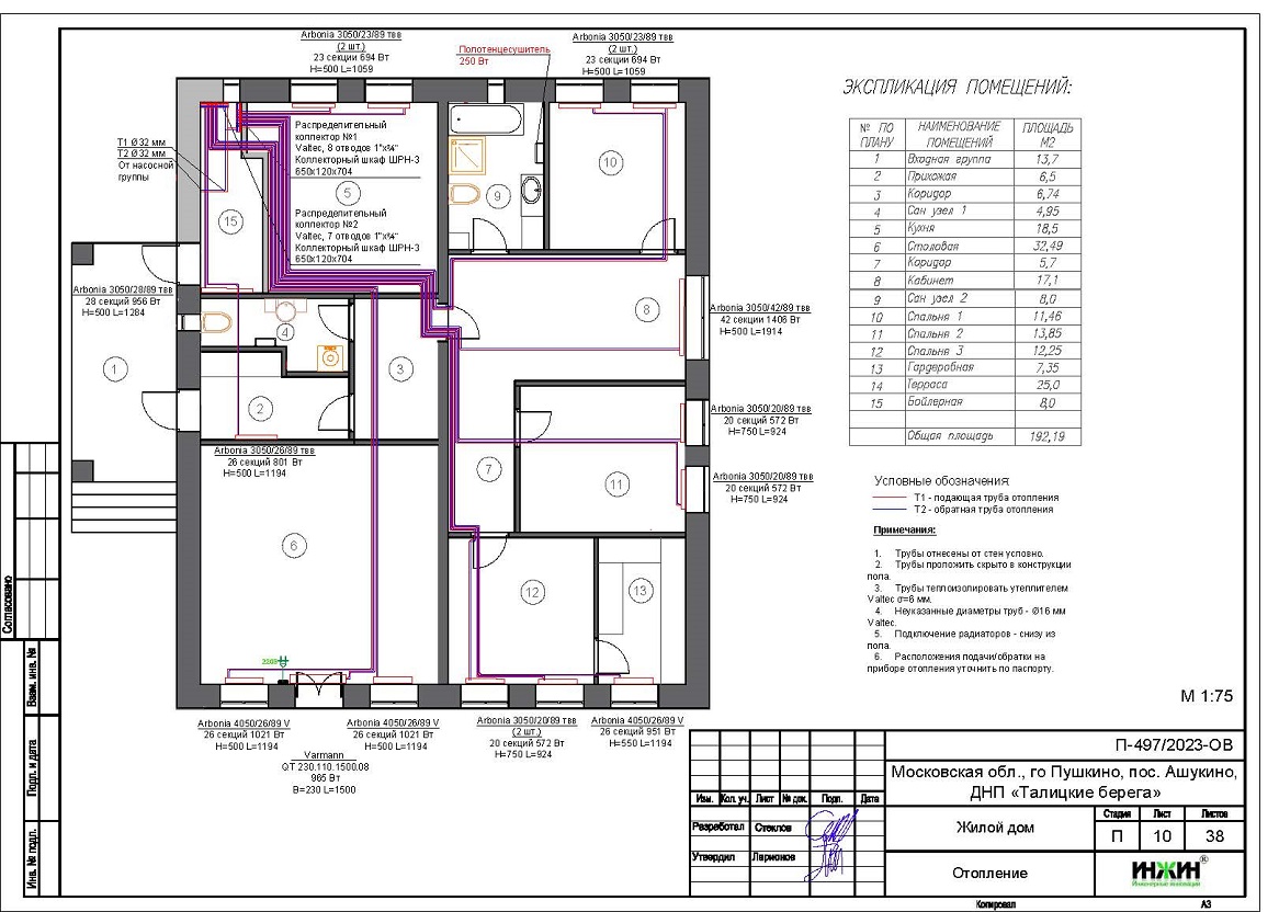
В проекте отопления, водоснабжения, канализации и теплого пола, по заданию Заказчика, предусмотрены следующие основные технические решения:
- Вариант отопления «Комфортный», с контроллером ZONT Climatic 1.3 со встроенным GSM-модулем;
- Индивидуальная котельная с двумя настенными котлами - основным газовым Лемакс Prime-V24 HO, мощностью 24 кВт и резервным - электрическим ZOTA MK, мощностью 12 кВт;
- Контуры теплоснабжения дома – 4 шт. (отопление, теплый пол, теплоснабжение бани и горячее водоснабжение);
- Выполнен расчет отопления, расход тепла на отопление составил - 13,96 кВт, удельные теплопотери 91,0 Вт/м.кв.;
- Отопление и водоснабжение дома в Московской области предусмотрены по коллекторно-лучевой схеме, с трубопроводами из металлопластика Valtec;
- Приборы для системы отопления дома - трубчатые дизайн-радиаторы Arbonia с нижним подключением и встраиваемый в пол конвектор Varmann с принудительной конвекцией;
- Водяной теплый пол проектом предусмотрен на площади 25 м.кв., 4 петли;
- Выполнен расчет 24-х точек водоснабжения и 12-и точек бытовой канализации.
Стоимость проекта отопления дома в ДНП "Талицкие берега"- 33 390 руб. со скидкой 10%, проект котельной бесплатно, объем проекта 38 листов.
Подробное описание выполненного проекта отопления частного дома 153 м.кв. в ДНП "Талицкие берега".
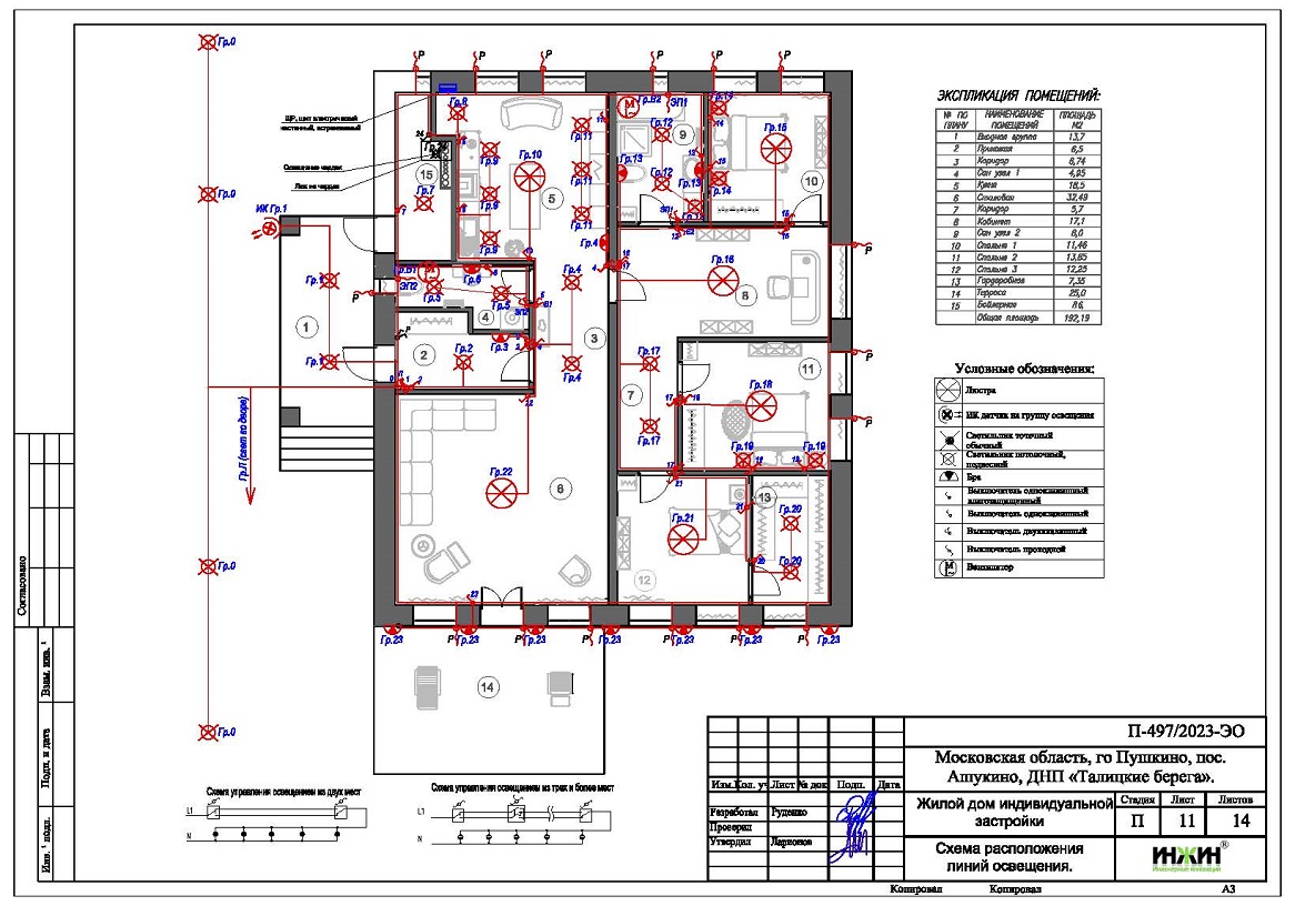
Проект электрики дома в ДНП "Талицкие берега" содержит следующие технические решения:
- Выполнен расчет схемы электроснабжения, электрическая мощность дома составила 22,06 кВт, с учетом коэффициента спроса 0,5, принятого согласно СП 256.1325800.2016;
- Автоматические выключатели (УЗО) в количестве 28 шт., которые размещены в распределительном щите ABB;
- Электропроводка предусмотрена скрытым способом, в конструкции стен и пола дома;
- Общая протяженность электропроводки 1155 метров;
- Резервное электропитание дома предусмотрено с использованием инвертора ШТИЛЬ IS 5000 с АКБ.
Цена проекта электрики – 18 395 руб. со скидкой 10%. Объем проекта электрики – 14 листов.
Подробное описание выполненного проекта электрики дома в ДНП "Талицкие берега".
Заказать проект электрики частного дома дистанционно.
25 мая 2023 года
- Информация о материале
- Просмотров: 4383
















