Новости компании
Разработан проект отопления для дома 138 м.кв.
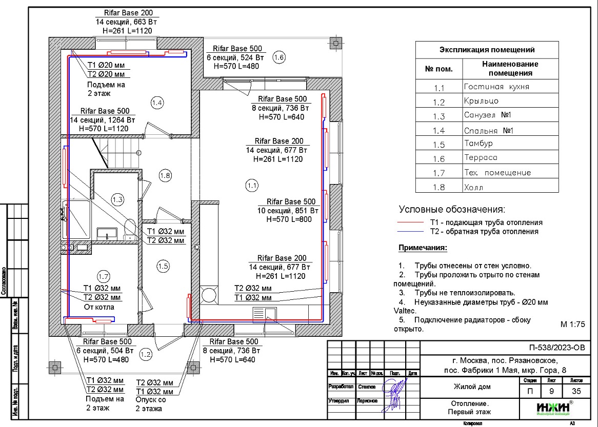
Для загородного дома со стенами из кирпича (утеплитель кровли - минвата 200мм), площадью 138 м.кв., расположенного в г. Москва, пос. Рязановское, мкр. Гора, выполнены проекты отопления, канализации и водоснабжения.
В проекте отопления, канализации и водоснабжения, по заданию Заказчика, предусмотрены следующие основные технические решения:
- Вариант отопления «Базовый» с системой управления, встроенной в котел;
- Индивидуальная котельная с одним котлом - газовым настенным Mizudo, мощностью 24 кВт;
- Контуры теплоснабжения дома – 2 шт. (отопление дома и горячее водоснабжение);
- Выполнен расчет отопления, расход тепла на отопление составил - 12,13 кВт, удельные теплопотери 96,8 Вт/м.кв.;
- Отопление (водоснабжение) дома предусмотрены по двухтрубной (тройниковой) схеме, с трубопроводами из полипропилена Valtec;
- Приборы для системы отопления дома - секционные радиаторы Rifar BASE с боковым подключением;
- Водяной теплый пол проектом не предусмотрен;
- Водоснабжение предусмотрено с рециркуляцией горячей воды через полотенцесушители, выполнен расчет 17-ти точек внутреннего водопровода и 10-ти точек внутренней канализации.
Стоимость проекта отопления и водоснабжения дома в пос. Рязановское- 22 232 руб. со скидкой 10%, проект котельной бесплатно, объем проекта 35 листов.

24 января 2024 года
- Информация о материале
- Просмотров: 4625














