Новости компании
Разработан проект отопления для дома в Тверской области
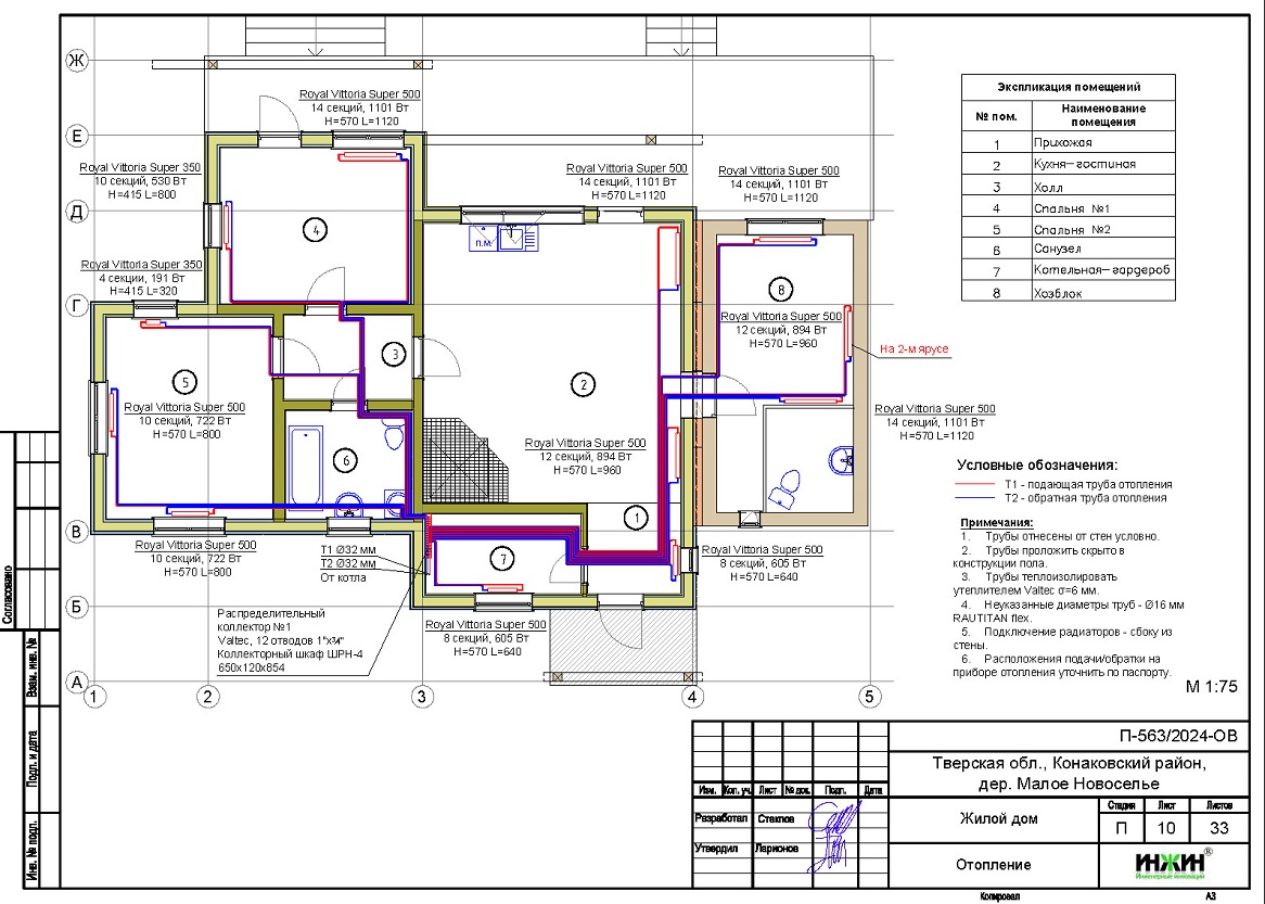
Для частного дома (утеплитель стен и кровли - эковата 195 и 300 мм, соответственно), площадью 120 м.кв., расположенного в дер. Малое Новоселье Конаковского района Тверской области, выполнены проекты отопления, водоснабжения, канализации и теплого пола.
В проекте отопления по заданию Заказчика, предусмотрены следующие основные технические решения:
- Вариант отопления «Комфортный», с системой управления, встроенной в котел;
- Индивидуальная котельная с настенным газовым котлом BAXI мощностью 24 кВт;
- Контуры теплоснабжения дома – 3 шт. (отопление дома, теплый пол и горячее водоснабжение);
- Выполнен расчет отопления, расход тепла на отопление составил - 9,83 кВт, удельные теплопотери 98,5 Вт/м.кв.;
- Отопление и водоснабжение дома предусмотрены по двухтрубной коллекторно-лучевой схеме, с трубопроводами из полиэтиленаValtec;
- Приборы для системы отопления дома - секционные биметаллические радиаторы Royal Thermo Vittoria Super с боковым и нижним подключением;
- Водяной теплый пол проектом предусмотрен на площади 15 м.кв., 3 петли.
Стоимость проекта отопления и теплого пола дома в дер. Малое НовосельеТверской области- 20 264 руб. со скидкой 10%, проект котельной бесплатно, объем проекта 33 листа.

18 июня 2024 года
- Информация о материале
- Просмотров: 3476














