Новости компании
Выполнены проекты инженерных систем для дома 157 м.кв.
Для загородного дома со стенами из кирпича (утеплитель кровли - минвата 200мм), площадью 157 м.кв., расположенного в дер. Юрлово Солнечногорского района Московской области, разработаны проекты внутренних инженерных систем: электрики, котельной и отопления.
В проекте отопления, по заданию Заказчика, предусмотрены следующие основные технические решения:
- Вариант отопления «Комфортный», с водяным теплым полом;
- Индивидуальная котельная с настенным газовым BAXI мощностью 24 кВт;
- Контуры теплоснабжения дома – радиаторное отопление дома, теплый пол дома и горячее водоснабжение, для которого предусмотрен накопительный бойлер STOUT, объемом 200 литров;
- Выполнен расчет отопления, расход тепла на отопление составил - 13,58 кВт, удельные теплопотери 86,2 Вт/м.кв.;
- Отопление и водоснабжение дома в Московской области предусмотрены по коллекторно-лучевой схеме, с трубопроводами из металлопластика Valtec;
- Приборы для системы отопления дома - секционные биметаллические радиаторы RIFAR BASEс нижним подключением, водяной теплый пол в доме предусмотрен на площади 56 м.кв. (9 петель);
- Выполнен расчет 20-ти точек водоснабжения и полотенцесушителей, а также 13-ти точек бытовой канализации.
Стоимость проекта отопления дома в дер. Юрлово- 28 771 руб. со скидкой 10%, проект котельной бесплатно, объем проекта 43 листа.
Подробное описание выполненного проекта отопления частного дома 157м.кв. в дер. Юрлово.

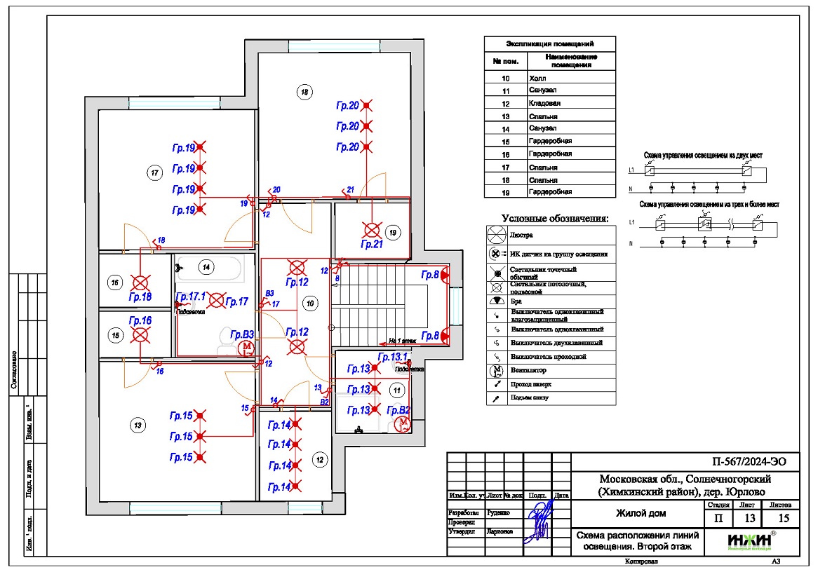
Проект электрики дома в дер. Юрловосодержит следующие технические решения:
- Выполнен расчет схемы электроснабжения, электрическая мощность дома составила 9,87 кВт, с учетом коэффициента спроса 0,5, принятого согласно СП 256.1325800.2016;
- Автоматические выключатели (УЗО) в количестве 26 шт., которые размещены в распределительном щите ABB;
- Электропроводка предусмотрена скрытым способом, в полу и стенах дома;
- Общая протяженность электропроводки 875 метров;
- Резервное электропитание дома предусмотрено на базе однофазного инвертора CyberPower CPS 1000 PRO с АКБ.
Цена проекта электрики – 18 792 руб. со скидкой 10%. Объем проекта электрики – 15 листов.
Подробное описание выполненного проекта электрики дома в дер. Юрлово.

Заказать проект электрики частного дома дистанционно.
05 июня 2024 года
- Информация о материале
- Просмотров: 3914














