Новости компании
Выполнены проекты инженерных систем дома в го Шаховская
Для загородного дома со стенами из газобетона (утеплитель кровли - базвата 200мм), площадью 98 м.кв., расположенного в с. Белая Колпь, го Шаховская Московской области, разработаны проекты внутренних инженерных систем: электрики, котельной и отопления.
В проекте отопления, по заданию Заказчика, предусмотрены следующие основные технические решения:
- Вариант отопления «Комфортный», с контроллером ZONT Climatic 1.2со встроенным GSM-модулем;
- Индивидуальная котельная с настенным газовым котлом BAXI, мощностью 14 кВт (основной) и настенным электрическим котлом BAXI AMPERA Plus, мощностью 9 кВт (резервный);
- Контуры теплоснабжения дома – радиаторное отопление дома, теплый пол дома и горячее водоснабжение, для которого предусмотрен накопительный бойлер AQUATEC INOX, объемом 100 литров;
- Выполнен расчет отопления, расход тепла на отопление составил - 8,52 кВт, удельные теплопотери 87,4;
- Отопление и водоснабжение дома в с. Белая Колпь (го Шаховская) предусмотрены по коллекторно-лучевой схеме, с трубопроводами из металлопластика Valtec;
- Приборы для системы отопления дома - стальные панельные радиаторы Kermiс нижним подключением, водяной теплый пол в доме предусмотрен на площади 94 м.кв. (9 петель);
- Выполнен расчет 14-и точек водоснабжения и полотенцесушителей.
Стоимость проекта отопления дома в с. Белая Колпь (го Шаховская)- 54 854 руб. со скидкой 10%, проект котельной бесплатно, объем проекта 30 листов.

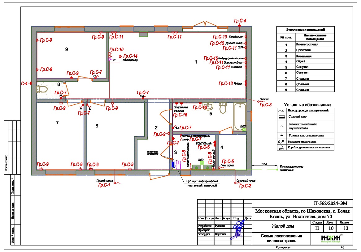
Проект электрики дома в с. Белая Колпь (го Шаховская)содержит следующие технические решения:
- Выполнен расчет схемы электроснабжения, электрическая мощность дома составила 15,57 кВт, с учетом коэффициента спроса 0,45, принятого согласно СП 256.1325800.2016;
- Автоматические выключатели (УЗО) в количестве 24 шт., которые размещены в распределительном щите Schneider Electric;
- Электропроводка предусмотрена скрытым способом, в полу и стенах дома;
- Общая протяженность электропроводки 470 метров;
- Резервное электропитание дома предусмотрено на базе однофазного инвертора CyberPower CPS 1500 PRO с АКБ.
Цена проекта электрики – 11 730 руб. со скидкой 10%. Объем проекта электрики – 13 листов.
Подробное описание выполненного проекта электрики дома в с. Белая Колпь (го Шаховская).

Заказать проект электрики частного дома дистанционно.
10 июля 2024 года
- Информация о материале
- Просмотров: 3332














