Новости компании
Выполнен проект отопления для дома в дер. Алексеевка
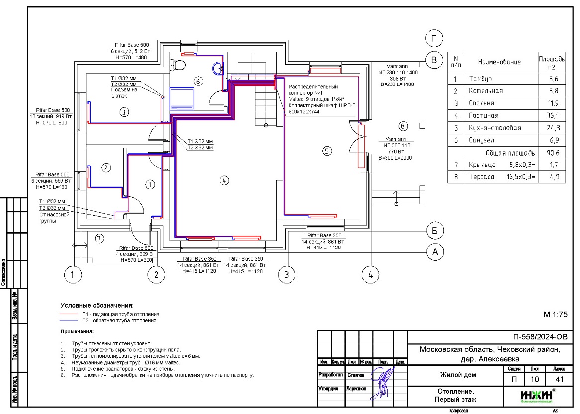
Для загородного дома со стенами из газобетона (утеплитель кровли - минвата 300 мм), площадью 187 м.кв., расположенного в дер. Алексеевка Чеховского района Московской области, выполнены проекты отопления и водоснабжения.
В проекте отопления и водоснабжения, по заданию Заказчика, предусмотрены следующие основные технические решения:
- Вариант отопления «Комфортный», с системой управления котельной ZONT-Climatic 1.2 со встроенным GSM-модулем для удаленного управления при помощи мобильного приложения;
- Индивидуальная котельная с настенным газовым котлом BAXI, мощностью 24 кВт;
- Контуры теплоснабжения дома – 3 шт. (радиаторное отопление дома, теплый пол и горячее водоснабжение);
- Выполнен расчет отопления, расход тепла на отопление составил - 13,86 кВт, удельные теплопотери 77,4 Вт/м.кв.;
- Отопление и водоснабжение дома в дер. Алексеевка предусмотрены по коллекторно-лучевой схеме, с трубопроводами из металлопластика Valtec;
- Приборы для системы отопления дома - секционные биметаллические радиаторы RIFAR BASEс боковым подключением;
- Водяной теплый пол проектом предусмотрен на площади 30 м.кв., 7 петель;
- Водоснабжение предусмотрено с рециркуляцией горячей воды через полотенцесушители, выполнен расчет 22-х точек внутреннего водопровода и 11-ти точек бытовой канализации.
Стоимость проекта отопления и водоснабжения дома в дер. Алексеевка- 31 989 руб. со скидкой 10%, проект котельной бесплатно, объем проекта 41 лист.

05 сентября 2024 года
- Информация о материале
- Просмотров: 3208














