Новости компании
Разработан проект отопления для дома 230 м.кв.
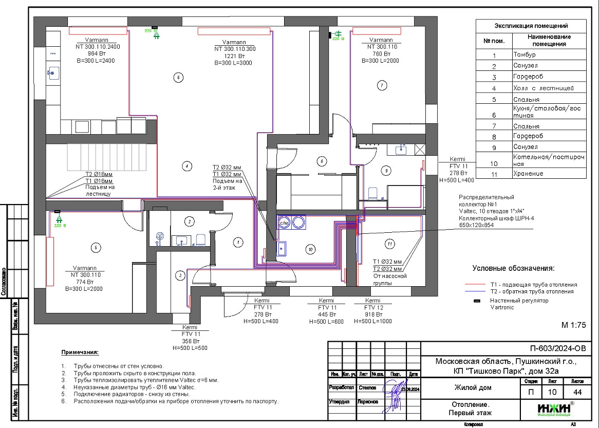
Для загородного дома со стенами из газобетона (утеплитель кровли - ЭППС 150 мм), площадью 230 м.кв., расположенного в КП "Тишково Парк", Пушкинского района Московской области, выполнены проекты отопления и водоснабжения.
В проекте отопления и водоснабжения, по заданию Заказчика, предусмотрены следующие основные технические решения:
- Вариант отопления «Комфортный», с системой управления котельной ZONT-Climatic 1.3 со встроенным GSM-модулем для удаленного управления при помощи мобильного приложения;
- Индивидуальная котельная с настенным газовым котлом BAXI, мощностью 31 кВт;
- Контуры теплоснабжения дома – 4 шт. (радиаторное отопление дома, теплый пол (два контура) и горячее водоснабжение;
- Выполнен расчет отопления, расход тепла на отопление составил - 22,37 кВт, удельные теплопотери 90 Вт/м.кв.;
- Отопление и водоснабжение дома в КП "Тишково Парк" предусмотрены по коллекторно-лучевой схеме, с трубопроводами из сшитого полиэтиленаValtec;
- Приборы для системы отопления дома - стальные панельные радиаторы Kermi и трубчатые дизайн-радиаторы RIFAR Tubog с нижним подключением, а также встроенные в пол конвекторы Varmann;
- Водяной теплый пол проектом предусмотрен на площади 200 м.кв., 19 петель;
- Водоснабжение предусмотрено с рециркуляцией горячей воды через полотенцесушители, выполнен расчет 35-ти точек внутреннего водопровода и 15-ти точек бытовой канализации.
Стоимость проекта отопления и водоснабжения дома в КП "Тишково Парк"- 59 733 руб. со скидкой 10%, проект котельной бесплатно, объем проекта 44 листа.

17 января2025 года
- Информация о материале
- Просмотров: 3537














