Новости компании
Выполнены проекты инженерных систем дома в КП «Еремеево Лайф»
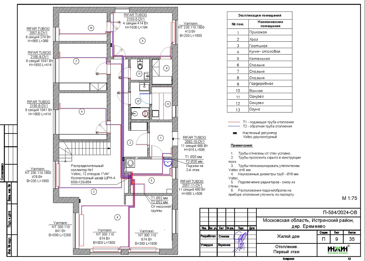
Для загородного дома со стенами из газобетона (утеплитель кровли - минвата 250мм), площадью 160 м.кв., расположенного в КП «Еремеево Лайф» Московской области, разработаны проекты внутренних инженерных систем: электрики, котельной и отопления.
В проекте отопления, по заданию Заказчика, предусмотрены следующие основные технические решения:
- Вариант отопления «Комфортный+», с контроллером ZONT Climatic 1.2со встроенным GSM-модулем;
- Индивидуальная котельная с двумя настенными котлами - газовым котлом BAXI ECO 4S, мощностью 24 кВт и электрическим BAXI AMPERA Plus, мощностью 12 кВт (резервный);
- Контуры теплоснабжения дома – радиаторное отопление дома, теплый пол дома и горячее водоснабжение, для которого предусмотрен накопительный бойлер STOUT, объемом 200 литров;
- Выполнен расчет отопления, расход тепла на отопление составил - 13,75 кВт, удельные теплопотери 77 Вт/м.кв.;
- Отопление и водоснабжение дома в КП «Еремеево Лайф» предусмотрены по коллекторно-лучевой схеме, с трубопроводами из сшитого полиэтилена Valtec;
- Приборы для системы отопления дома - секционные трубчатые радиаторы RIFAR TUBOG с нижним подключением, а также встроенные в пол конвекторы Varmann, водяной теплый пол в доме предусмотрен на площади 60 м.кв. (8 петель);
- Выполнен расчет 23-х точек водоснабжения и полотенцесушителей.
Стоимость проекта отопления дома в КП «Еремеево Лайф»- 24 516 руб. со скидкой 10%, проект котельной бесплатно, объем проекта 35 листов.
Подробное описание выполненного проекта отопления частного дома 160 м.кв. в КП «Еремеево Лайф».

Проект электрики дома в КП «Еремеево Лайф»содержит следующие технические решения:
- Выполнен расчет схемы электроснабжения, электрическая мощность дома составила 28,16 кВт, с учетом коэффициента спроса 0,48, принятого согласно СП 256.1325800.2016;
- Автоматические выключатели (УЗО) в количестве 34 шт., которые размещены в распределительном щите ABB;
- Электропроводка предусмотрена скрытым способом, в полу и стенах дома;
- Общая протяженность электропроводки 1080 метров;
- Резервное электропитание дома предусмотрено на базе инвертора CyberPower CPS 3500 PRO с АКБ.
Цена проекта электрики – 20 880 руб. со скидкой 10%. Объем проекта электрики – 20 листов.
Подробное описание выполненного проекта электрики дома в КП «Еремеево Лайф».

Заказать проект электрики частного дома дистанционно.
07 февраля 2025 года
- Информация о материале
- Просмотров: 3604














