Новости компании
Выполнены проекты инженерных систем дома в г. Жуков
Для загородного дома со стенами из бруса (утеплитель кровли - минвата 200мм), площадью 209 м.кв., расположенного в г. Жуков Калужской области, разработаны проекты внутренних инженерных систем: электрики, котельной и отопления.
В проекте отопления, по заданию Заказчика, предусмотрены следующие основные технические решения:
- Вариант отопления «Комфортный+», с контроллером ZONT Climatic 1.3со встроенным GSM-модулем;
- Индивидуальная котельная с настенным газовым котлом Vaillant turboTEC plus, мощностью 36 кВт и резервным электрическим BAXI AMPERA Plus, мощностью 12 кВт;
- Контуры теплоснабжения дома – радиаторное отопление дома, отопление гаража, теплый пол, теплоснабжение вентиляции и горячее водоснабжение, для которого предусмотрен накопительный бойлер STOUT, объемом 150 литров;
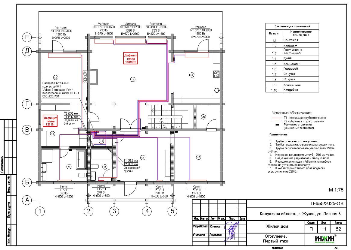
- Выполнен расчет отопления, расход тепла на отопление отопление дома и гаража составил 28,94 кВт, удельные теплопотери 136,7 Вт/м.кв.;
- Отопление и водоснабжение дома в г. Жуков Калужской области предусмотрены по коллекторно-лучевой схеме, с трубопроводами из сшитого полиэтилена Valtec;
- Приборы для системы отопления дома и гаража - стальные панельные радиаторы Kermiс нижним подключением и встроенные в пол конвекторы VARMANN с принудительной конвекцией, водяной теплый пол в доме предусмотрен на площади 165 м.кв. (11 петель);
- Выполнен расчет 23-х точек водоснабжения и полотенцесушителей.
Стоимость проекта отопления дома в г. Жуков Калужской области- 53 074 руб. со скидкой 10%, проект котельной бесплатно, объем проекта 53 листа.
Подробное описание выполненного проекта отопления частного дома 209 м.кв. в Жукове.

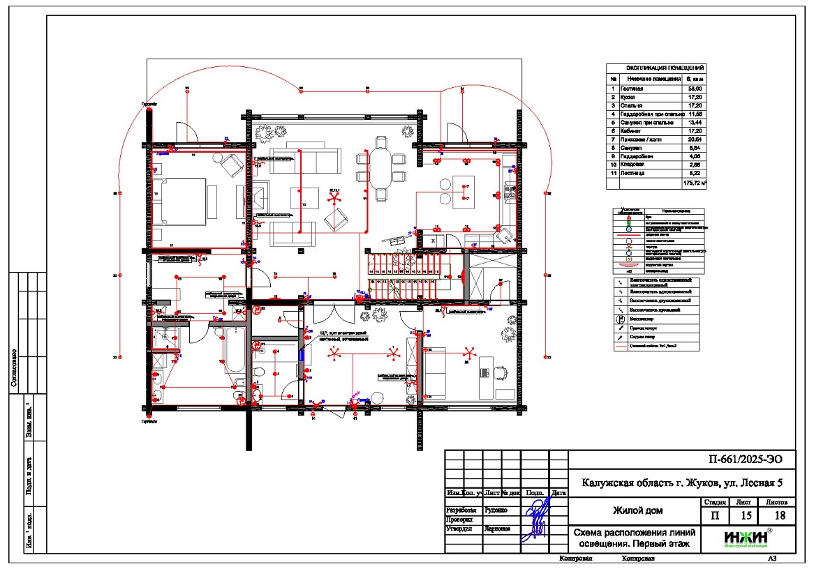
Проект электрики дома в г. Жуков Калужской областисодержит следующие технические решения:
- Выполнен расчет схемы электроснабжения, электрическая мощность дома составила 19,15 кВт, с учетом коэффициента спроса 0,4, принятого согласно СП 256.1325800.2016;
- Автоматические выключатели (УЗО) в количестве 38 шт., которые размещены в распределительных щитах ABB (2 шт.);
- Электропроводка предусмотрена скрытым способом, в полу и стенах дома и гаража;
- Общая протяженность электропроводки 1580 метров;
- Резервное электропитание дома с использованием однофазного инвертора CyberPower CPS 1000 PRO с АКБ.
Цена проекта электрики – 27 275 руб. со скидкой 10%. Объем проекта электрики – 18 листов.
Подробное описание выполненного проекта электрики дома в Жукове.

Заказать проект электрики частного дома дистанционно.
26 января 2026 года
- Информация о материале
- Просмотров: 2605














