Новости компании
Выполнены проекты инженерных систем дома 112 м.кв.
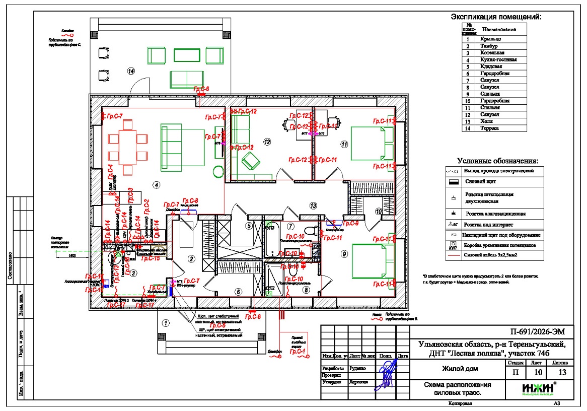
Для загородного дома со стенами из газобетона (утеплитель кровли - минвата 200мм), площадью 112 м.кв., расположенного в ДНТ "Лесная поляна" Тереньгульского района Ульяновской области, разработаны проекты внутренних инженерных систем: электрики, котельной и отопления.
В проекте отопления, по заданию Заказчика, предусмотрены следующие основные технические решения:
- Вариант отопления «Комфортный+», с контроллером ZONT Climatic 1.3со встроенным GSM-модулем;
- Индивидуальная котельная с настенным газовым котлом Baxi ECO Four, мощностью 24 кВти резервным электрическим BAXI AMPERA Plus, мощностью 12 кВт;
- Контуры теплоснабжения дома – радиаторное отопление дома, теплый пол и горячее водоснабжение, для которого предусмотрен накопительный бойлер STOUT, объемом 150 литров;
- Выполнен расчет отопления, расход тепла на отопление отопление дома составил 15,4 кВт, удельные теплопотери 137,2 Вт/м.кв.;
- Отопление и водоснабжение дома в ДНТ "Лесная поляна" Ульяновской области предусмотрены по коллекторно-лучевой схеме, с трубопроводами из сшитого полиэтилена Valtec;
- Приборы для системы отопления дома - стальные панельные радиаторы Kermiс нижним подключением, водяной теплый пол в доме предусмотрен на площади 110 м.кв. (12 петель);
- Выполнен расчет 16-и точек водоснабжения и полотенцесушителей, а также 10-и точек бытовой канализации.
Стоимость проекта отопления дома в ДНТ "Лесная поляна" Ульяновской области- 29 995 руб. со скидкой 10%, проект котельной бесплатно, объем проекта 35 листов.

Проект электрики дома в ДНТ "Лесная поляна" Ульяновской областисодержит следующие технические решения:
- Выполнен расчет схемы электроснабжения, электрическая мощность дома составила 15,27 кВт, с учетом коэффициента спроса 0,5, принятого согласно СП 256.1325800.2016;
- Автоматические выключатели (УЗО) в количестве 23 шт., которые размещены в распределительном щите ABB (1 шт.);
- Электропроводка предусмотрена скрытым способом, в полу и стенах дома;
- Общая протяженность электропроводки 750 метров;
- Резервное электропитание дома с использованием однофазного инвертора CyberPower CPS 800 PRO с АКБ.
Цена проекта электрики – 14 616 руб. со скидкой 10%. Объем проекта электрики – 13 листов.
Подробное описание выполненного проекта электрики дома в ДНТ "Лесная поляна" Ульяновской области.

Заказать проект электрики частного дома дистанционно.
05 марта 2026 года
- Информация о материале
- Просмотров: 1166














