Выполненные проекты
Проект отопления дома 297 м.кв.
Объект: трехэтажный частный дом из кирпича, площадью 297 м.кв., расположенный в дер. Дыдылдино Ленинского района Московской области
Вариант отопления: «Комфортный»
Цена проекта отопления и водоснабжения: 31 748 руб. со скидкой 10%, проект котельной - бесплатно.
Проект котельной, отопления и водоснабжения выполнен: 08.05.2019
Состав проекта котельной, отопления и водоснабжения дома в дер. Дыдылдино:
1. Пояснительная записка проекта, общие данные по системам отопления и водоснабжения дома 297 м.кв. в Московской области.
2. Тепломеханическая схема котельной с размещением оборудования в помещении 1-го этажа дома из кирпича.
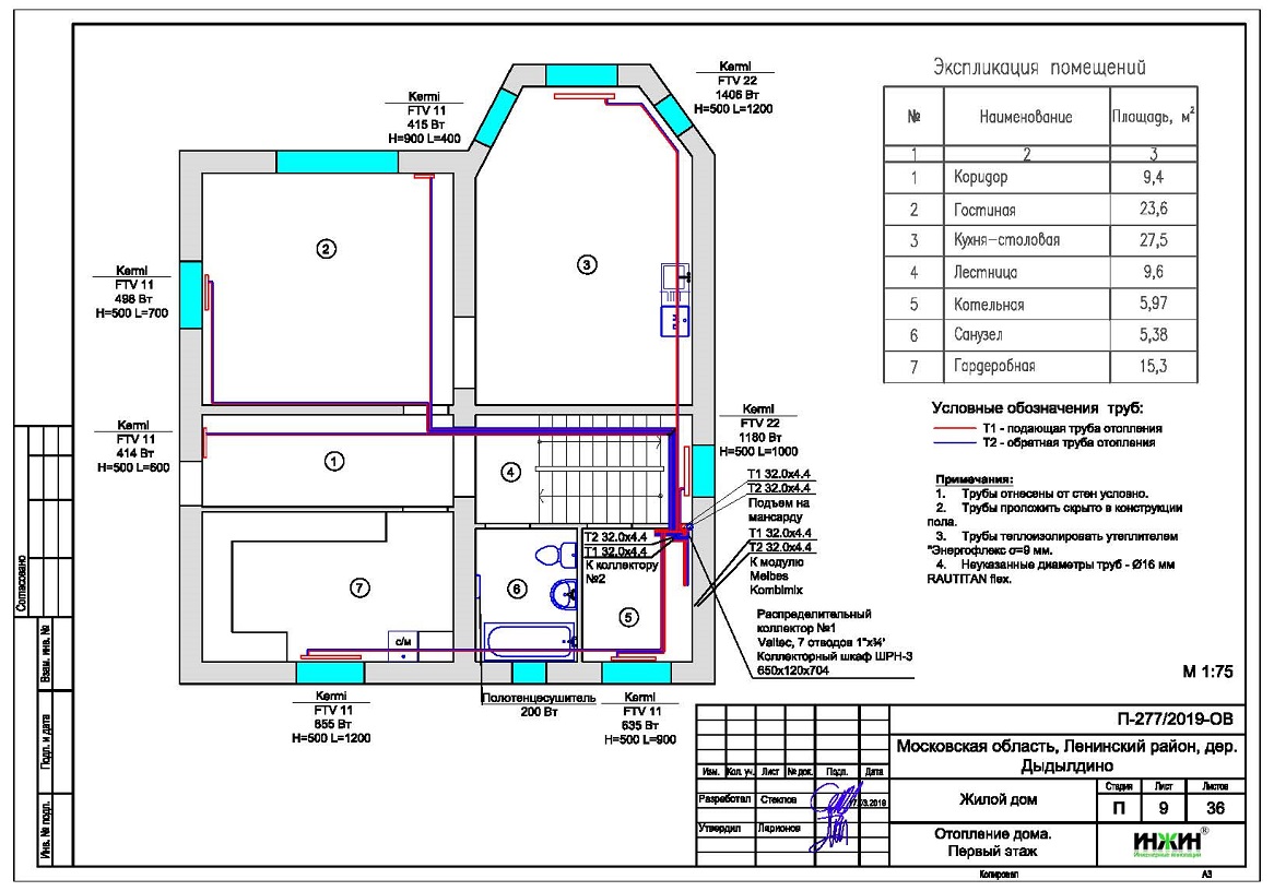
3. Комплект поэтажных чертежей радиаторного отопления дома в дер. Дыдылдино.
4. Комплект чертежей теплого пола на площади 75 м.кв.
5. Комплект чертежей водоснабжения частного дома из кирпича.
6. Типовые схемы системы отопления и водоснабжения дома 297 м.кв.
7. Теплотехнический расчет отопления дома из пустотелого кирпича.
8. Спецификация материалов и оборудования по котельной, отоплению и водоснабжению дома в дер. Дыдылдино.
Объем проекта отопления и водоснабжения кирпичного дома: 36 листов.
Описание проекта отопления, котельной и водоснабжения частного дома 297 м.кв. в дер. Дыдылдино.
Котельная частного дома в дер. Дыдылдино(проект котельной бесплатно).
o Размещена в помещении 1-го этажа дома 297 м.кв.;
o Теплогенератор - настенный газовый котел Baxi Luna 3 Comfort, мощностью 31 кВт;
o Контуры теплоснабжения котельной – радиаторное отопление дома, теплый пол и горячее водоснабжение, для которого предусмотрен накопительный бойлер Baxi, объемом 300 литров;
o Расширительные баки отопления и бойлера Flamco, объемом 35 и 25 литров;
o Циркуляционные насосы отопления и бойлера Grundfos, использованы энергоэффективные насосы UPM3 Hybrid (в составе модуля Kombimix), аналог насосов серии Alpha;
o Дымоудаление принудительное, дымоход коаксиальный, комплект Baxi для прохода через стену, диаметр 60/100 мм;
o Распределительный коллектор - настенный компактный модуль Meibes Kombimix;
o Автоматика котельной – встроена в котел, с дополнительным GSM-термостатом ZONT H-1VB.
Автоматизация котельной, отопления и теплого пола (вариант «Комфортный»).
o Автоматическое регулирование отопления по наружной температуре (погодное регулирование, встроено в котел);
o Дистанционный контроль работы газового котла отопления при помощи GSM-модуля и мобильного приложения ZONT.
Отопление дома в дер. Дыдылдино (проект отопления дома).
o Выполнен теплотехнический расчет отопления дома из кирпича (утеплитель стен и пола - плиты из пеноплекса 50мм, кровли - минеральная вата 100мм) с учетом теплопотерь через ограждающие конструкции при наружной температуре -28°С для Московской области (по СП 131.13330.2012), а также теплоотдачи помещений с теплым полом, расчетный расход тепла на отопление дома составил 22,06 кВт, удельные теплопотери 73,4 Вт/м.кв.;
o Подобраны приборы для отопления дома: панельные стальные радиаторы Kermi с нижним подключением;
o Схема радиаторного отопления дома двухтрубная, коллекторно-лучевая, с принудительной циркуляцией теплоносителя и температурным графиком 80/60°С;
o Трубы отопления из сшитого полиэтилена Rehau;
o Теплоизоляция трубопроводов отопления Энергофлекс, толщиной 9мм;
o Теплоноситель в системе радиаторного отопления дома – подготовленная вода, предусмотрены средства защиты от образования накипи.
Водяной теплый пол дома в дер. Дыдылдино (проект теплого пола).
o Водяной теплый пол в доме предусмотрен на площади 75 м.кв., коллектор теплого пола Valtec;
o Предусмотрен отдельный контур котельной для теплоснабжения водяного теплого пола дома;
o Трубопроводы теплого пола – сшитый полиэтилен Rehau;
o Регулирование температуры теплого пола - общее, контуром котельной.
Внутренний водопровод дома в дер. Дыдылдино (проект водоснабжения).
o Схема внутреннего водоснабжения дома – коллекторно-лучевая, с рециркуляцией горячей воды через водяные полотенцесушители, выполнен расчет 19-ти точек водоснабжения и полотенцесушителей;
o Трубопроводы системы водоснабжения – сшитый полиэтилен Rehau;
o Теплоизоляция трубопроводов Энергофлекс Супер, толщиной 9мм;
o Для летнего водопровода предусмотрено 3 наружных крана Meibes SEPP-Eis с защитой от замерзания.






















