Выполненные проекты
Проект отопления дома в ДНП "Святая Гора"
Объект: двухэтажный частный дом из газобетонных блоков, площадью 180 м.кв. в ДНП "Святая Гора" Чеховского района Московской области
Вариант отопления: «Комфортный»
Цена проекта отопления, канализации и водоснабжения: 25 600 руб. со скидкой 10%, проект котельной - бесплатно.
Проект котельной, отопления, водоснабжения и канализации выполнен: 21.08.2019
Состав проекта котельной, отопления, канализации и водоснабжения дома в ДНП "Святая Гора":
1. Пояснительная записка проекта, общие данные по системам отопления, канализации и водоснабжения дома 180 м.кв. в Московской области.
2. Тепломеханическая схема котельной с размещением оборудования в помещении 1-го этажа дома из газобетонных блоков.
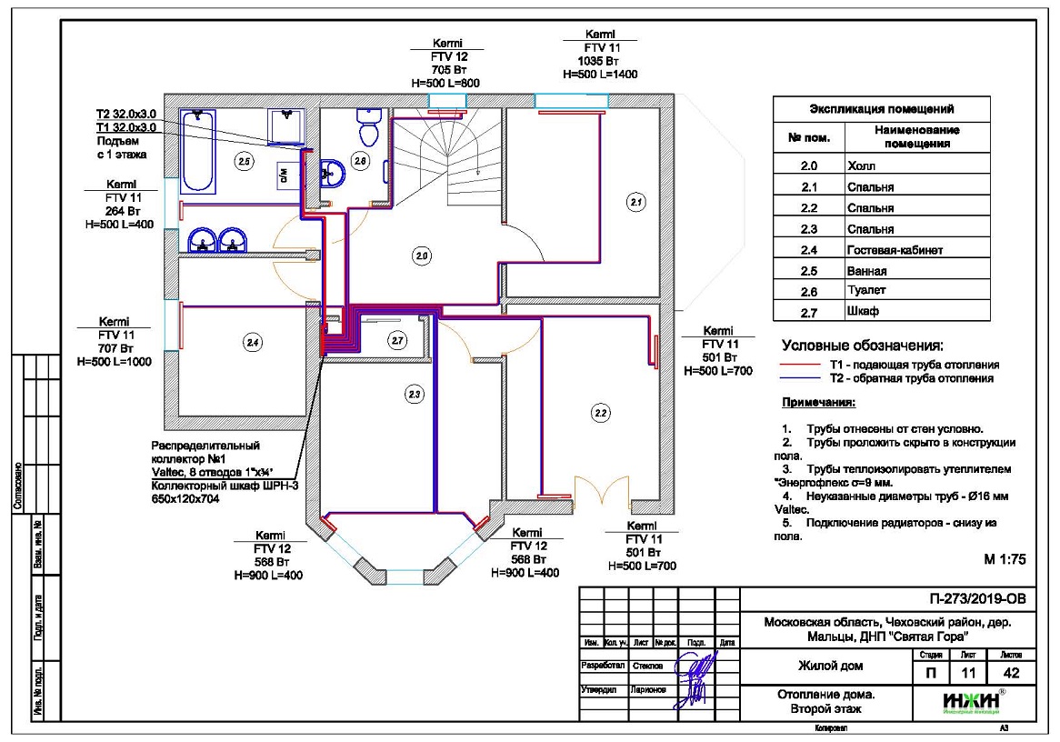
3. Комплект поэтажных чертежей радиаторного отопления дома в ДНП "Святая Гора".
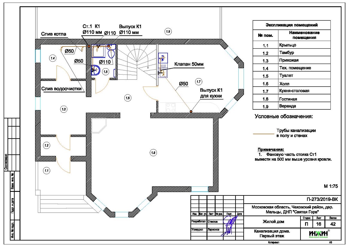
4. Комплект чертежей водоснабжения и канализации частного дома из газобетонных блоков.
5. Типовые схемы системы отопления канализации и водоснабжения дома 180 м.кв.
6. Теплотехнический расчет отопления дома из газобетонных блоков.
7. Спецификация материалов и оборудования по котельной, отоплению, канализации и водоснабжению дома в ДНП "Святая Гора".
Объем проекта отопления, канализации и водоснабжения дома: 38 листов.
Котельная частного дома в ДНП "Святая Гора"(проект котельной бесплатно).
o Размещена в помещении 1-го этажа дома 180 м.кв.;
o Теплогенератор - напольный газовый котел Vaillant, мощностью 31 кВт;
o Контуры теплоснабжения котельной – радиаторное отопление дома, теплый пол и горячее водоснабжение, для которого предусмотрен накопительный бойлер Vaillant, объемом 150 литров;
o Расширительные баки отопления и бойлера Flamco, объемом 18 и 12 литров;
o Циркуляционные насосы отопления и бойлера Grundfos, использованы энергоэффективные насосы UPM3 Hybrid (в составе модуля Kombimix), аналог насосов серии Alpha;
o Дымоудаление естественное, дымоход из нержавеющей стали Rosinox, диаметр 150 мм;
o Распределительный коллектор - настенный компактный модуль Meibes Kombimix;
o Автоматика котельной – встроена в котел.
Автоматизация котельной, отопления и теплого пола (вариант «Комфортный»): автоматическое регулирование отопления по наружной температуре (погодное регулирование, встроено в котел).
Отопление дома в ДНП "Святая Гора" (проект отопления дома).
o Выполнен теплотехнический расчет отопления дома из газобетонных блоков (утеплитель стен и кровли - плиты из минеральной ваты 75 и 200мм, пола - пенополистирол 100мм) с учетом теплопотерь через ограждающие конструкции при наружной температуре -28°С для Московской области (по СП 131.13330.2012), а также теплоотдачи помещений с теплым полом, расчетный расход тепла на отопление дома составил 12,13 кВт, удельные теплопотери 67,4 Вт/м.кв.;
o Подобраны приборы для отопления дома: стальные панельные радиаторы KERMI с нижним подключением;
o Схема радиаторного отопления дома двухтрубная, коллекторно-лучевая, с принудительной циркуляцией теплоносителя и температурным графиком 80/60°С;
o Трубы отопления из металлопластика Valtec;
o Теплоизоляция трубопроводов отопления Энергофлекс, толщиной 9мм;
o Теплоноситель в системе радиаторного отопления дома – подготовленная вода, предусмотрены средства защиты от образования накипи.
Водяной теплый пол дома в ДНП "Святая Гора" (проект теплого пола).
o Водяной теплый пол в доме предусмотрен на площади 52 м.кв., коллектор теплого пола Valtec на 4 отвода, всего 4 петли;
o Предусмотрен отдельный контур котельной для теплоснабжения водяного теплого пола дома в ДНП "Святая Гора";
o Трубопроводы теплого пола – сшитый полиэтилен Valtec;
o Регулирование температуры теплого пола - общее, контуром котельной.
Внутренний водопровод дома в ДНП "Святая Гора" (проект водоснабжения).
o Схема внутреннего водоснабжения дома – коллекторно-лучевая с рециркуляцией горячей воды через водяные полотенцесушители, выполнен расчет 26-и точек водоснабжения и полотенцесушителей;
o Трубопроводы системы водоснабжения – из металлопластика Valtec;
o Теплоизоляция трубопроводов Энергофлекс Супер, толщиной 9мм.
Внутренняя канализация (проект канализации) дома в ДНП "Святая Гора".
o Безнапорная, отвод стоков от санитарно-технических приборов предусмотрен в септик;
o Произведен расчет 14-ти точек бытовой канализации;
o Канализационные трубы Синикон, раструбные, из полипропилена.
Заказать в нашей компании проект отопления, водоснабжения и канализации загородного дома в Московской области со скидкой.
Для этого дома площадью 180 м.кв. выполнен проект электрики.






















