Выполненные проекты
Проект отопления дома 130 м.кв. в Москве
Объект: двухэтажный частный дом со стенами по технологии VELOX, площадью 130 м.кв. в Москве (КП "Сатинские Пруды")
Цена проекта отопления, канализации и водоснабжения: 18 270 руб. со скидкой 10%, проект котельной - бесплатно.
Проект котельной, отопления, водоснабжения и канализации выполнен: 04.11.2019
Состав проекта котельной, отопления, канализации и водоснабжения дома в КП "Сатинские Пруды":
1. Пояснительная записка проекта, общие данные по системам отопления, канализации и водоснабжения дома 130 м.кв. в Москве.
2. Тепломеханическая схема котельной с размещением оборудования в помещении 1-го этажа дома в Москве.
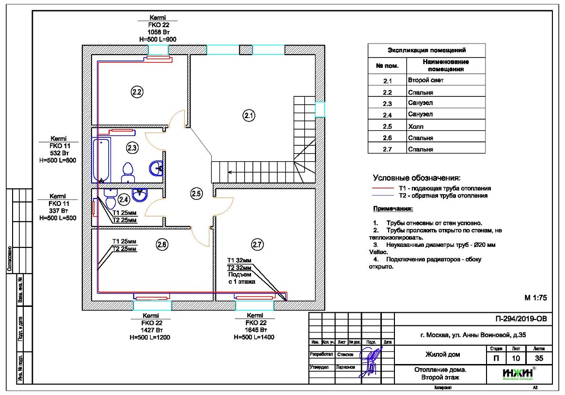
3. Комплект поэтажных чертежей радиаторного отопления дома в КП "Сатинские Пруды".
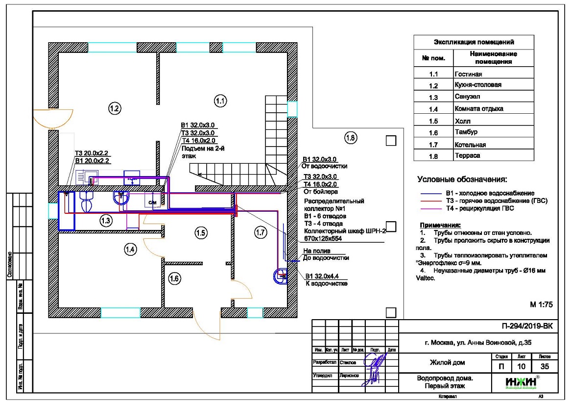
4. Комплект чертежей водоснабжения и канализации частного дома в Москве.
5. Типовые схемы системы отопления канализации и водоснабжения дома 130 м.кв.
6. Теплотехнический расчет отопления дома в Москве.
7. Спецификация материалов и оборудования по котельной, отоплению, канализации и водоснабжению дома в КП "Сатинские Пруды".
Объем проекта отопления, канализации и водоснабжения дома: 35 листов.
Описание проекта отопления, котельной, канализации и водоснабжения частного дома 130 м.кв. в КП "Сатинские Пруды".
Котельная частного дома в КП "Сатинские Пруды"(проект котельной бесплатно).
o Размещена в помещении 1-го этажа дома 130 м.кв.;
o Теплогенератор - настенный газовый котел Baxi Luna 3 Comfort 1.240 Fi, мощностью 24 кВт;
o Контуры теплоснабжения котельной – радиаторное отопление дома и горячее водоснабжение, для которого предусмотрен накопительный бойлер Drazice, объемом 125 литров со встроенным электрическим нагревательным элементом;
o Расширительные баки отопления и бойлера Flamco, объемом 18 литров каждый;
o Циркуляционный насос отопления и бойлера Grundfos, встроен в котел;
o Дымоудаление принудительное, дымоход коаксиальный, комплект Baxi для прохода через кровлю, диаметр 60/100 мм;
o Распределительный коллектор не предусмотрен;
o Автоматика котельной – встроена в котел.
Автоматизация котельной и отопления (вариант «Базовый»): автоматическое регулирование отопления по наружной температуре (погодное регулирование, встроено в котел).
Отопление дома в КП "Сатинские Пруды" (проект отопления дома).
o Выполнен теплотехнический расчет отопления дома со стенами по технологии VELOX (несъемная опалубка, утеплитель кровли - плиты из минеральной ваты 200мм, стен и пола - пенопласт 150мм) с учетом теплопотерь через ограждающие конструкции при наружной температуре -28°С для Московской области (по СП 131.13330.2012), расчетный расход тепла на отопление дома составил 13,8 кВт, удельные теплопотери 98,9 Вт/м.кв.;
o Подобраны приборы для отопления дома: стальные панельные радиаторы KERMI с нижним и боковым подключением;
o Схема радиаторного отопления дома комбинированная - коллекторно-лучевая для 1 этажа и двухтрубная для 2-го этажа, с принудительной циркуляцией теплоносителя и температурным графиком 80/60°С;
o Трубы отопления из металлопластика Valtec;
o Теплоизоляция трубопроводов отопления Энергофлекс, толщиной 9мм;
o Теплоноситель в системе радиаторного отопления дома – подготовленная вода, предусмотрены средства защиты от образования накипи.
Водяной теплый пол дома в КП "Сатинские Пруды" проектом не предусмотрен.
Внутренний водопровод дома в КП "Сатинские Пруды"(проект водоснабжения).
o Схема внутреннего водоснабжения дома – коллекторно-лучевая (для 1 этажа), тройниковая (2 этаж) с рециркуляцией горячей воды через водяные полотенцесушители, выполнен расчет 21-й точки водоснабжения и полотенцесушителей;
o Трубопроводы системы водоснабжения – из металлопластика Valtec;
o Теплоизоляция трубопроводов Энергофлекс Супер, толщиной 9мм.
Внутренняя канализация (проект канализации) дома в КП "Сатинские Пруды".
o Безнапорная, отвод стоков от санитарно-технических приборов предусмотрен в септик;
o Произведен расчет 11-ти точек бытовой канализации;
o Канализационные трубы Синикон, раструбные, из полипропилена.
Заказать в нашей компании проект отопления, водоснабжения и канализации загородного дома в Москве со скидкой.
Для этого дома площадью 130 м.кв. выполнен проект электрики.



















