Выполненные проекты
Проект отопления дома в СНТ «Царские берега»
Объект: загородный дом из бревна, площадью 172 м.кв., расположенный в СНТ «Царские берега» Московской области (Можайск)
Вариант отопления: «Комфортный»
Цена проекта отопления, канализации и водоснабжения: 38 052 руб. со скидкой 10%, проект котельной - бесплатно.
Проект котельной, отопления, водоснабжения и канализации выполнен: 08.2.2021
Состав проекта котельной, отопления, канализации и водоснабжения дома в СНТ «Царские берега»:
1. Пояснительная записка проекта, общие данные по системам отопления, канализации и водоснабжения дома 172 м.кв. в СНТ «Царские берега».
2. Тепломеханическая схема котельной с размещением оборудования в отдельном помещении дома из бревна.
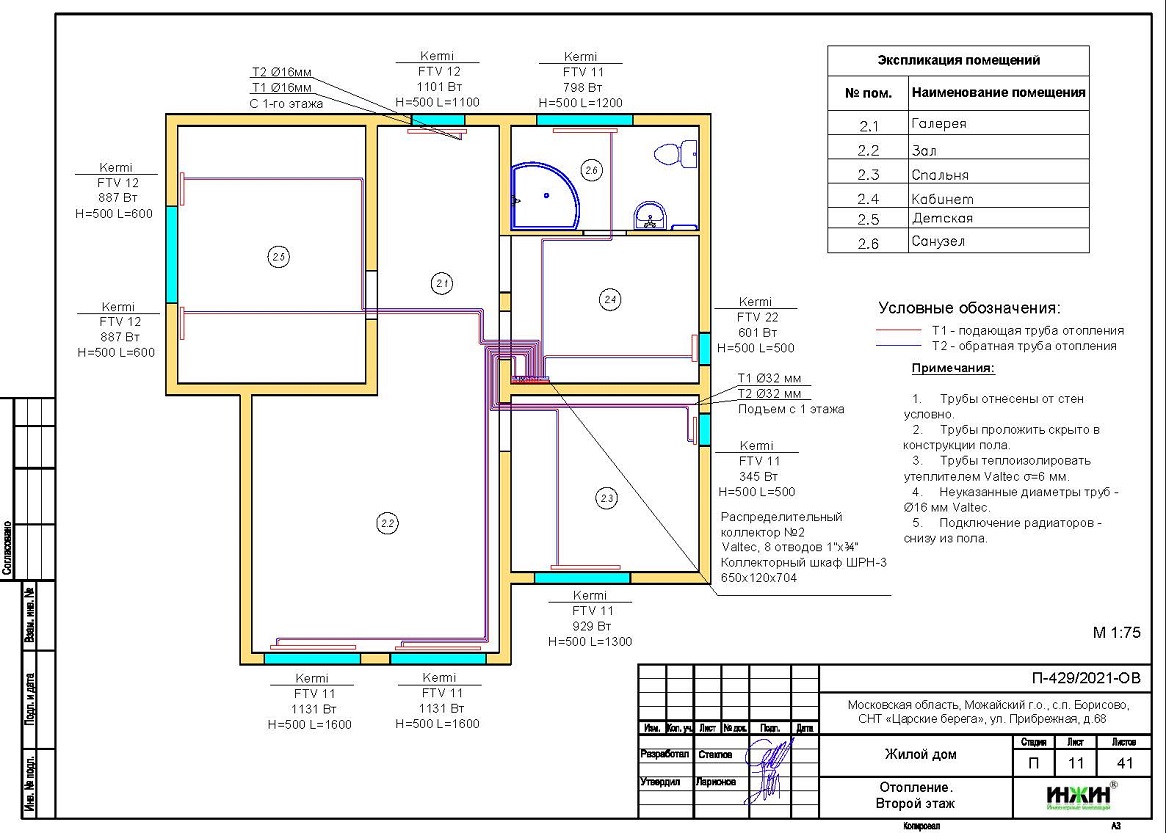
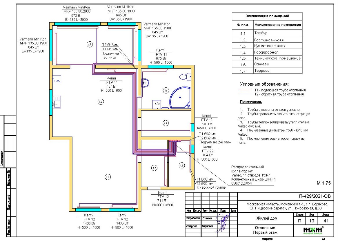
3. Комплект поэтажных чертежей радиаторного отопления дома в СНТ «Царские берега».
4. Комплект чертежей теплого пола на площади 34 м.кв.
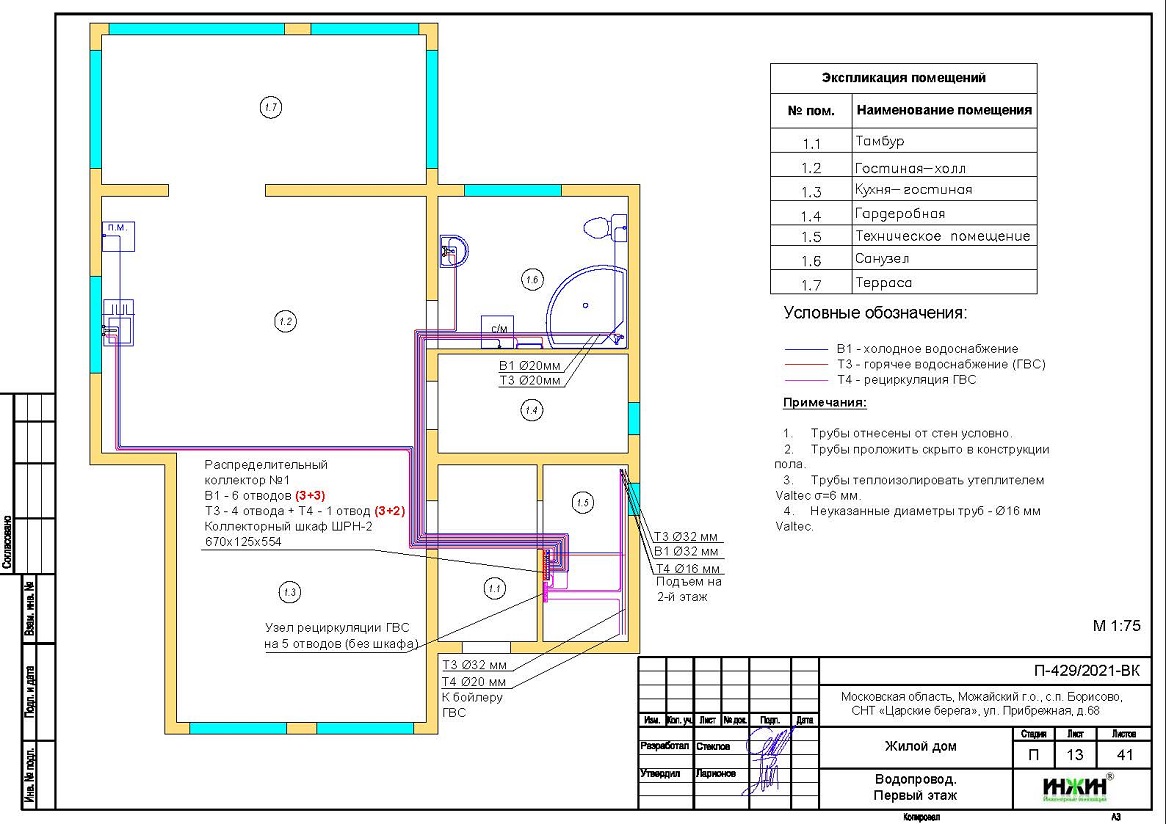
5. Комплект чертежей водоснабжения и канализации частного дома из бревна в СНТ «Царские берега».
6. Типовые схемы системы отопления канализации и водоснабжения дома 172 м.кв.
7. Теплотехнический расчет отопления дома из бревна.
8. Спецификация материалов и оборудования по котельной, отоплению, канализации и водоснабжению дома в СНТ «Царские берега».
Объем проекта отопления, канализации и водоснабжения дома в СНТ «Царские берега»: 41 лист.
Описание проекта отопления, котельной, канализации и водоснабжения частного дома 172 м.кв. в СНТ «Царские берега».
Котельная частного дома в СНТ «Царские берега»(проект котельной бесплатно).
o Размещена в отдельном помещении дома 172 м.кв.;
o Теплогенератор - настенный газовый котел Protherm Пантера, мощностью 25 кВт;
o Контуры теплоснабжения котельной – радиаторное отопление дома, теплый пол и горячее водоснабжение, для которого предусмотрен накопительный бойлер Protherm, объемом 200 литров (подключение к котлу);
o Расширительные баки отопления и бойлера Flamco, объемом 18 литров каждый;
o Дымоудаление принудительное, дымоход коаксиальный, с проходом через кровлю;
o Распределительный коллектор - компактный модуль Meibes Kombimix;
o Автоматика котельной – встроена в котел с дополнительным GSM-модулем.
Отопление дома в СНТ «Царские берега» (проект отопления дома).
o Выполнен теплотехнический расчет отопления дома из бревна (утеплитель кровли - базальтовая вата 200мм) с учетом теплопотерь через ограждающие конструкции при наружной температуре -28°С для Московской области (по СП 131.13330.2012), расчетный расход тепла на отопление дома составил 18,39 кВт, удельные теплопотери 95,0 Вт/м.кв.;
o Подобраны приборы для отопления дома: стальные панельные радиаторы Kermi с нижним подключением, а также напольные конвекторы Varmann MiniKon;
o Схема радиаторного отопления дома двухтрубная, коллекторно-лучевая, с принудительной циркуляцией теплоносителя и температурным графиком 80/60°С;
o Трубы отопления из металлопластика Valtec;
o Теплоизоляция трубопроводов отопления Valtec, толщиной 6мм;
o Теплоноситель в системе радиаторного отопления дома – подготовленная вода, предусмотрены средства защиты от образования накипи.
Водяной теплый пол дома в СНТ «Царские берега» (проект теплого пола).
o Водяной теплый пол в доме предусмотрен на площади 34 м.кв., коллектор теплого пола Valtec на 4 отвода;
o Предусмотрен насосно-смесительный узел для теплоснабжения водяного теплого пола дома - в составе модуля Kombimix;
o Трубопроводы теплого пола – сшитый полиэтилен Valtec;
o Регулирование температуры теплого пола - общее, регулятором на смесительной группе, а также локальное - по помещениям, при помощи комнатных термостатов и электромеханических сервоприводов.
Внутренний водопровод дома в СНТ «Царские берега» (проект водоснабжения).
o Схема внутреннего водоснабжения дома – коллекторно-лучевая с рециркуляцией горячей воды через водяные полотенцесушители, выполнен расчет 18-ти точек водоснабжения и полотенцесушителей;
o Трубопроводы системы водоснабжения – из металлопластика Valtec;
o Теплоизоляция трубопроводов Valtec, толщиной 6мм;
o Для летнего водопровода предусмотрен незамерзающий кран Meibes SEPP-Eis.
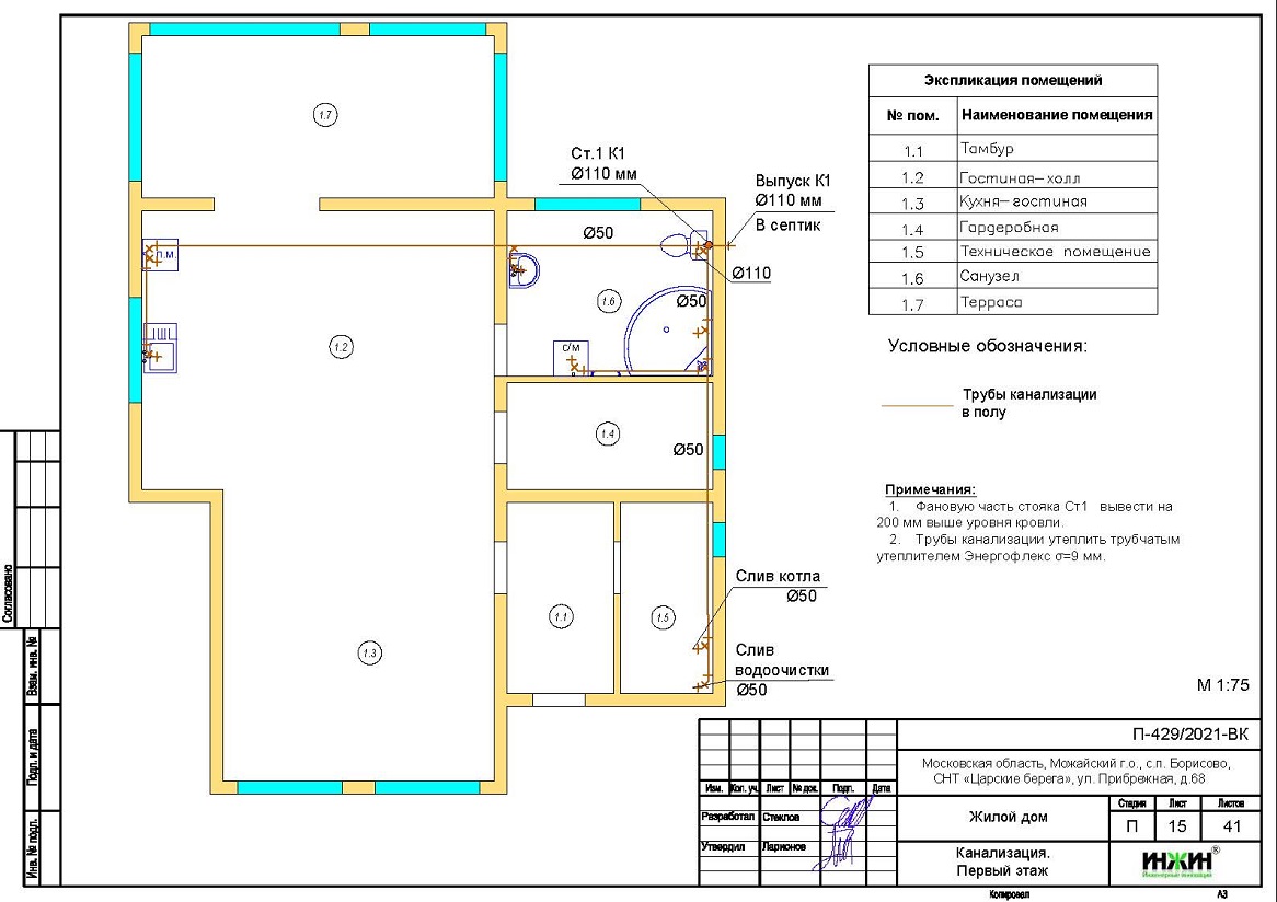
Внутренняя канализация (проект канализации) дома в СНТ «Царские берега».
o Безнапорная, отвод стоков от санитарно-технических приборов предусмотрен в септик;
o Произведен расчет 11-ти точек бытовой канализации;
o Канализационные трубы Синикон, раструбные, из полипропилена.
Заказать в нашей компании проект отопления, водоснабжения и канализации загородного дома дистанционно со скидкой.
Для этого загородного дома в СНТ «Царские берега» выполнен проект электрики.






















