Выполненные проекты
Проект отопления дома 160 м.кв. (из газоблоков)
Объект: двухэтажный частный дом из газоблоков, площадью 160 м.кв., расположенный в СНТ "Лукошкино" Раменского района Московской области
Вариант отопления: «Комфортный»
Цена проекта отопления: 38 160 руб. со скидкой 10%, проект котельной - бесплатно.
Проект котельной и отопления выполнен: 12.12.2022
Состав проекта котельной, отопления и теплого пола дома в СНТ "Лукошкино":
1. Пояснительная записка проекта, общие данные по системе отопления дома 160 м.кв. в СНТ "Лукошкино".
2. Тепломеханическая схема котельной с размещением оборудования в отдельном помещении дома из газоблоков.
3. Комплект поэтажных чертежей радиаторного отопления дома в СНТ "Лукошкино".
4. Комплект чертежей теплого пола на площади 70 м.кв.
5. Типовые схемы системы отопления и водоснабжения дома 160 м.кв.
6. Теплотехнический расчет отопления дома из газоблоков.
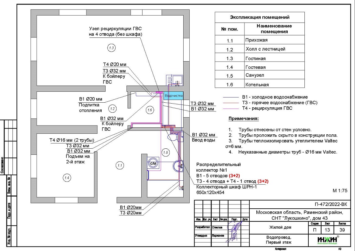
7. Комплект поэтажных чертежей систем водоснабжения и канализации дома в СНТ "Лукошкино".
8. Спецификация материалов и оборудования по котельной и отоплению дома в СНТ "Лукошкино".
Объем проекта отопления дома в СНТ "Лукошкино": 39 листов.
Описание проекта отопления, котельной, водоснабжения, канализации и теплого пола частного дома 160 м.кв. в СНТ "Лукошкино".
Котельная частного дома в СНТ "Лукошкино"(проект котельной бесплатно).
o Размещена в отдельном помещении дома 160 м.кв.;
o Теплогенераторы - основной настенный газовый котел Лемакс Prime-V24 HO, мощностью 24 кВт, резервный - электрический котел ZOTA MK, мощностью 12 кВт;
o Контуры теплоснабжения котельной – радиаторное отопление дома, теплый пол и горячее водоснабжение, для которого предусмотрен накопительный бойлер STOUT, объемом 150 литров (подключение к котлам);
o Расширительные баки отопления и бойлера Flamco, объемом 18 литров каждый;
o Дымоудаление принудительное, дымоход раздельный Лемакс, диаметр 80/80 мм, размещение - в строительной шахте;
o Распределительный коллектор - в котельной не предусмотрен;
o Автоматика котельной – контроллер ZONT H-1V.02 со встроенным GSM-модулем.
Отопление дома в СНТ "Лукошкино" (проект отопления дома).
o Выполнен теплотехнический расчет отопления дома из газоблоков (утеплитель кровли - базальтовая вата 200мм) с учетом теплопотерь через ограждающие конструкции при наружной температуре -28°С для Московской области (по СП 131.13330.2012), расчетный расход тепла на отопление дома составил 14,78 кВт, удельные теплопотери 116,4 Вт/м.кв.;
o Подобраны приборы для отопления дома: стальные панельные радиаторы Kermi с нижним подключением, в вентильном исполнении;
o Схема радиаторного отопления дома двухтрубная, коллекторно-лучевая, с принудительной циркуляцией теплоносителя и температурным графиком 80/60°С;
o Трубы отопления из металлопластика Valtec;
o Теплоизоляция трубопроводов отопления Valtec, толщиной 6мм;
o Теплоноситель в системе радиаторного отопления дома – подготовленная вода, предусмотрены средства защиты от образования накипи.
Водяной теплый пол дома в СНТ "Лукошкино" (проект теплого пола).
o Водяной теплый пол в доме предусмотрен на площади 70 м.кв., коллектор теплого пола Valtec на 6 отводов;
o Предусмотрен насосно-смесительный узел для теплоснабжения водяного теплого пола дома (на контуре отопления);
o Трубопроводы теплого пола – сшитый полиэтилен Valtec;
o Регулирование температуры теплого пола - общее, регулятором на смесительном узле.
Внутренний водопровод дома в СНТ "Лукошкино" (проект водоснабжения).
o Схема внутреннего водоснабжения дома – коллекторно-лучевая с рециркуляцией горячей воды через полотенцесушители, выполнен расчет 19-и точек водоснабжения и полотенцесушителей;
o Трубопроводы системы водоснабжения – из металлопластика Valtec;
o Теплоизоляция трубопроводов Valtec, толщиной 6мм.
Внутренняя канализация (проект канализации) дома в СНТ "Лукошкино".
o Безнапорная, отвод стоков от санитарно-технических приборов предусмотрен в септик;
o Произведен расчет 11-и точек бытовой канализации;
o Канализационные трубы Синикон, раструбные, из полипропилена, утепленные трубчатым утеплителем Энергофлекс Супер, 9мм.
Заказать в нашей компании проект отопления, водоснабжения и канализации загородного дома дистанционно со скидкой.
Для этого дома выполнен проект электроснабжения и освещения (электрики).






















