Выполненные проекты
Проект отопления дома в Ярославской области
Объект: частный одноэтажный каркасный дом, общей площадью 130 м.кв., расположенный в г. Рыбинск Ярославской области
Вариант отопления:«Комфортный»
Цена проекта отопления: 29 016 руб. со скидкой 10%, проект котельной - бесплатно.
Проект котельной и отопления выполнен: 14.05.2024
Состав проекта котельной, отопления, водоснабжения, канализации и теплого пола дома в Рыбинске.
1. Пояснительная записка проекта, общие данные по системе отопления дома 130 м.кв. в Рыбинске.
2. Тепломеханическая схема котельной с размещением оборудования в отдельном помещении каркасного дома.
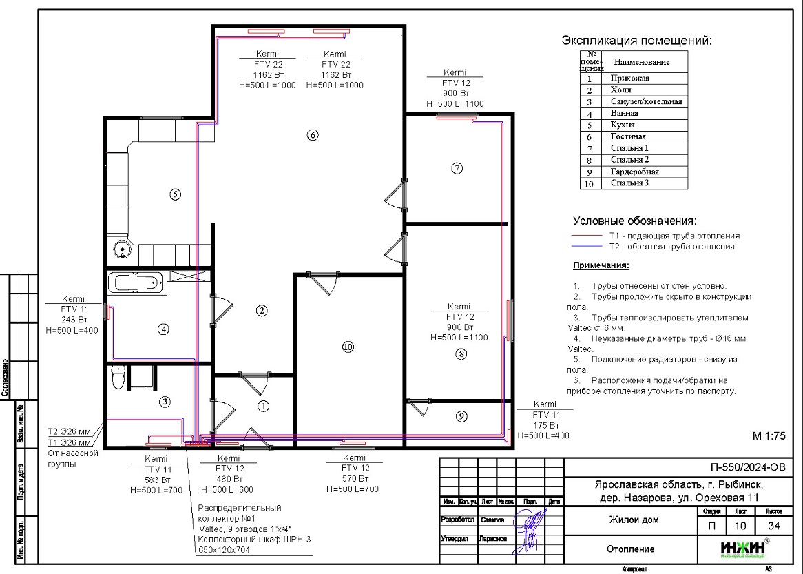
3. Комплект поэтажных чертежей радиаторного отопления дома в Рыбинске.
4. Комплект чертежей теплого пола на площади 69 м.кв.
5. Комплект чертежей водоснабжения и канализации частного дома в Рыбинске.
6. Типовые схемы системы отопления канализации и водоснабжения дома 130 м.кв.
7. Теплотехнический расчет отопления каркасного дома.
8. Спецификация материалов и оборудования по котельной, отоплению, канализации и водоснабжению дома в Рыбинске.
Объем проекта отопления дома в Рыбинске: 34 листа.
Описание проекта отопления, водоснабжения, канализации и котельной частного дома 130 м.кв. в Рыбинске.
Котельная частного дома в Рыбинске(проект котельной бесплатно).
o Размещена в отдельном помещении дома 130 м.кв.;
o Теплогенератор - настенный газовый котел BAXI Eco Lifeмощностью 24 кВт;
o Контуры теплоснабжения котельной – радиаторное отопление дома, теплый пол и горячее водоснабжение, для которого предусмотрен накопительный бойлер STOUT, объемом 150 литров;
o Расширительные баки отопления и бойлера Flamco, объемом 18 и 12 литров, соответственно;
o Дымоход коаксиальный, в исполнении "через стену";
o Распределительный коллектор в котельной - STOUT, со встроенной гидрострелкой;
o Автоматика котельной встроена в котел.
Отопление дома в Рыбинске (проект отопления дома).
o Выполнен теплотехнический расчет отопления каркасного дома (утеплитель стен, пола и кровли - минвата 200 мм) с учетом теплопотерь через ограждающие конструкции при наружной температуре -31°С для Ярославской области (по СП 131.13330.2012), расчетный расход тепла на отопление дома составил 8,97 кВт, удельные теплопотери 81,5 Вт/м.кв.;
o Подобраны приборы для отопления дома: стальные панельные радиаторы Kermi с нижним подключением;
o Схема радиаторного отопления дома коллекторно-лучевая, с принудительной циркуляцией теплоносителя и температурным графиком 80/60°С;
o Трубы отопления из металлопластика Valtec;
o Теплоизоляция трубопроводов отопления Valtec, толщиной 6мм;
o Теплоноситель в системе радиаторного отопления дома – подготовленная вода.
Водяной теплый пол дома в Рыбинске (проект теплого пола).
o Водяной теплый пол в доме предусмотрен на площади 69 м.кв., 8 петель, коллектор теплого пола Valtec на 8 отводов;
o Предусмотрен насосно-смесительный узел для теплоснабжения водяного теплого пола в котельной;
o Трубопроводы теплого пола – сшитый полиэтилен Valtec, основание - плиты пенополистирольные с покрытием и фиксирующими бобышками EasyFix L (Формат);
o Регулирование температуры теплого пола - общее, на смесительном узле, а также локальное, по помещениям, при помощи комнатных термостатов Valtec.
Внутренний водопровод дома в Рыбинске (проект водоснабжения).
o Схема внутреннего водоснабжения дома – коллекторно-лучевая с рециркуляцией горячей воды через водяные полотенцесушители, выполнен расчет 14-ти точек водоснабжения и полотенцесушителей;
o Трубопроводы системы водоснабжения – из металлопластика Valtec;
o Теплоизоляция трубопроводов Valtec, толщиной 6мм.
Внутренняя канализация (проект канализации) дома в Рыбинске.
o Безнапорная, отвод стоков от санитарно-технических приборов предусмотрен в септик;
o Произведен расчет 8-ми точек бытовой канализации;
o Канализационные трубы Синикон, раструбные, из полипропилена.
Заказать в нашей компании проект отопления, водоснабжения и канализации загородного дома дистанционно со скидкой.
Для этого дома в Рыбинскевыполнен проект электроснабжения и освещения.



















