Выполненные проекты
Проект отопления частного бассейна площадью 292 м.кв.
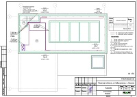
Объект: частный бассейн из блоков Porotherm 51, с гаражом (отдельное строение), общей площадью 292 м.кв., расположенный в с. Ласково Рязанской области
Вариант отопления: «Комфортный+»
Цена проекта отопления, канализации и водоснабжения: 69 145 руб. со скидкой 10%, проект котельной - бесплатно.
Проект котельной, отопления, водоснабжения и канализации выполнен: 28.05.2025
Состав проекта котельной, отопления, канализации и водоснабжения частного бассейна в с. Ласково Рязанской области:
1. Пояснительная записка проекта, общие данные по системам отопления, канализации и водоснабжения частного бассейна 292 м.кв. в с. Ласково Рязанской области.
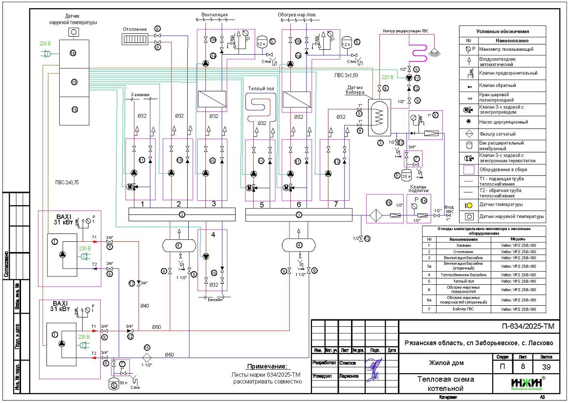
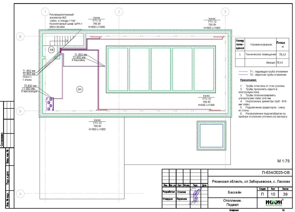
2. Тепломеханическая схема котельной с размещением оборудования в отдельном помещении частного бассейна из блоков Porotherm 51.
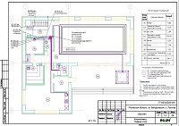
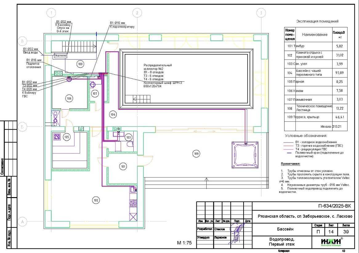
3. Комплект поэтажных чертежей радиаторного отопления частного бассейна в с. Ласково Рязанской области.
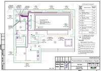
4. Комплект чертежей теплого пола на площади 161 м.кв.
5. Комплект чертежей водоснабжения и канализации частного бассейна из блоков Porotherm 51 в с. Ласково Рязанской области.
6. Типовые схемы системы отопления канализации и водоснабжения частного бассейна 292 м.кв.
7. Теплотехнический расчет отопления частного бассейна из блоков Porotherm.
8. Спецификация материалов и оборудования по котельной, отоплению, канализации и водоснабжению частного бассейна в с. Ласково Рязанской области.
Объем проекта отопления, канализации и водоснабжения частного бассейна в с. Ласково Рязанской области: 38 листов.
Описание проекта отопления, котельной, канализации и водоснабжения частного бассейна 292 м.кв. в с. Ласково Рязанской области
Котельная частного бассейна в с. Ласково Рязанской области(проект котельной бесплатно).
o Размещена в отдельном помещении первого этажа частного бассейна 292 м.кв.;
o Теплогенераторы - настенные газовые котлы Baxi LUNA-3, 2 шт., мощностью 31 кВт каждый;
o Контуры теплоснабжения котельной – радиаторное отопление бассейна, теплый пол, теплоснабжение хаммама, теплоснабжение теплообменника бассейна, теплоснабжение вентиляции, обогрев террасы и горячее водоснабжение, для которого предусмотрен накопительный бойлер STOUT, объемом 300 литров (подключение к коллектору);
o Расширительные баки отопления и бойлера Flamco, объемом 50 и 25 литров, соответственно;
o Дымоудаление принудительное, дымоход коаксиальный, диаметром 60/100 мм, через кровлю здания, отдельно для каждого котла;
o Распределительные коллекторы - STOUT с насосными группами;
o Автоматика котельной – контроллер ZONT Climatic 1.3 со встроенным GSM-модулем и дополнительными блоками расширения.
Отопление частного бассейна в с. Ласково Рязанской области (проект отопления частного бассейна).
o Выполнен теплотехнический расчет отопления частного бассейна (утеплитель кровли - XPS CARBON PROF 100мм) с учетом теплопотерь через ограждающие конструкции при наружной температуре -25°С для Рязанской области (по СП 131.13330.2012), расчетный расход тепла на отопление дома составил 19,06 кВт, удельные теплопотери 78,6 Вт/м.кв.;
o Подобраны приборы для отопления частного бассейна: стальные панельные радиаторы Kermi с нижним подключением, а также встроенные в пол конвекторы Varmann c естественной конвекцией;
o Схема радиаторного отопления частного бассейна двухтрубная, коллекторно-лучевая, с принудительной циркуляцией теплоносителя и температурным графиком 80/60°С;
o Трубы отопления из сшитого полиэтилена Valtec;
o Теплоизоляция трубопроводов отопления Valtec, толщиной 6мм;
o Теплоноситель в системе радиаторного отопления частного бассейна – подготовленная вода, в контурах вентиляции и обогрева террасы - незамерзающая жидкость.
Водяной теплый пол частного бассейна в с. Ласково Рязанской области (проект теплого пола).
o Водяной теплый пол в частном бассейне предусмотрен на площади 161 м.кв., коллектор теплого пола Valtec на 11, отводов (всего 14 петель), обогрев наружных поверхностей (террасы) - 4 петли;
o Предусмотрен насосно-смесительный узел для теплоснабжения водяного теплого пола частного бассейна;
o Трубопроводы теплого пола – сшитый полиэтилен Valtec;
o Регулирование температуры теплого пола - общее, регулятором на смесительной группе и локальное, по помещениям, при помощи электронных комнатных термостатов Valtec с Wi-Fi (обзор которых публиковали на нашем сайте в разделе новинок).
Внутренний водопровод частного бассейна в с. Ласково Рязанской области (проект водоснабжения).
o Схема внутреннего водоснабжения частного бассейна– коллекторно-лучевая с рециркуляцией горячей воды через водяные полотенцесушители и коллекторы, выполнен расчет 18-и точек водоснабжения и полотенцесушителей;
o Трубопроводы системы водоснабжения – из сшитого полиэтилена Valtec;
o Теплоизоляция трубопроводов Valtec, толщиной 6мм;
o Для летнего водопровода предусмотрен незамерзающий кран Arrowhead.
Внутренняя канализация (проект канализации) частного бассейна в с. Ласково Рязанской области.
o Безнапорная, отвод стоков от санитарно-технических приборов предусмотрен в септик;
o Произведен расчет 10-и точек бытовой канализации;
o Канализационные трубы Синикон, раструбные.



















