Новости компании
Разработаны проекты отопления и электрики дома 318 м.кв.
Для загородного дома со стенами из полистиролбетона (утеплитель кровли - минеральная вата 200мм), площадью 318 м.кв., расположенного в дер. Давыдово, разработаны проекты внутренних инженерных систем: электрики, отопления и водоснабжения.
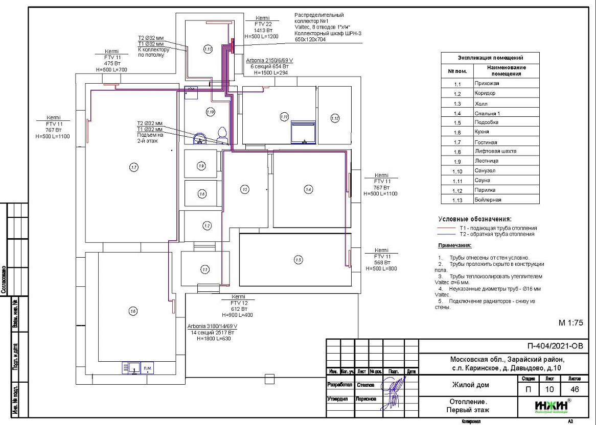
В проекте отопления, канализации и водоснабжения, по заданию Заказчика, предусмотрены следующие основные технические решения:
- Вариант отопления «Комфортный», с системой управления котельной ZONT-Climatic 1.2 со встроенным GSM-модулем для удаленного управления при помощи мобильного приложения;
- Индивидуальная котельная с каскадом из двух настенных котлов - газового Vaillant turboTEC plus, мощностью 28 кВт, и электрического - Protherm Скат, мощностью 12 кВт;
- Контуры теплоснабжения дома – 3 шт. (отопление, теплый пол и горячее водоснабжение);
- Выполнен расчет отопления, расход тепла на отопление составил - 24,16 кВт, удельные теплопотери 76,4 Вт/м.кв.;
- Отопление и водоснабжение дома в Московской области предусмотрены по коллекторно-лучевой схеме, с трубопроводами из металлопластика Valtec;
- Приборы для системы отопления дома - стальные дизайн-радиаторы Гармония (КЗТО) с нижним подключением;
- Водяной теплый пол проектом предусмотрен на площади 230 м.кв., 17 петель;
- Водоснабжение предусмотрено с рециркуляцией горячей воды через полотенцесушители, выполнен расчет 20-и точек внутреннего водопровода и 16-ти точек канализации.
Стоимость проекта отопления и водоснабжения дома в дер. Давыдово- 82 386 руб. со скидкой 10%, проект котельной бесплатно, объем проекта 46 листов.

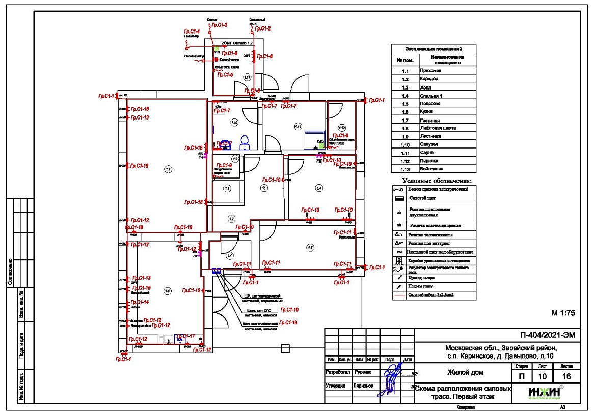
Проект электрики дома в дер. Давыдово содержит следующие технические решения:
- Выполнен расчет схемы электроснабжения, электрическая мощность дома составила 28,11 кВт, с учетом коэффициента спроса 0,48, принятого согласно СП 256.1325800.2016;
- Автоматические выключатели (УЗО) в количестве 42 шт., которые размещены в распределительном щите ABB (встраиваемый корпус);
- Электропроводка предусмотрена скрытым способом, в конструкции стен и пола дома;
- Общая протяженность электропроводки 1557 метров;
- Резервное электропитание дома с использованием однофазного инвертора CyberPower мощностью 5 кВт.
Цена проекта электрики – 38 065 руб. со скидкой 10%. Объем проекта электрики – 16 листов.
Подробное описание выполненного проекта электрики дома в дер. Давыдово.

Заказать проект электрики частного дома дистанционно.
15 октября 2021 года
- Информация о материале
- Просмотров: 1866














