Новости компании
Разработаны проекты инженерных систем дома 337 м.кв.
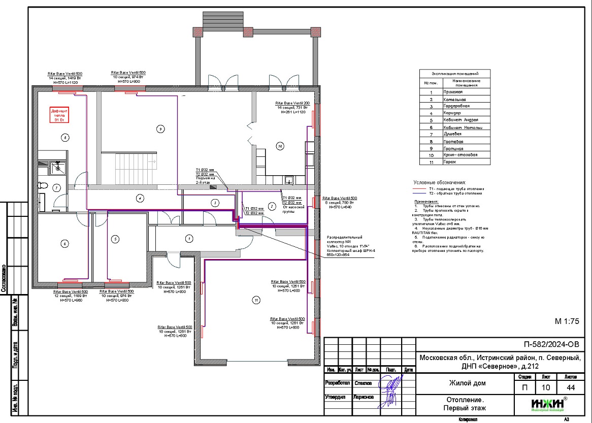
Для загородного дома со стенами из газобетона (утеплитель кровли - минвата 250мм), площадью 337 м.кв., расположенного в ДНП «Северное» Московской области, разработаны проекты внутренних инженерных систем: электрики, котельной и отопления.
В проекте отопления, по заданию Заказчика, предусмотрены следующие основные технические решения:
- Вариант отопления «Комфортный», с контроллером ZONT Climatic 1.2со встроенным GSM-модулем;
- Индивидуальная котельная с напольным газовым котлом BAXI Slim, мощностью 48 кВт;
- Контуры теплоснабжения дома – радиаторное отопление дома, теплый пол дома и горячее водоснабжение, для которого предусмотрен накопительный бойлер STOUT, объемом 300 литров;
- Выполнен расчет отопления, расход тепла на отопление составил - 23,7 кВт, удельные теплопотери 69 Вт/м.кв.;
- Отопление и водоснабжение дома в ДНП «Северное» Московской области предусмотрены по коллекторно-лучевой схеме, с трубопроводами из сшитого полиэтилена Valtec;
- Приборы для системы отопления дома - стальные панельные радиаторы Kermiи секционные биметаллические радиаторы RIFAR BASE с нижним подключением, водяной теплый пол в доме предусмотрен на площади 90 м.кв. (9 петель);
- Выполнен расчет 22-х точек водоснабжения и полотенцесушителей и 12-ти точек бытовой канализации.
Стоимость проекта отопления дома в ДНП «Северное»- 72 902 руб. со скидкой 10%, проект котельной бесплатно, объем проекта 44 листа.

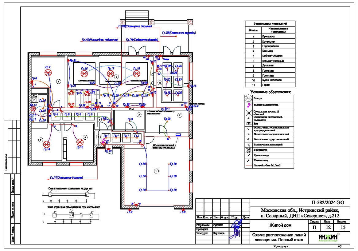
Проект электрики дома в ДНП «Северное» Московской областисодержит следующие технические решения:
- Выполнен расчет схемы электроснабжения, электрическая мощность дома составила 18,31 кВт, с учетом коэффициента спроса 0,5, принятого согласно СП 256.1325800.2016;
- Автоматические выключатели (УЗО) в количестве 27 шт., которые размещены в распределительном щите ABB;
- Электропроводка предусмотрена скрытым способом, в полу и стенах дома;
- Общая протяженность электропроводки 1450 метров;
- Резервное электропитание дома не предусмотрено.
Цена проекта электрики – 43 979 руб. со скидкой 10%. Объем проекта электрики – 15 листов.
Подробное описание выполненного проекта электрики дома в ДНП «Северное».

Заказать проект электрики частного дома дистанционно.
19 ноября 2024 года
- Информация о материале
- Просмотров: 3382














