Новости компании
Выполнен проект отопления для дома 240 м.кв.
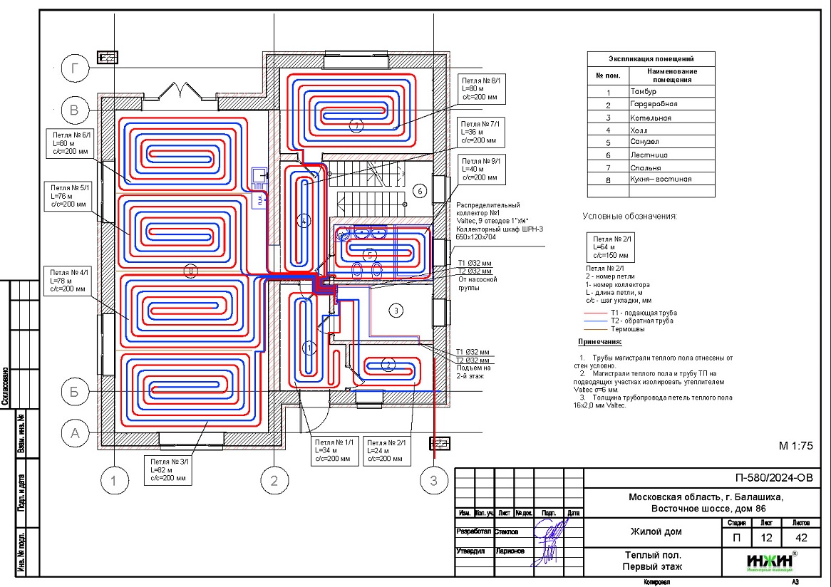
Для загородного дома со стенами из блоков Porotherm (утеплитель кровли - минвата 250 мм), площадью 240 м.кв., расположенного в г. Балашиха Московской области, разработаны проекты отопления и водоснабжения.
В проекте отопления и водоснабжения, по заданию Заказчика, предусмотрены следующие основные технические решения:
- Вариант отопления «Комфортный», с системой водяного теплого пола;
- Индивидуальная котельная с двумя котлами - настенным газовым Ariston CLAS X SYSTEM, мощностью 32 кВт (в наличии) и электрическим ЭВАН EXPERT PLUS, 6 кВт (в наличии);
- Контуры теплоснабжения дома – 5 шт. (радиаторное отопление дома и гаража, теплый пол 2-х этажей и горячее водоснабжение);
- Выполнен расчет отопления, расход тепла на отопление составил - 19,96 кВт, удельные теплопотери 80,6 Вт/м.кв.;
- Отопление и водоснабжение дома в Балашихе предусмотрены по коллекторно-лучевой схеме, с трубопроводами из сшитого полиэтилена Valtec;
- Приборы для системы отопления дома - стальные панельные радиаторы Kermi с нижним подключением, а также встроенные в пол конвекторы "Бриз" (КЗТО);
- Водяной теплый пол проектом предусмотрен на площади 200 м.кв., 17 петель;
- Водоснабжение предусмотрено с рециркуляцией горячей воды через полотенцесушители, выполнен расчет 20-и точек внутреннего водопровода и 14-ти точек бытовой канализации.
Стоимость проекта отопления и водоснабжения дома в г. Балашиха Московской области- 61 704 руб. со скидкой 10%, проект котельной бесплатно, объем проекта 42 листа.

12 ноября 2024 года
- Информация о материале
- Просмотров: 3804














