Новости компании
Разработан проект отопления для бассейна в Ласково
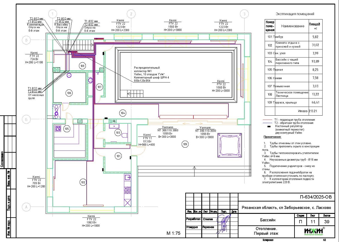
Для частного бассейна со стенами из блоков Porotherm 51 (утеплитель кровли - XPS CARBON PROF 100 мм), площадью 292 м.кв., расположенного в с. Ласково Рязанской области, выполнены проекты отопления и водоснабжения.
В проекте отопления и водоснабжения, по заданию Заказчика, предусмотрены следующие основные технические решения:
- Вариант отопления «Комфортный+», с системой управления котельной ZONT-Climatic 1.3 со встроенным GSM-модулем для удаленного управления при помощи мобильного приложения;
- Индивидуальная котельная с двумя настенными газовыми котлами Baxi LUNA-3, мощностью 31 кВткаждый;
- Контуры теплоснабжения частного бассейна – 7 шт. (радиаторное отопление бассейна, теплый пол, теплоснабжение хаммама, теплоснабжение теплообменника бассейна, теплоснабжение вентиляции, обогрев террасы и горячее водоснабжение);
- Выполнен расчет отопления, расход тепла на отопление составил - 19,06 кВт, удельные теплопотери 78,6 Вт/м.кв.;
- Отопление и водоснабжение частного бассейна в с. Ласково Рязанской областипредусмотрены по коллекторно-лучевой схеме, с трубопроводами из сшитого полиэтиленаValtec;
- Приборы для системы отопления частного бассейна конвекторы Varmann c естественной конвекцией;
- Водяной теплый пол проектом предусмотрен на площади 161 м.кв., 11 петель;
- Водоснабжение предусмотрено с рециркуляцией горячей воды через полотенцесушители, выполнен расчет 18-и точек внутреннего водопровода и 10-и точек бытовой канализации.
Стоимость проекта отопления и водоснабжения частного бассейна в с. Ласково Рязанской области- 69 145 руб. со скидкой 10%, проект котельной бесплатно, объем проекта 38 листов.

29 мая 2025 года
- Информация о материале
- Просмотров: 4519














